← Back to Dacorum Borough Council

Status

With planning case officer House extension
Received
19 days ago
New dwellings
0

Full Proposal

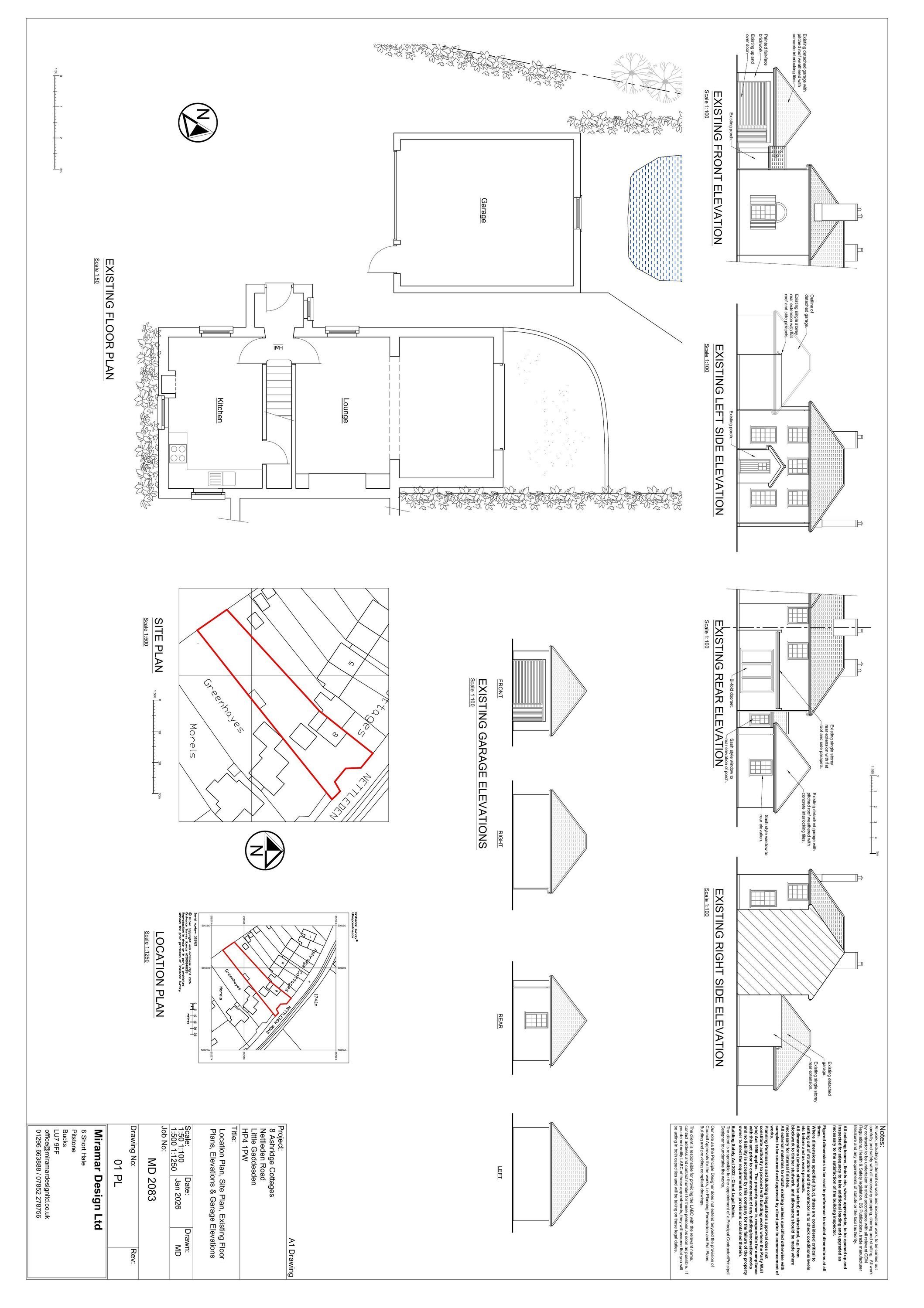
Conversion of the detached garage to habitable accommodation and the construction of a glazed link extension connecting it to the main dwellinghouse.

Documents

& heritage statement
Design & Access Statement
Not archived · Council Link
Applicationformredacted
Application Form Redacted
Not archived · Council Link

Take Action

Make your voice heard. Authorities need to hear from people who support new homes.

✉️ Write Email in Support View on Council Portal