← Back to Dacorum Borough Council

Status

With planning case officer
Received
Last week
New dwellings
n/a

Full Proposal

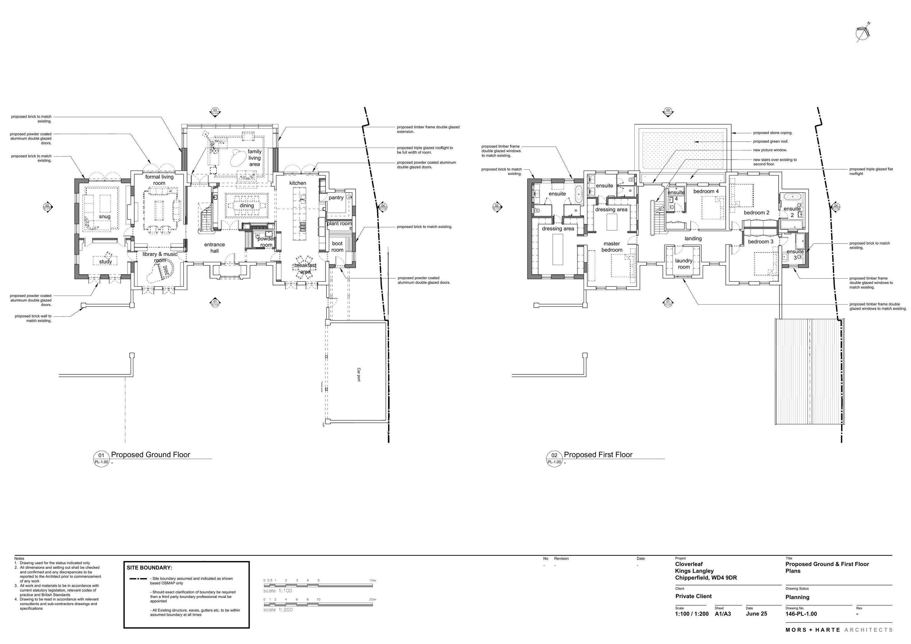
Proposed side and rear extensions together with other alterations to existing dwelling

Documents

Applicationformredacted
Application Form Redacted
Not archived · Council Link
Site Location Plan
Archived · Council Link
Existing elevations
Existing Elevations
Not archived · Council Link
Existing floor plans
Existing Floor Plans
Not archived · Council Link
Existing floor plans
Existing Floor Plans
Not archived · Council Link
Planning statement
Planning Statement
Not archived · Council Link
Proposed elevations
Proposed Elevations
Not archived · Council Link
Proposed Floor Plans
Archived · Council Link
Proposed Floor Plans
Archived · Council Link

Take Action

Make your voice heard. Authorities need to hear from people who support new homes.

✉️ Write Email in Support View on Council Portal