← Back to Darlington Borough Council

Status

Awaiting decision Change of use
Received
20 Sep 2024
New dwellings
0

Full Proposal

Part demolition of existing house to facilitate change of use of agricultural land for tourist accommodation including the siting of 3 No. holiday lodges and 3 No. hot tub enclosures with car parking, associated landscaping and gravel pathways including the creation of secondary access. Conversion of store room to form kitchen/office and garage together with landscaping and associated works (part retrospective)

Documents

ACCOMPANYING SCREENING ASSESSMENT
Photo
Not archived · Council Link
APPLICATIONFORMREDACTED
Application Form
Not archived · Council Link
BAT DAYTIME RISK ASSESSMENT
Ecological Assessment
Not archived · Council Link
BNG ASSESSMENT
BNG Statement
Not archived · Council Link
BNG Metric Calculation Tool
BNG Metric Calculation Tool
Not archived · Council Link
COMMITTEE REPORT
Report-Committee
Not archived · Council Link
ECOLOGY OFFICER
Comment Consultee
Not archived · Council Link
ECOLOGY OFFICER
Comment Consultee
Not archived · Council Link
ENVIRONMENTAL HEALTH OFFICER
Comment Consultee
Not archived · Council Link
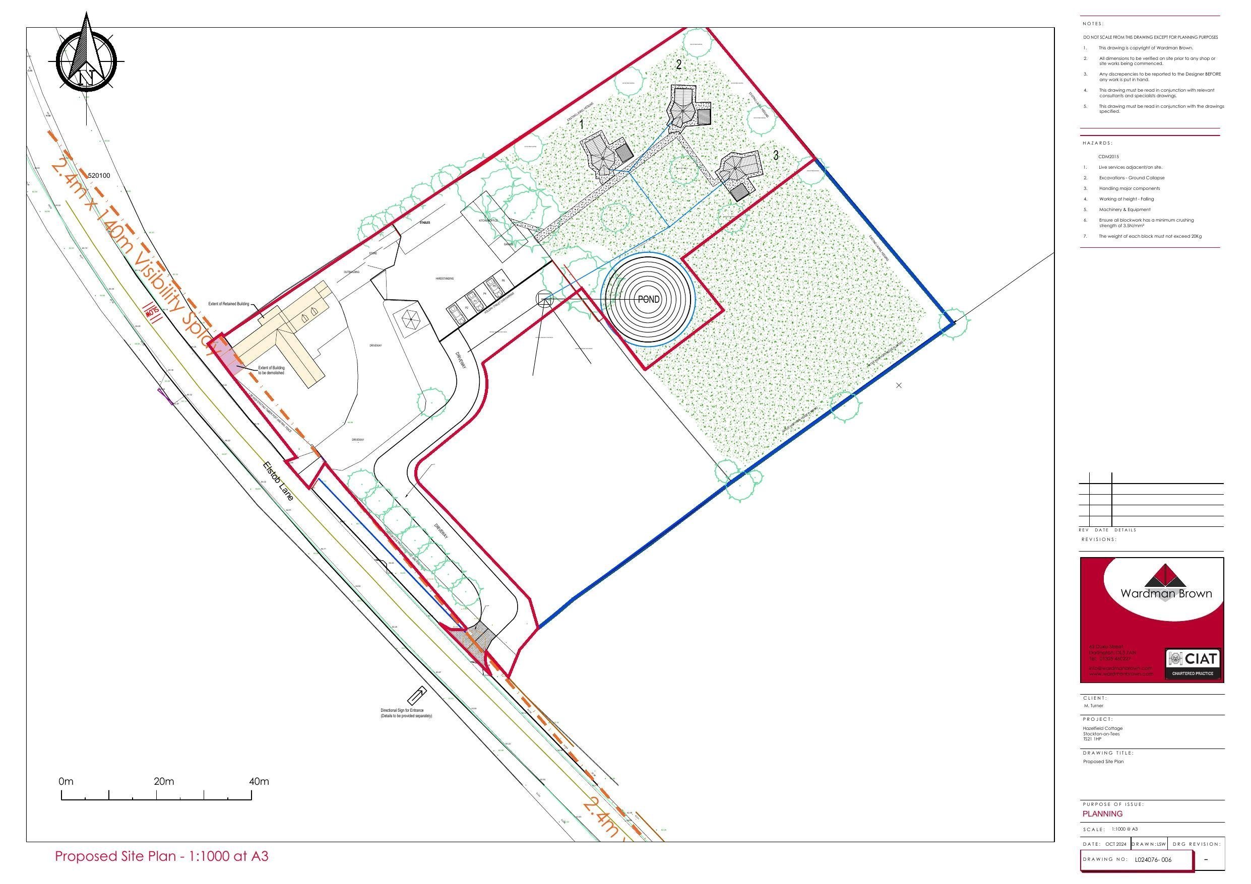
EXISTING BLOCK PLAN
Drawing
Not archived · Council Link
EXISTING ELEVATIONS
Drawing
Not archived · Council Link
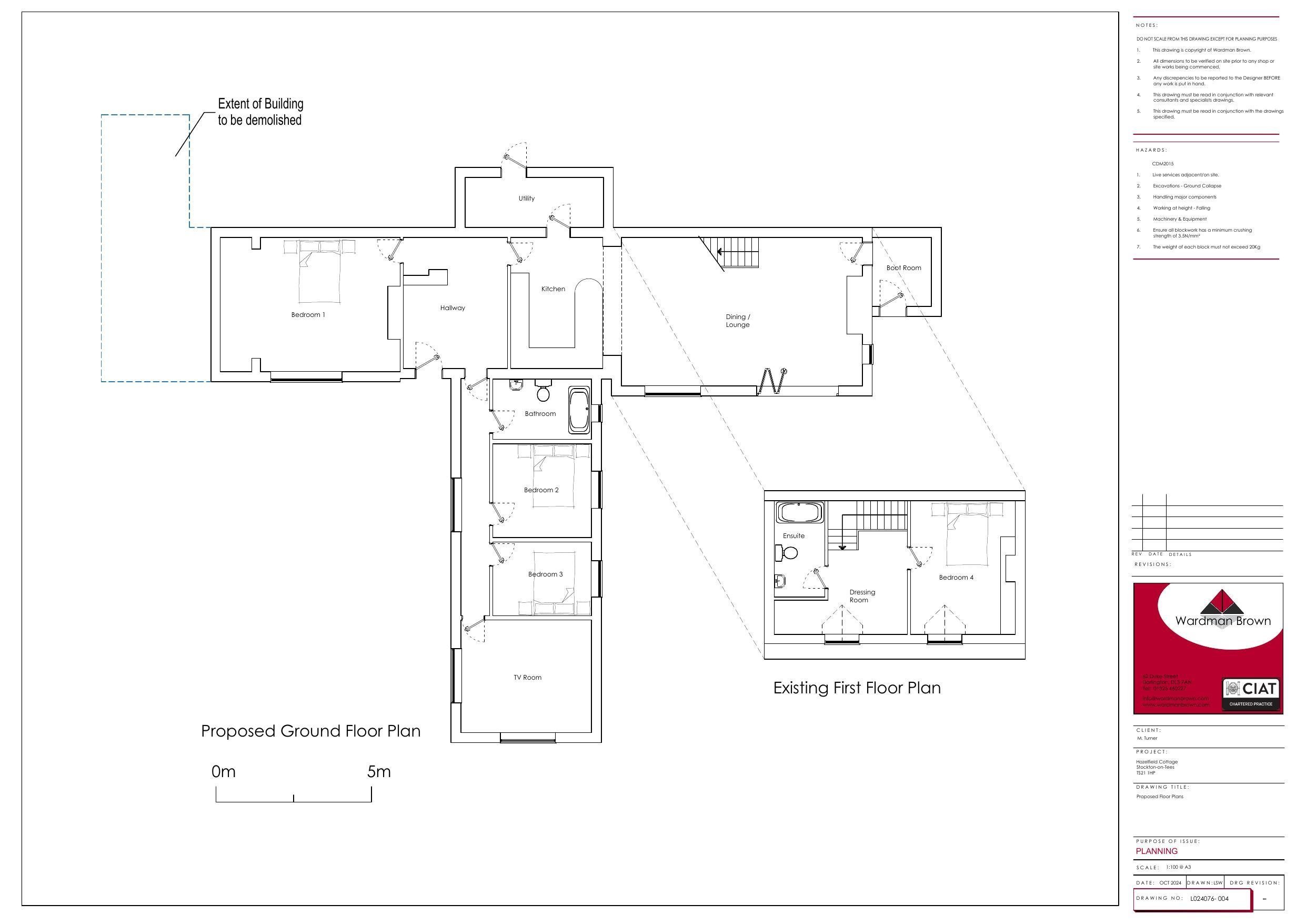
EXISTING FLOOR PLANS
Drawing
Not archived · Council Link
HIGHWAYS ENGINEER
Comment Consultee
Not archived · Council Link
HIGHWAYS ENGINEER RESPONSE ATTACHMENTS
Comment Consultee
Not archived · Council Link
HIGHWAYS ENGINEER RESPONSE ATTACHMENTS
Comment Consultee
Not archived · Council Link
HIGHWAYS ENGINEER RESPONSE ATTACHMENTS
Comment Consultee
Not archived · Council Link
HIGHWAYS ENGINEER RESPONSE ATTACHMENTS
Comment Consultee
Not archived · Council Link
HRA NUTRIENT ASSESMENT
Drawing Superseded
Not archived · Council Link
NATURAL ENGLAND EXTENSION OF TIME
Comment Consultee
Not archived · Council Link
NITRATE ASSESSMENT
Drawing Superseded
Not archived · Council Link
NITRATE ASSESSMENT
Drawing Superseded
Not archived · Council Link
NON MAINS DRAINAGE INFORMATION
Other
Not archived · Council Link
NUTRIENT NEUTRALITY CALCULATION
Drawing Superseded
Not archived · Council Link
PARISH RESPONSE
Comment Consultee
Not archived · Council Link
PLANNING, DESIGN & ACCESS STATEMENT
Design & Access Statement
Not archived · Council Link
PLANTING SCHEME
Report
Not archived · Council Link
POLICY
Comment Consultee
Not archived · Council Link
PROPOSED ELEVATIONS
Drawing
Not archived · Council Link
Drawing
Archived · Council Link
Drawing
Archived · Council Link
RESPONSE - NATURAL ENGLAND
Comment Consultee
Not archived · Council Link
RESPONSE - NORTHERN GAS
Comment Consultee
Not archived · Council Link
RESPONSE - NORTHERN GAS
Comment Consultee
Not archived · Council Link
RESPONSE - NORTHERN GAS
Comment Consultee
Not archived · Council Link
RESPONSE - NORTHERN GAS
Comment Consultee
Not archived · Council Link
REVISED BNG ASSESSMENT
Biodiversity Net Gain Assessment
Not archived · Council Link
REVISED BNG METRIC
Other
Not archived · Council Link
Drawing Superseded
Archived · Council Link
REVISED LOCATION PLAN
Drawing Superseded
Not archived · Council Link
REVISED NITRATE ASSESSMENT
Other
Not archived · Council Link
REVISED NITRATE CALCULATOR
Other
Not archived · Council Link
Drawing Superseded
Archived · Council Link
SCREENING ASSESSMENT
Report
Not archived · Council Link
SUPPORT - A SWAINSTON
Comment Support
Not archived · Council Link
SUPPORT - C CRAWLEY
Comment Support
Not archived · Council Link
SUPPORT - C PEASE
Comment Support
Not archived · Council Link
SUPPORT - D STANSFIELD
Comment Support
Not archived · Council Link
SUPPORT - D TOWERS
Comment Support
Not archived · Council Link
SUPPORT - D WILSON
Comment Support
Not archived · Council Link
SUPPORT - G ALEXANDER
Comment Support
Not archived · Council Link
SUPPORT - G HARKER
Comment Support
Not archived · Council Link
SUPPORT - J GOLIGHTLY
Comment Support
Not archived · Council Link
SUPPORT - J LITTLE
Comment Support
Not archived · Council Link
SUPPORT - K HUSSEY
Comment Support
Not archived · Council Link
SUPPORT - K KITCHING
Comment Support
Not archived · Council Link
SUPPORT - L HAUXWELL
Comment Support
Not archived · Council Link
SUPPORT - L LANGLEY
Comment Support
Not archived · Council Link
SUPPORT - L MCDERMOTT
Comment Support
Not archived · Council Link
SUPPORT - M CHALILOPOULOS
Comment Support
Not archived · Council Link
SUPPORT - M SMITH
Comment Support
Not archived · Council Link
SUPPORT - P PARKER
Comment Support
Not archived · Council Link
SUPPORT - P SANDERSON
Comment Support
Not archived · Council Link
SUPPORT - P WOOD
Comment Support
Not archived · Council Link
SUPPORT - R FARROW
Comment Support
Not archived · Council Link
SUPPORT - S MYERS
Comment Support
Not archived · Council Link
SUPPORT - S NOBBS
Comment Support
Not archived · Council Link
SUPPORT - S SPRINGETT
Comment Support
Not archived · Council Link
TRANSPORT STATEMENT
Transport Assessment
Not archived · Council Link
TRANSPORT STATEMENT APPENDICES A & B
Transport Assessment
Not archived · Council Link
TRANSPORT STATEMENT APPENDICES C TO F
Transport Assessment
Not archived · Council Link

Take Action

Make your voice heard. Authorities need to hear from people who support new homes.

✉️ Write Email in Support View on Council Portal