← Back to Darlington Borough Council

Status

Decided New housing
Received
14 Apr 2025
New dwellings
1

Summary

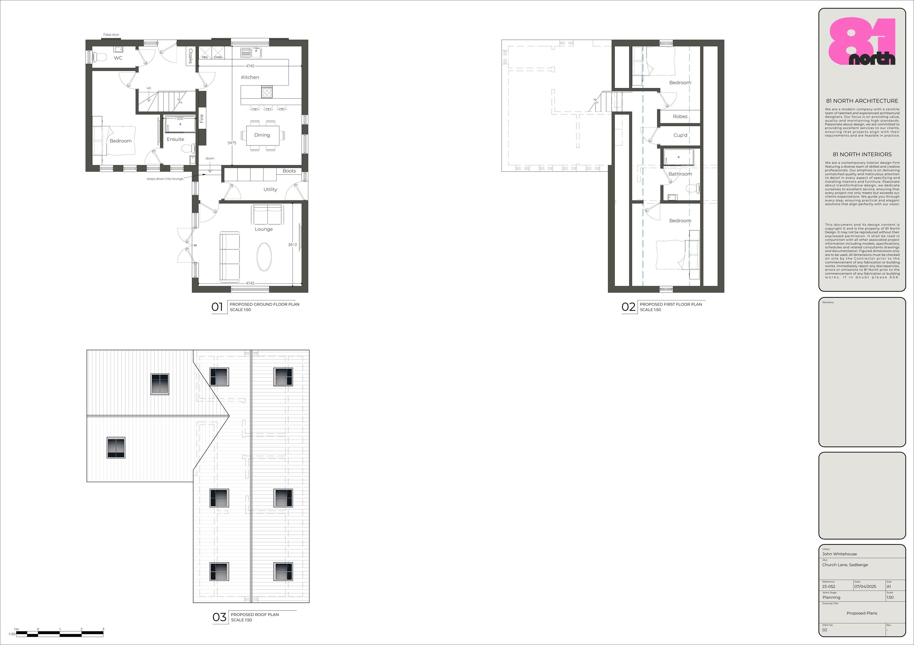
Self-build three-bedroom detached dwelling with parking and associated works.

Full Proposal

Erection of 1 no. self build three bed detached residential dwelling (Use Class C3) with parking provision and associated works

Documents

APPLICATIONFORMREDACTED
Application Form
Not archived · Council Link
APPROPRIATE ASSESSMENT
Other
Not archived · Council Link
ARTISTIC ELEVATIONS
Drawing
Not archived · Council Link
CAR PARKING LAYOUT
Drawing Additional
Not archived · Council Link
DECISION NOTICE
Decision
Not archived · Council Link
DELEGATED REPORT
Report-Delegated
Not archived · Council Link
ENVIRONMENTAL HEALTH OFFICER
Comment Consultee
Not archived · Council Link
ENVIRONMENTAL HEALTH OFFICER
Comment Consultee
Not archived · Council Link
HERITAGE STATEMENT - APRIL 2025
Heritage Statement
Not archived · Council Link
HERITAGE STATEMENT - ROCKET - DEC 23
Heritage Statement
Not archived · Council Link
HIGHWAYS ENGINEER
Comment Consultee
Not archived · Council Link
HIGHWAYS ENGINEER
Comment Consultee
Not archived · Council Link
LANE ELEVATION
Drawing
Not archived · Council Link
NATURAL ENGLAND
Comment Consultee
Not archived · Council Link
NN REPORT - APRIL 25
Report
Not archived · Council Link
NUTRIENT CREDIT CERTIFICATE
Nutrient Credit Certificate
Not archived · Council Link
NUTRIENT NEUTRALITY CALCULATOR - APRIL 25
Report
Not archived · Council Link
PDAS - APRIL 2025
Planning Statement
Not archived · Council Link
PROPOSED ELEVATIONS
Drawing
Not archived · Council Link
Drawing
Archived · Council Link
RESPONSE - NORTHERN GAS
Comment Consultee
Not archived · Council Link
RESPONSE - NORTHERN GAS
Comment Consultee
Not archived · Council Link
RESPONSE - NORTHERN GAS
Comment Consultee
Not archived · Council Link
RESPONSE - NORTHERN GAS
Comment Consultee
Not archived · Council Link
RESPONSE - PARISH COUNCIL
Comment Consultee
Not archived · Council Link
SCREENING ASSESSMENT FORM APRIL 25
Report
Not archived · Council Link
Drawing
Archived · Council Link
SITE SECTIONS
Drawing
Not archived · Council Link
UPDATED CHARACTER ASSESSMENT
Report
Not archived · Council Link

Take Action

Make your voice heard. Authorities need to hear from people who support new homes.

✉️ Write Email in Support View on Council Portal