← Back to Dartford Borough Council

Status

Awaiting decision New housing
Received
21 Jul 2025
New dwellings
1

Full Proposal

Demolition of existing dwelling and the erection of a new dwelling

Documents

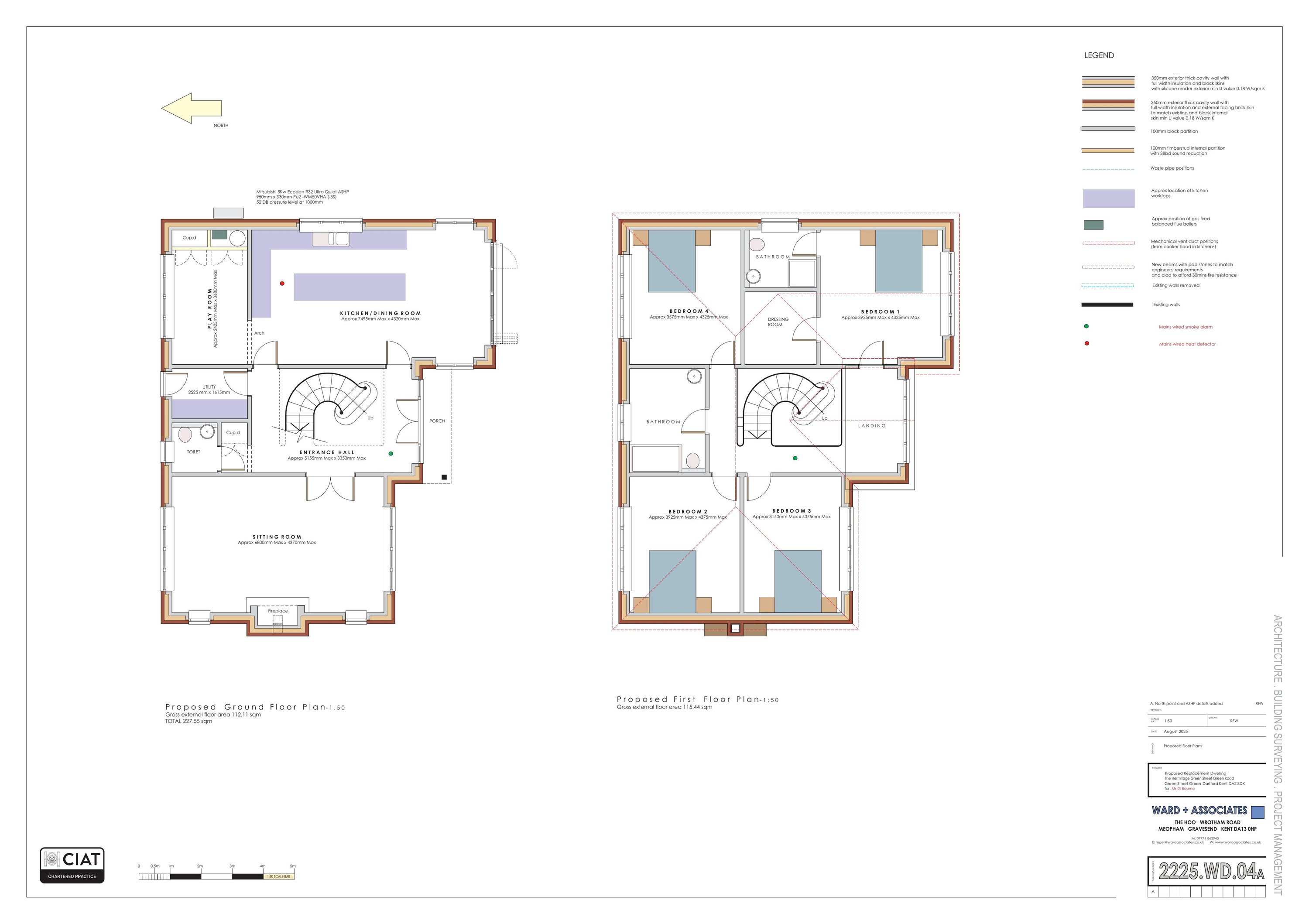
2225.WD.02A EXISTING FLOOR PLANS
Drawings
Not archived · Council Link
2225.WD.03A EXISTING ELEVATIONS
Drawings
Not archived · Council Link
2225.WD.05A PROPOSED ELEVATIONS
Drawings
Not archived · Council Link
APPLICATION FORM REDACTED
Application Form
Not archived · Council Link
ASHP SPEC
Report
Not archived · Council Link
CIL QUESTIONNAIRE
CIL
Not archived · Council Link
KCC ARCHEOLOGY
Consultation Responses
Not archived · Council Link
KCC HERITAGE-ARCHAEOLOGY
Consultation Responses
Not archived · Council Link
KCC HIGHWAYS
Consultation Responses
Not archived · Council Link
KCC HIGHWAYS
Consultation Responses
Not archived · Council Link
KCC HIGHWAYS
Consultation Responses
Not archived · Council Link
KENT FIRE & RESCUE
Consultation Responses
Not archived · Council Link
KENT FIRE & RESCUE
Consultation Responses
Not archived · Council Link
NATIONAL SPACE STANDARDS
Report
Not archived · Council Link
NEWSPAPER NOTICE ACTUAL
Additional Information or Correspondence
Not archived · Council Link
WATER EFFICIENCY STATEMENT
Report
Not archived · Council Link

Take Action

Make your voice heard. Authorities need to hear from people who support new homes.

✉️ Write Email in Support View on Council Portal