← Back to Dartford Borough Council

Status

Decided Change of use
Received
26 Aug 2025
New dwellings
0

Summary

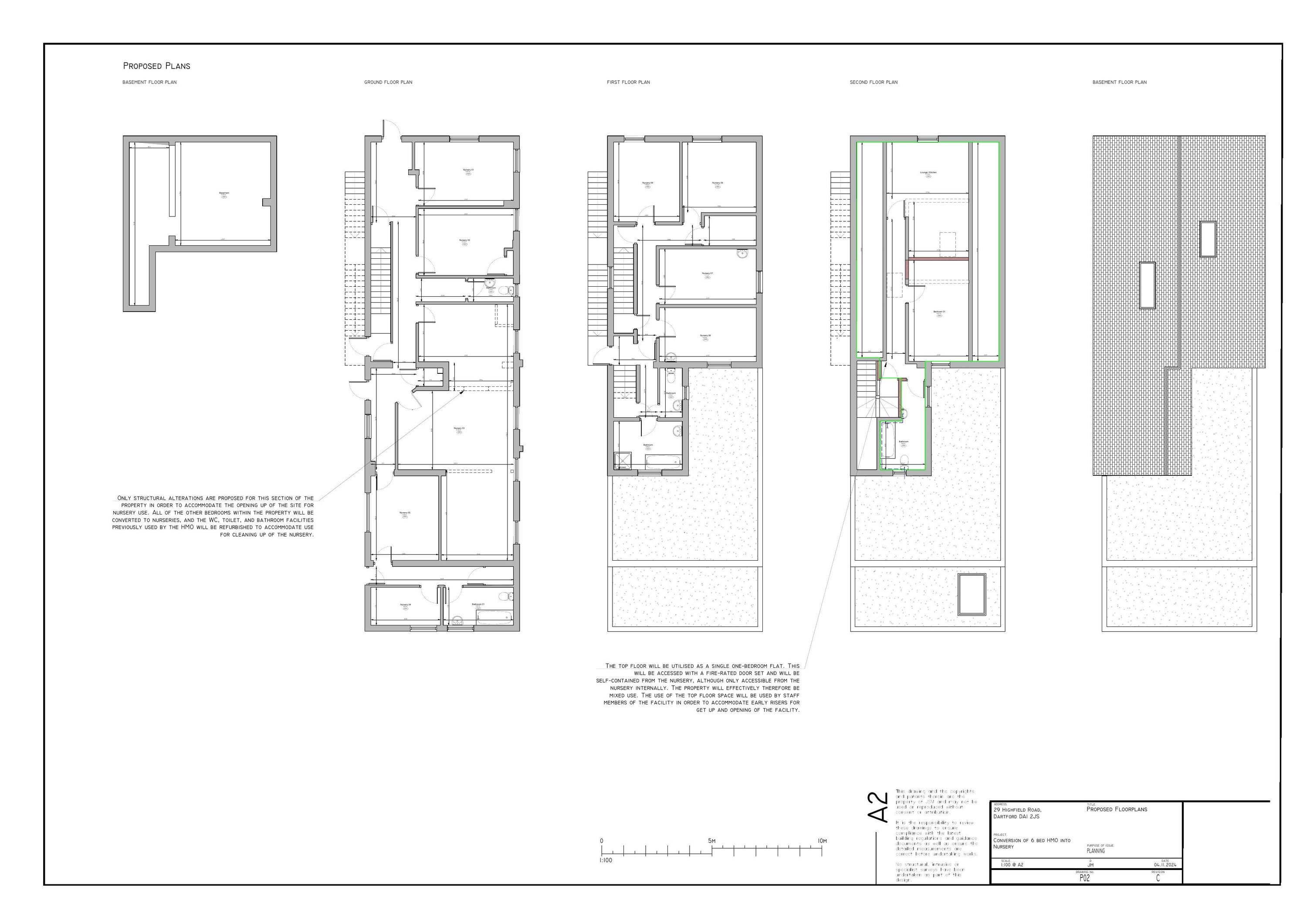
Change of 6-bed HMO to a day nursery with garden play area and one-bedroom staff accommodation.

Full Proposal

Change of use of existing property from a 6-bedroom House in Multiple Occupation to a day nursery (Class E(f)) for up to 45 children and 15 staff, with associated staff facilities, use of garden for children's external play area and the incorporation of a one-bedroom residential property on the top floor to accommodate potential staff members

Documents

DELEGATED REPORT SHEET
Report
Not archived · Council Link
DESIGN AND ACCESS STATEMENT
Report
Not archived · Council Link
FORM_1_CIL_ADDITIONAL_INFORMATION
CIL
Not archived · Council Link
P01 EXISTING FLOOR PLANS
Drawings
Not archived · Council Link
REFUSED
Decision Notice
Not archived · Council Link
Drawings
Archived · Council Link

Take Action

Make your voice heard. Authorities need to hear from people who support new homes.

✉️ Write Email in Support View on Council Portal