← Back to Doncaster Metropolitan Borough Council

Status

Decided New housing
Received
09 Jan 2025
New dwellings
2

Summary

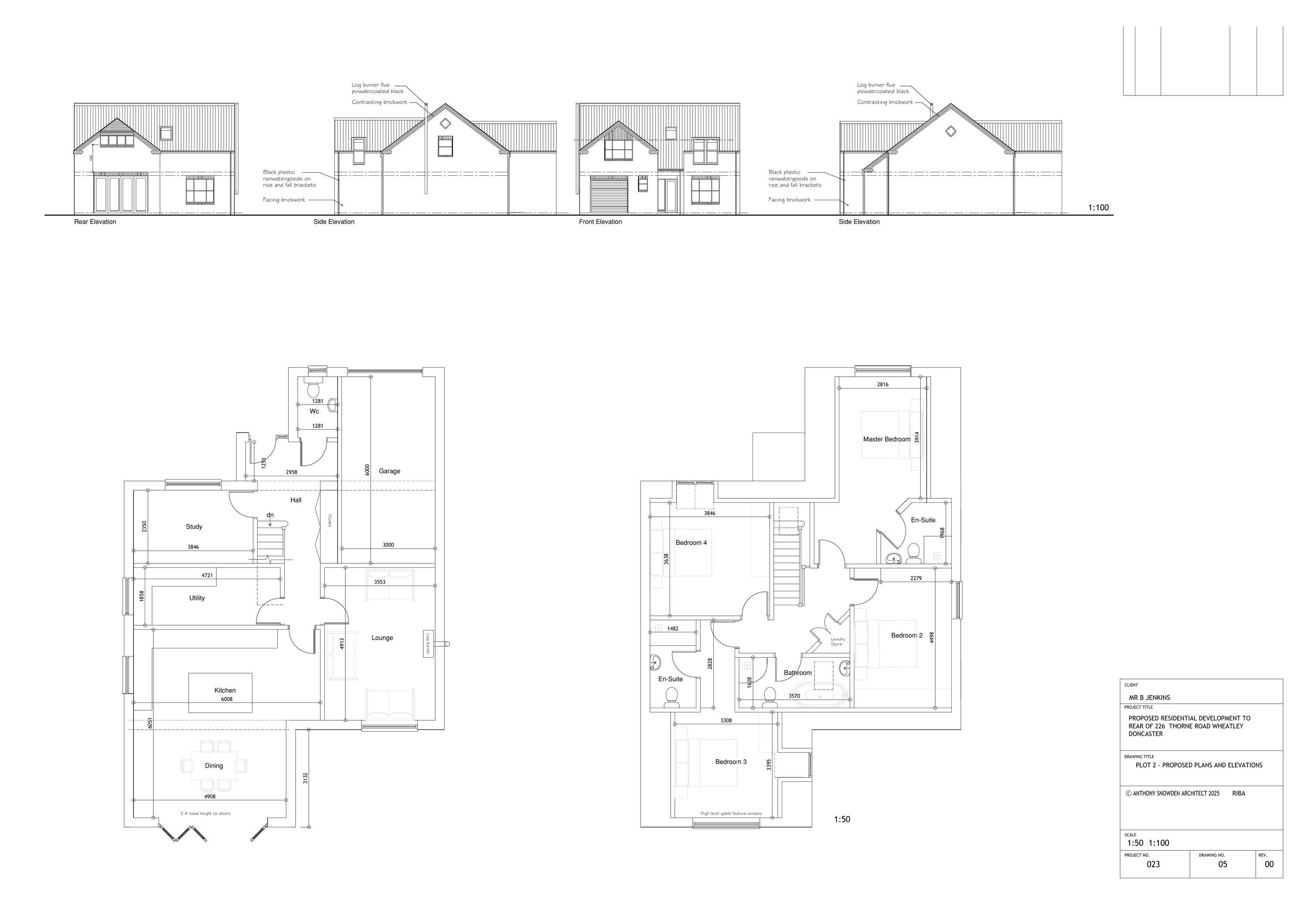
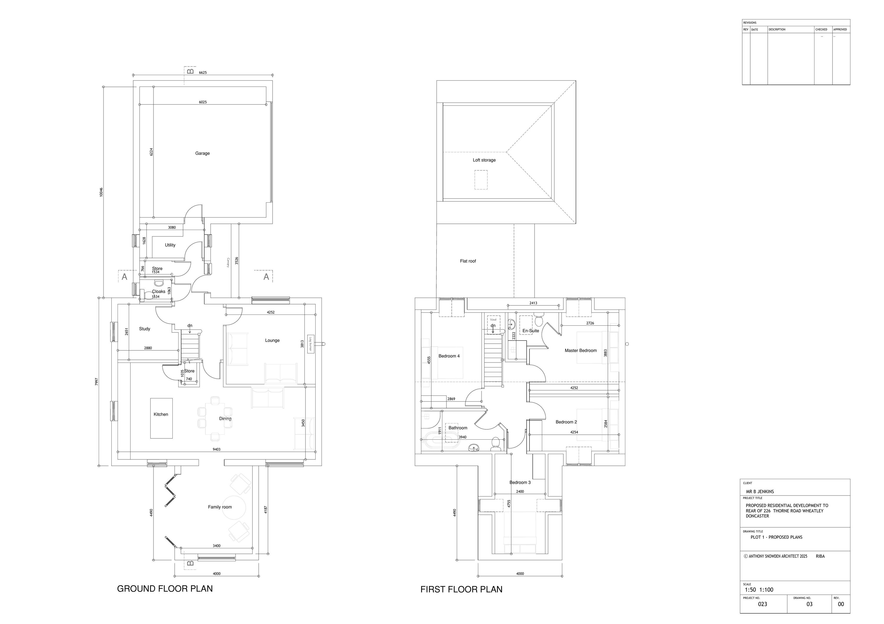
Erection of two new dwellings to the rear of 226 Thorne Road.

Full Proposal

Erection of 2 new dwellings to rear of 226 Thorne Road

Documents

Application Form (No Personal Data)
Application Form (No Personal Data)
Not archived · Council Link
Approved - Dwg. No. 04 Rev. 00, Plot 1 - Proposed Elevations and Sections
Proposed Elevations
Not archived · Council Link
Biodiversity Net Gain Report
Biodiversity Survey and Report
Not archived · Council Link
Daily Delegation Report
Daily Delegation Report
Not archived · Council Link
Decision Notice
Decision Notice
Not archived · Council Link
Design and Access Statement
Design and Access Statement
Not archived · Council Link
Ecology 1
Consultation Reply
Not archived · Council Link
Environmental Health
Consultation Reply
Not archived · Council Link
Site Plan
Archived · Council Link
Preliminary Ecological Appraisal
Additional Plans/Information
Not archived · Council Link
Proposed SUPERSEDED
Site Plan
Not archived · Council Link
SUPERSEDED
Ecology Survey/Report
Not archived · Council Link
The Coal Authority
Consultation Reply
Not archived · Council Link
Tree Officer
Consultation Reply
Not archived · Council Link
Tree Survey
Tree Survey
Not archived · Council Link
View associated documents
External Link
Not archived · Council Link

Take Action

Make your voice heard. Authorities need to hear from people who support new homes.

✉️ Write Email in Support View on Council Portal