← Back to Doncaster Metropolitan Borough Council

Status

Awaiting decision New housing
Received
30 Jul 2025
New dwellings
5

Full Proposal

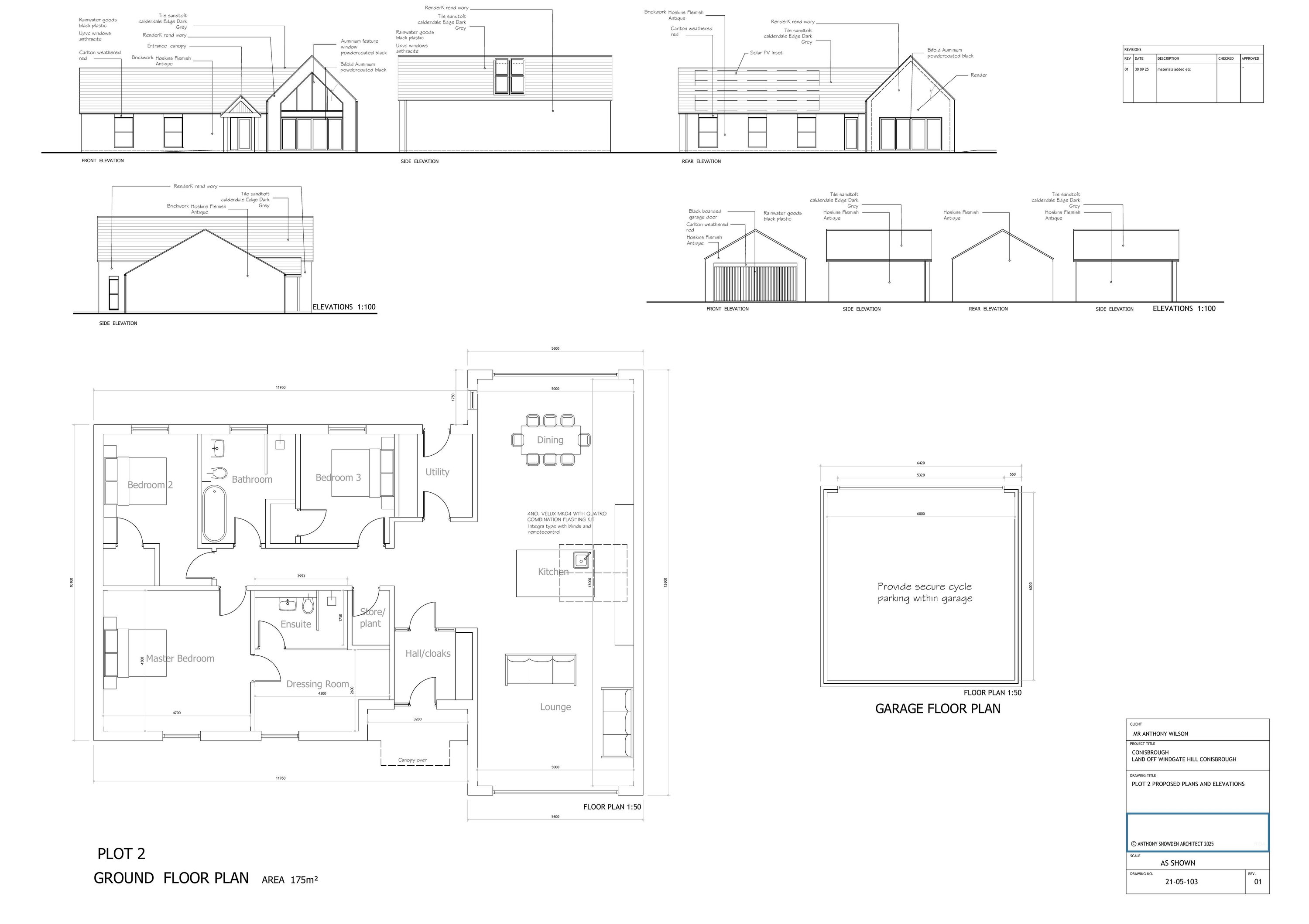
Erection of five detached self-build dwellings

Documents

Application Form (No Personal Data)
Application Form (No Personal Data)
Not archived · Council Link
Committee report presented to 13/01/2026 Planning Committee
Planning Committee Report
Not archived · Council Link
Design and Access Statement
Design and Access Statement
Not archived · Council Link
DRAINAGE SPECIFICATION PLOT 1
Additional Plans/Information
Not archived · Council Link
DRAINAGE SPECIFICATION PLOT 2
Additional Plans/Information
Not archived · Council Link
DRAINAGE SPECIFICATION PLOT 3
Additional Plans/Information
Not archived · Council Link
DRAINAGE SPECIFICATION PLOT 4
Additional Plans/Information
Not archived · Council Link
DRAINAGE SPECIFICATION PLOT 5
Additional Plans/Information
Not archived · Council Link
Ecology Survey/Report
Ecology Survey/Report
Not archived · Council Link
LLFA
Consultation Reply
Not archived · Council Link
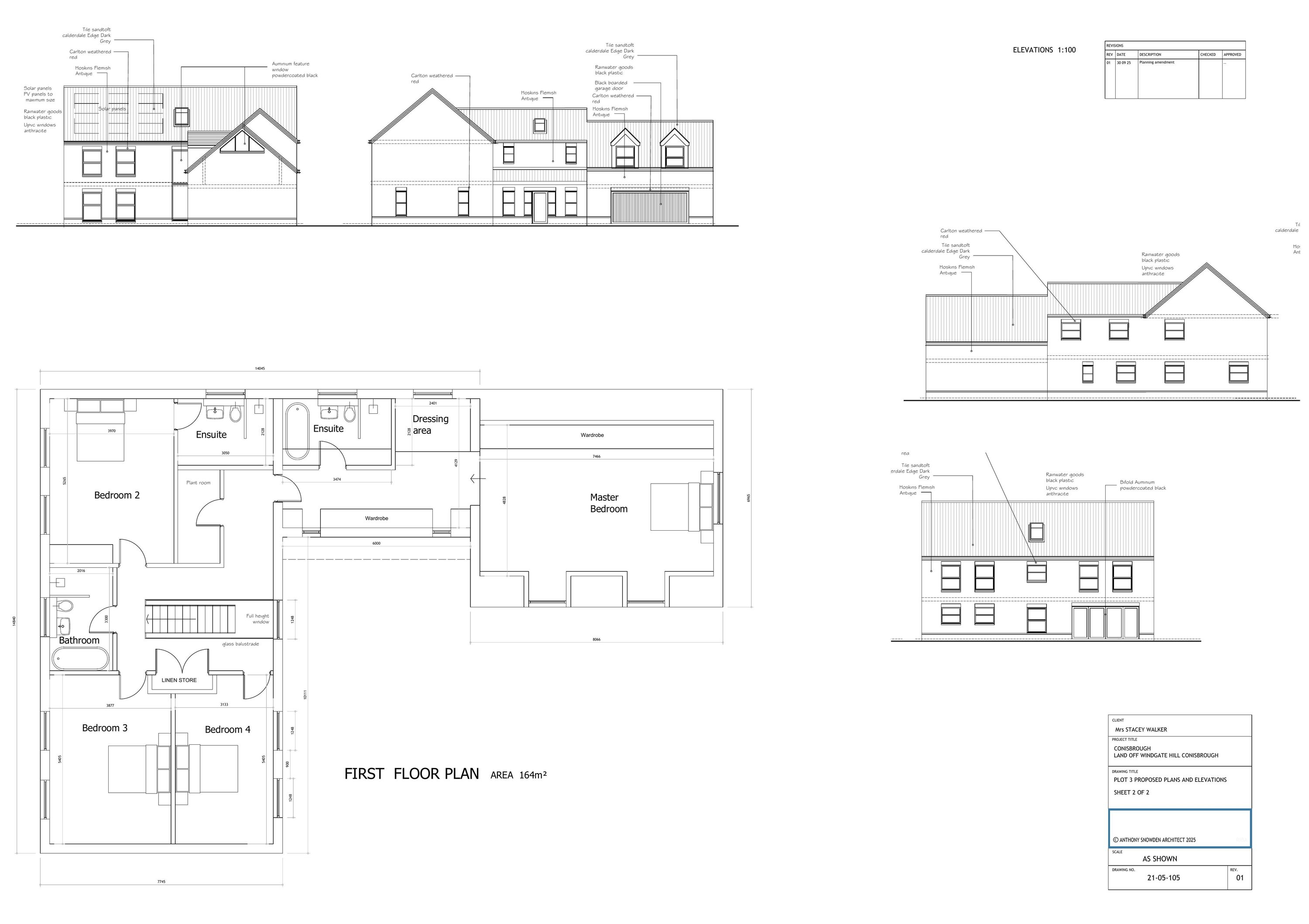
PLOT 3 SHEET 1 OF 2
Proposed Plans
Not archived · Council Link
PLOT 3 SHEET 2 OF 2
Proposed Plans
Not archived · Council Link
Public Rights of Way
Consultation Reply
Not archived · Council Link
Representations
Representations
Not archived · Council Link
Representations
Representations
Not archived · Council Link
Representations
Representations
Not archived · Council Link
Representations
Representations
Not archived · Council Link
Site Plan
Archived · Council Link
SOAK AWAY PERCOLATION TEST
Additional Plans/Information
Not archived · Council Link
South Yorkshire Police
Consultation Reply
Not archived · Council Link
SUPERSEDED
Location Plan and Site Plan
Not archived · Council Link
SUPERSEDED PLOT 1
Proposed Plans
Not archived · Council Link
Yorkshire Water
Consultation Reply
Not archived · Council Link
Yorkshire Water
Consultation Reply
Not archived · Council Link

Take Action

Make your voice heard. Authorities need to hear from people who support new homes.

✉️ Write Email in Support View on Council Portal