← Back to Doncaster Metropolitan Borough Council

Status

Awaiting decision New housing
Received
31 Jul 2025
New dwellings
5

Full Proposal

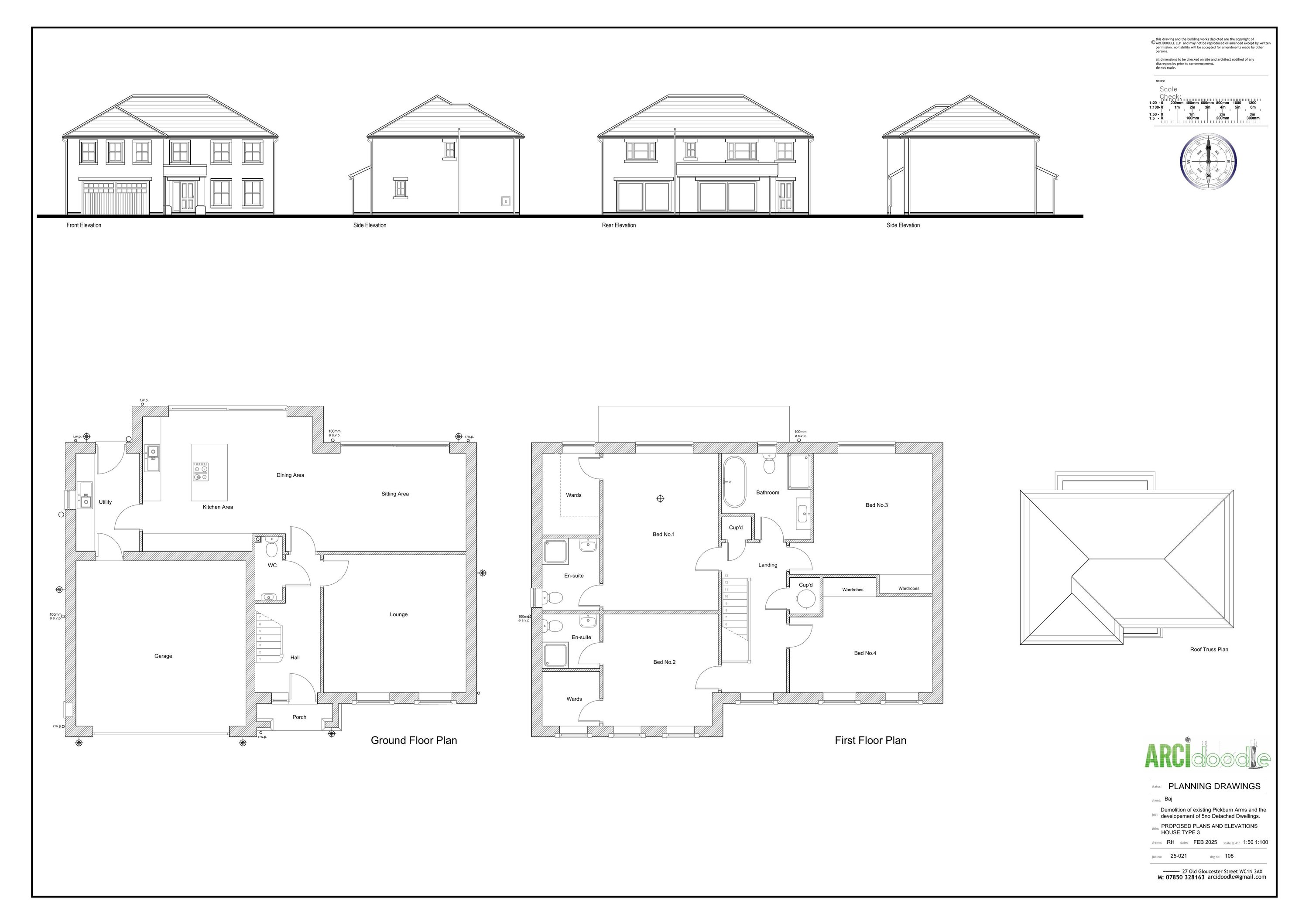
Erection of 5 dwellings with private drive and associated parking and landscaping following demolition of existing building

Documents

AIR QUALITY ASSESSMENT
Air Quality Assessment
Not archived · Council Link
Application Form (No Personal Data)
Application Form (No Personal Data)
Not archived · Council Link
BNG Report
Ecology Survey/Report
Not archived · Council Link
Consultation Reply
Consultation Reply
Not archived · Council Link
Design and Access Statement
Design and Access Statement
Not archived · Council Link
Drainage Plan
Drainage Plan
Not archived · Council Link
Ecology 1
Consultation Reply
Not archived · Council Link
EHO
Consultation Reply
Not archived · Council Link
EXISTING BIRDSEYE PLAN
Additional Plans/Information
Not archived · Council Link
EXISTING IMPERM PLAN
Site Plan
Not archived · Council Link
Flood map
Flood Risk Assessment
Not archived · Council Link
Highways
Consultation Reply
Not archived · Council Link
LLFA
Consultation Reply
Not archived · Council Link
Local Plans Team (Countryside & Community)
Consultation Reply
Not archived · Council Link
Location Plan
Location Plan
Not archived · Council Link
NOISE IMPACT ASSESSMENT
Noise Assessment
Not archived · Council Link
Northern Gas
Consultation Reply
Not archived · Council Link
Parish Council
Consultation Reply
Not archived · Council Link
Planning Statement
Planning Statement
Not archived · Council Link
Preliminary Ecological Appraisal
Ecology Survey/Report
Not archived · Council Link
Preliminary Roost Assessment
Ecology Survey/Report
Not archived · Council Link
PROPOSED
Site Plan
Not archived · Council Link
PROPOSED BRIDSEYE PLAN
Additional Plans/Information
Not archived · Council Link
PROPOSED IMPERM PLAN
Site Plan
Not archived · Council Link
Proposed street scene
Street Scenes
Not archived · Council Link
Representations
Representations
Not archived · Council Link
Representations
Representations
Not archived · Council Link
Revised small site BNG metric pdf
Ecology Survey/Report
Not archived · Council Link
South Yorkshire Police
Consultation Reply
Not archived · Council Link
Tree Report
Tree Misc Documents
Not archived · Council Link
Tree Schedule
Tree Misc Documents
Not archived · Council Link
Tree Survey
Tree Survey
Not archived · Council Link
Yorkshire Water
Consultation Reply
Not archived · Council Link

Take Action

Make your voice heard. Authorities need to hear from people who support new homes.

✉️ Write Email in Support View on Council Portal