← Back to Doncaster Metropolitan Borough Council

Status

Decided Change of use
Received
29 Aug 2025
New dwellings
1

Summary

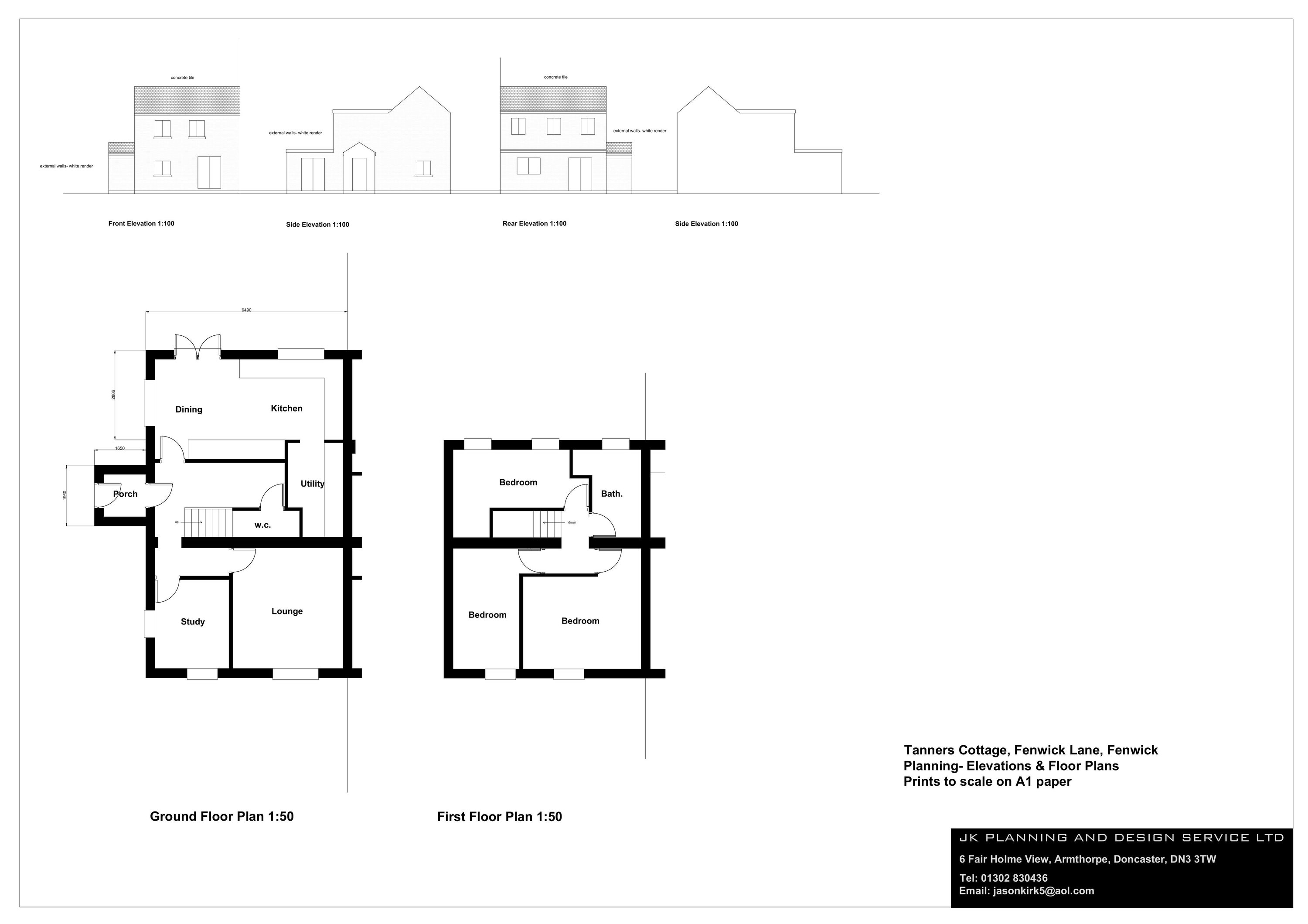
Convert one dwelling into two with side, rear and front extensions.

Full Proposal

Conversion of single dwelling into two dwellings including extensions to the side, rear and front

Documents

2-3 Hawthorne Cottage - superseded
Proposed Plans
Not archived · Council Link
Aerial view of former outbuildings
Additional Plans/Information
Not archived · Council Link
Amended
Design and Access Statement
Not archived · Council Link
Amended Landscaping Plan
Landscaping Details
Not archived · Council Link
Amended location plan
Location Plan
Not archived · Council Link
Amended proposed landscaping plan
Proposed Plans
Not archived · Council Link
Application Form (No Personal Data)
Application Form (No Personal Data)
Not archived · Council Link
Consultation Reply
Consultation Reply
Not archived · Council Link
Consultation Reply
Consultation Reply
Not archived · Council Link
Decision Notice
Decision Notice
Not archived · Council Link
Design and Access Statement
Design and Access Statement
Not archived · Council Link
Flood Risk Assessment
Flood Risk Assessment
Not archived · Council Link
Highways
Consultation Reply
Not archived · Council Link
Planning Policy
Consultation Reply
Not archived · Council Link
Planning Site Notice
Planning Site Notice
Not archived · Council Link
Site layout and vehicular access points - superseded
Site Plan
Not archived · Council Link
superseded
Landscaping Details
Not archived · Council Link
superseded (based on old OS map)
Location Plan
Not archived · Council Link
Tanners Cottage - superseded
Proposed Plans
Not archived · Council Link
Tanners Cottage existing elevations
Existing Elevation
Not archived · Council Link
Tree Officer
Consultation Reply
Not archived · Council Link
Volume calculations
Additional Plans/Information
Not archived · Council Link
Volume calculations 2
Additional Plans/Information
Not archived · Council Link

Take Action

Make your voice heard. Authorities need to hear from people who support new homes.

✉️ Write Email in Support View on Council Portal