← Back to Doncaster Metropolitan Borough Council

Status

Awaiting decision New housing
Received
Last month
New dwellings
1

Full Proposal

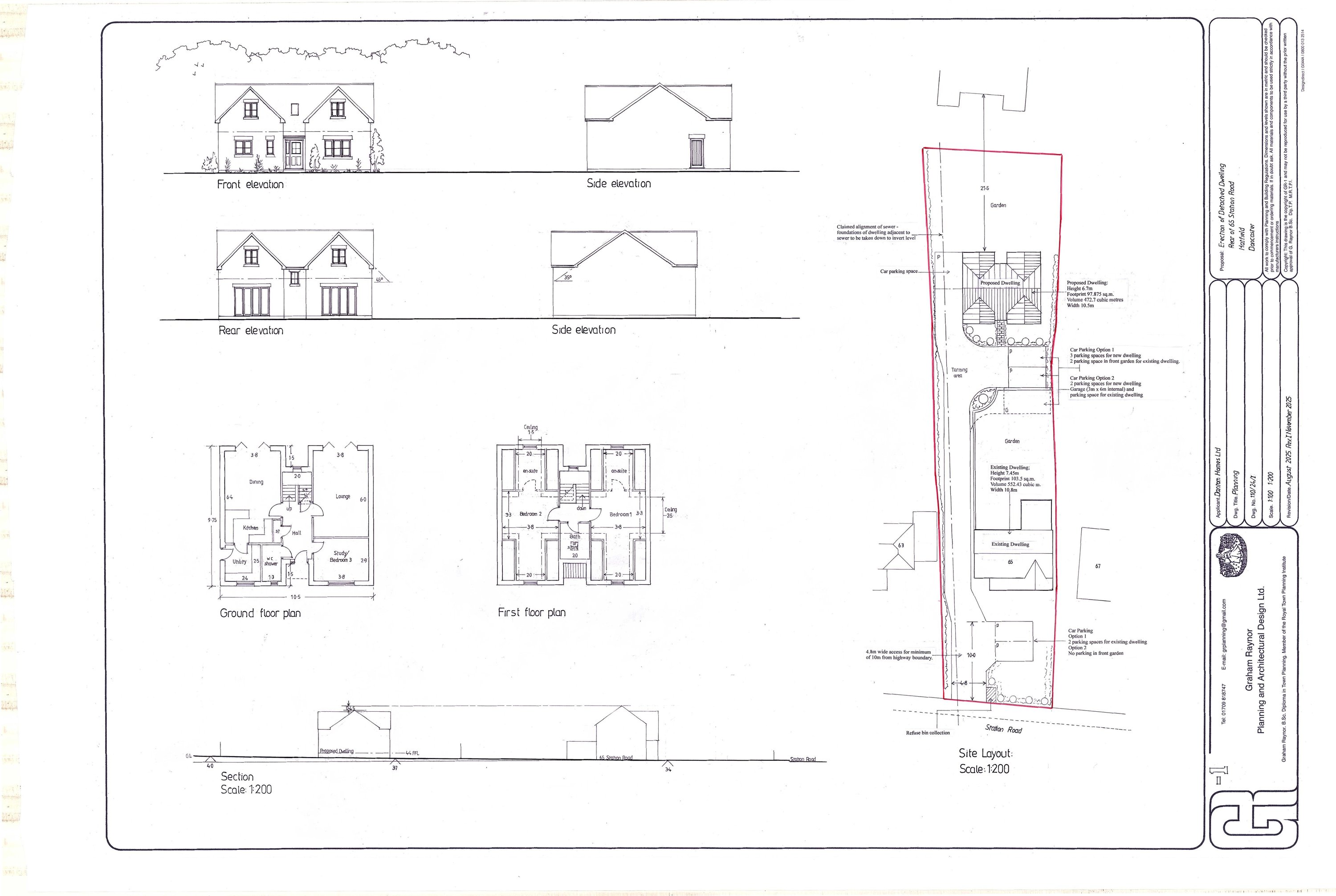
Erection of detached self build dwelling to rear of existing dwelling, including alterations to access

Documents

Application Form (No Personal Data)
Application Form (No Personal Data)
Not archived · Council Link
Consultation Reply
Consultation Reply
Not archived · Council Link
Design and Access Statement
Design and Access Statement
Not archived · Council Link
ecology
Consultation Reply
Not archived · Council Link
Environment agency
Consultation Reply
Not archived · Council Link
Flood Risk Assessment
Flood Risk Assessment
Not archived · Council Link
FLOOD RISK ENGINEER
Consultation Reply
Not archived · Council Link
Proposed Plans
Archived · Council Link
Proposed Plans
Archived · Council Link
Location Plan
Location Plan
Not archived · Council Link
Representations
Representations
Not archived · Council Link
Representations
Representations
Not archived · Council Link
South Yorkshire Fire & Rescue
Consultation Reply
Not archived · Council Link
Yorkshire Water
Consultation Reply
Not archived · Council Link

Take Action

Make your voice heard. Authorities need to hear from people who support new homes.

✉️ Write Email in Support View on Council Portal