← Back to Dover District Council

Status

Awaiting decision Change of use
Received
04 Aug 2025
New dwellings
0

Summary

Partial change of use to a residential dwelling, side/rear extensions and detached covered parking with office above.

Full Proposal

Partial change of use to residential dwelling with internal alterations. Erection of side and rear extensions and detached covered parking with office above

Documents

APPLICANT COVER LETTER
Correspondence
Not archived · Council Link
APPLICANT RESPONSE TO OBJECTIONS
Correspondence
Not archived · Council Link
APPLICANTS RESPONSE TO COMMENTS
Correspondence
Not archived · Council Link
APPLICATION FORM
Application Form
Not archived · Council Link
ARBOROCUTURE REPORT
Report
Not archived · Council Link
ARCHEAOLOGICAL ASSESSMENT
Report
Not archived · Council Link
ECOLOGY
Consultee Response
Not archived · Council Link
ENVIRONMENTAL PROTECTION
Consultee Response
Not archived · Council Link
EXISTING AND PROPOSED SIDE ELEVATIONS
Drawing
Not archived · Council Link
EXISTING AND PROPOSED SITE SECTIONS
Drawing
Not archived · Council Link
EXISTING FIRST FLOOR PLAN
Drawing
Not archived · Council Link
EXISTING FRONT AND REAR ELEVATIONS
Drawing
Not archived · Council Link
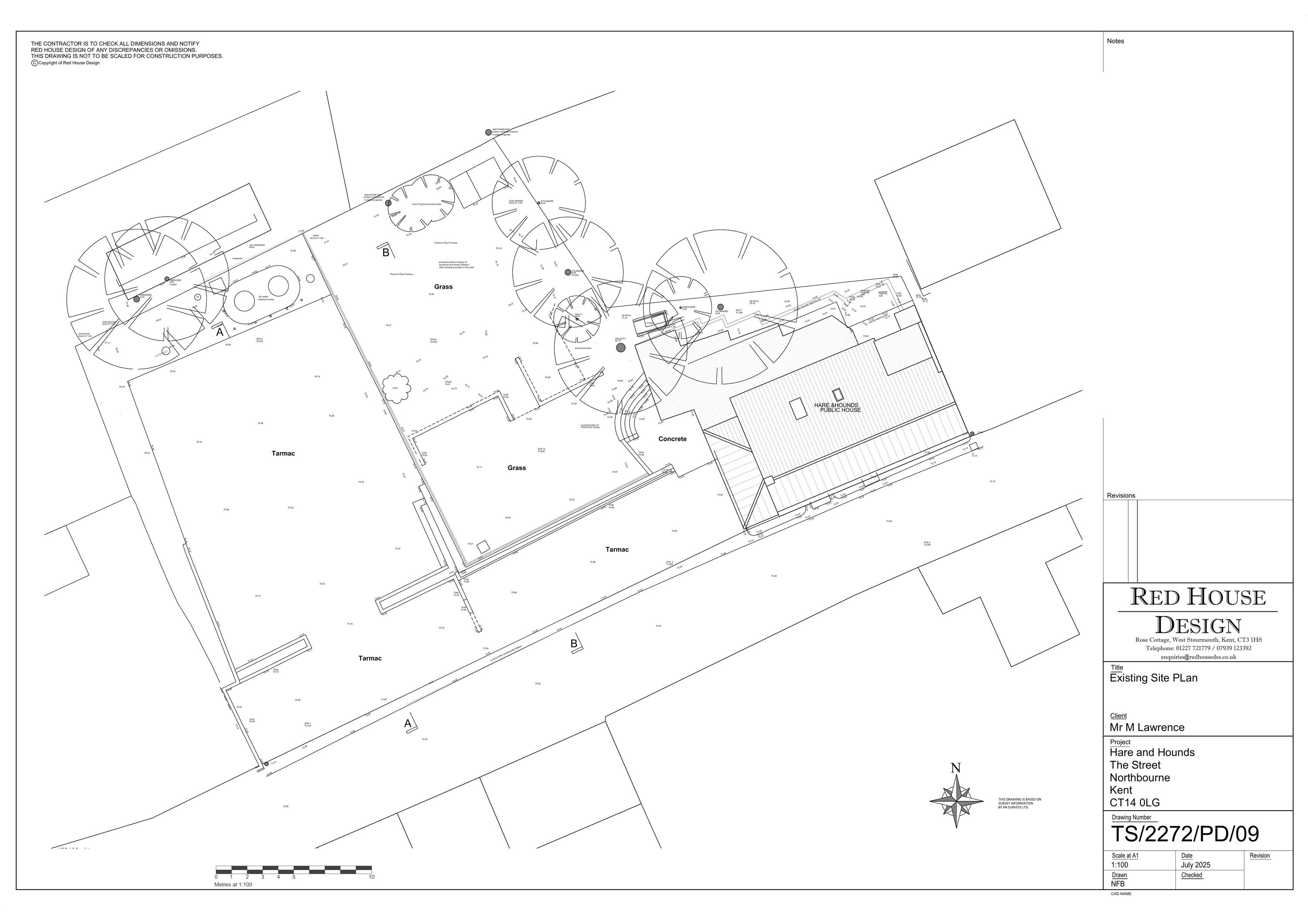
EXISTING GROUND FLOOR PLAN
Drawing
Not archived · Council Link
Drawing
Archived · Council Link
H&H RESPONSE TO DDC 10_10_25
Correspondence
Not archived · Council Link
H&H STATEMENT BRIAN DAVIES (LAST TENANTS) 03_06_25
Correspondence
Not archived · Council Link
LAST OWNERS SUMMARY - HARE AND HOUNDS.
Correspondence
Not archived · Council Link
LEE WALLEDGE
Public Comment
Not archived · Council Link
MILES & BARR MARKETING
Correspondence
Not archived · Council Link
MISS AMELIA BYWATER
Public Comment
Not archived · Council Link
MISS CHARLMAINE POTTER
Public Comment
Not archived · Council Link
MISS CHLOE FRANKS
Public Comment
Not archived · Council Link
MISS ELLE CRITTENDEN
Public Comment
Not archived · Council Link
MISS EMMA HOCKENHULL
Public Comment
Not archived · Council Link
MISS ESMERALDA SHKURTI
Public Comment
Not archived · Council Link
MISS HANNAH CROSBIE
Public Comment
Not archived · Council Link
MISS RHIANNON MCCORMACK
Public Comment
Not archived · Council Link
MISS SADIE WAGSTAFF
Public Comment
Not archived · Council Link
MR ANDREW HAYWARD
Public Comment
Not archived · Council Link
MR ANDREW WALL
Public Comment
Not archived · Council Link
MR BARRY VILE
Public Comment
Not archived · Council Link
MR BEHAR MEMA
Public Comment
Not archived · Council Link
MR CARL MILLAR
Public Comment
Not archived · Council Link
MR CHRIS CUTLER
Public Comment
Not archived · Council Link
MR CHRIS KIRBY
Public Comment
Not archived · Council Link
MR DANIEL PHILPOTT
Public Comment
Not archived · Council Link
MR DAVID DPAIN
Public Comment
Not archived · Council Link
MR DAVID LISTER
Public Comment
Not archived · Council Link
MR DAVID SPAIN
Public Comment
Not archived · Council Link
MR FLOYD TOULET
Public Comment
Not archived · Council Link
MR FREDDY BAKEWELL
Public Comment
Not archived · Council Link
MR GARY WALMSLEY
Public Comment
Not archived · Council Link
MR GENTIAN MEMA
Public Comment
Not archived · Council Link
MR GLEN LEESON
Public Comment
Not archived · Council Link
MR H JANI
Public Comment
Not archived · Council Link
MR HARSH JOSHI
Public Comment
Not archived · Council Link
MR HEATH BLAKE
Public Comment
Not archived · Council Link
MR IAN DENNE
Public Comment
Not archived · Council Link
MR IAN DUNKERLEY
Public Comment
Not archived · Council Link
MR JANOS MANKOVICS
Public Comment
Not archived · Council Link
MR JOHN LAMOON
Public Comment
Not archived · Council Link
MR KEITH HALL
Public Comment
Not archived · Council Link
MR LEE DAVIES
Public Comment
Not archived · Council Link
MR LEE WILSON
Public Comment
Not archived · Council Link
MR MALCOLM PAICE
Public Comment
Not archived · Council Link
MR MICHAEL AUBREY
Public Comment
Not archived · Council Link
MR MICHAEL NADIN
Public Comment
Not archived · Council Link
MR MITCHELL LUCAS
Public Comment
Not archived · Council Link
MR NICHOLAS WOODLAND
Public Comment
Not archived · Council Link
MR NICK BRETT
Public Comment
Not archived · Council Link
MR OLIVER TURNER
Public Comment
Not archived · Council Link
MR PEDRO SUL KULAHCI
Public Comment
Not archived · Council Link
MR PETER BIRCH
Public Comment
Not archived · Council Link
MR PETER CUTLER
Public Comment
Not archived · Council Link
MR PETER CUTLER
Public Comment
Not archived · Council Link
MR ROBIN NORRIS
Public Comment
Not archived · Council Link
MR SAMUEL FLETCHER
Public Comment
Not archived · Council Link
MR TERRY RANCE
Public Comment
Not archived · Council Link
MR TIM TAYLOR
Public Comment
Not archived · Council Link
MR TREVOR FAGE
Public Comment
Not archived · Council Link
MRS CATHERINE TOULET
Public Comment
Not archived · Council Link
MRS DEEPA PATEL
Public Comment
Not archived · Council Link
MRS JACQUIE BRETT
Public Comment
Not archived · Council Link
MRS JENNIFER DAVIS
Public Comment
Not archived · Council Link
MRS LINDSEY GOSLING
Public Comment
Not archived · Council Link
MRS LORRAINE SAUNDERS
Public Comment
Not archived · Council Link
MRS MICHELLE DOMS
Public Comment
Not archived · Council Link
MRS PAMELA CUTLER
Public Comment
Not archived · Council Link
MRS PATRICIA NORRIS
Public Comment
Not archived · Council Link
MRS PATRICIA SKELTON
Public Comment
Not archived · Council Link
MRS RACHAEL VICKERY
Public Comment
Not archived · Council Link
MRS SARAH BLAKE
Public Comment
Not archived · Council Link
MRS ZOE MARSH
Public Comment
Not archived · Council Link
MS AMY WOODHAM
Public Comment
Not archived · Council Link
MS CATHERINE RUTHERFORD
Public Comment
Not archived · Council Link
MS KERSTEN GLANDIEN
Public Comment
Not archived · Council Link
MS LYNN DAVIS
Public Comment
Not archived · Council Link
MS ORLA MCHUGH
Public Comment
Not archived · Council Link
MS PAMELA SWANBOROUGH
Public Comment
Not archived · Council Link
MS PATRICIA BLACKETT
Public Comment
Not archived · Council Link
MS REGINA NORRIS
Public Comment
Not archived · Council Link
NAOMI WALL
Public Comment
Not archived · Council Link
NORTHBOURNE PARISH COUNCIL
Consultee Comment
Not archived · Council Link
OFFICER REPORT
Report
Not archived · Council Link
PENTONVALE DEVELOPMENT OFFER - SUBJECT TO FINAL CONTRACT
Correspondence
Not archived · Council Link
PLANNING AND HERITAGE STATEMENT
Report
Not archived · Council Link
PLANNING APPLICATION BRIEFING
Correspondence
Not archived · Council Link
PRELIMINARY ECOLOGICAL APPRAISAL
Report
Not archived · Council Link
PROPOSED FIRST FLOOR PLAN
Drawing
Not archived · Council Link
PROPOSED FRONT AND REAR ELEVATIONS
Drawing
Not archived · Council Link
PROPOSED GARAGE AND HOME OFFICE FLOOR PLANS AND ELEVATIONS AND SECTIONS
Drawing
Not archived · Council Link
PROPOSED GROUND FLOOR PLAN
Drawing
Not archived · Council Link
PROPOSED SITE AND LANDSCAPE PLAN
Drawing
Not archived · Council Link
Drawing
Archived · Council Link
THE COUNTY ARCHAEOLOGIST
Consultee Response
Not archived · Council Link
TREE AND HORTICULTURE OFFICER
Consultee Response
Not archived · Council Link
TREE CONSTRAINTS PLAN
Drawing
Not archived · Council Link
TREE PROTECTION PLAN
Drawing
Not archived · Council Link
VIABILITY STATEMENT
Report
Not archived · Council Link

Take Action

Make your voice heard. Authorities need to hear from people who support new homes.

✉️ Write Email in Support View on Council Portal