← Back to Dover District Council
25/00967
Dover District Council · IDOX
Status
Awaiting decision
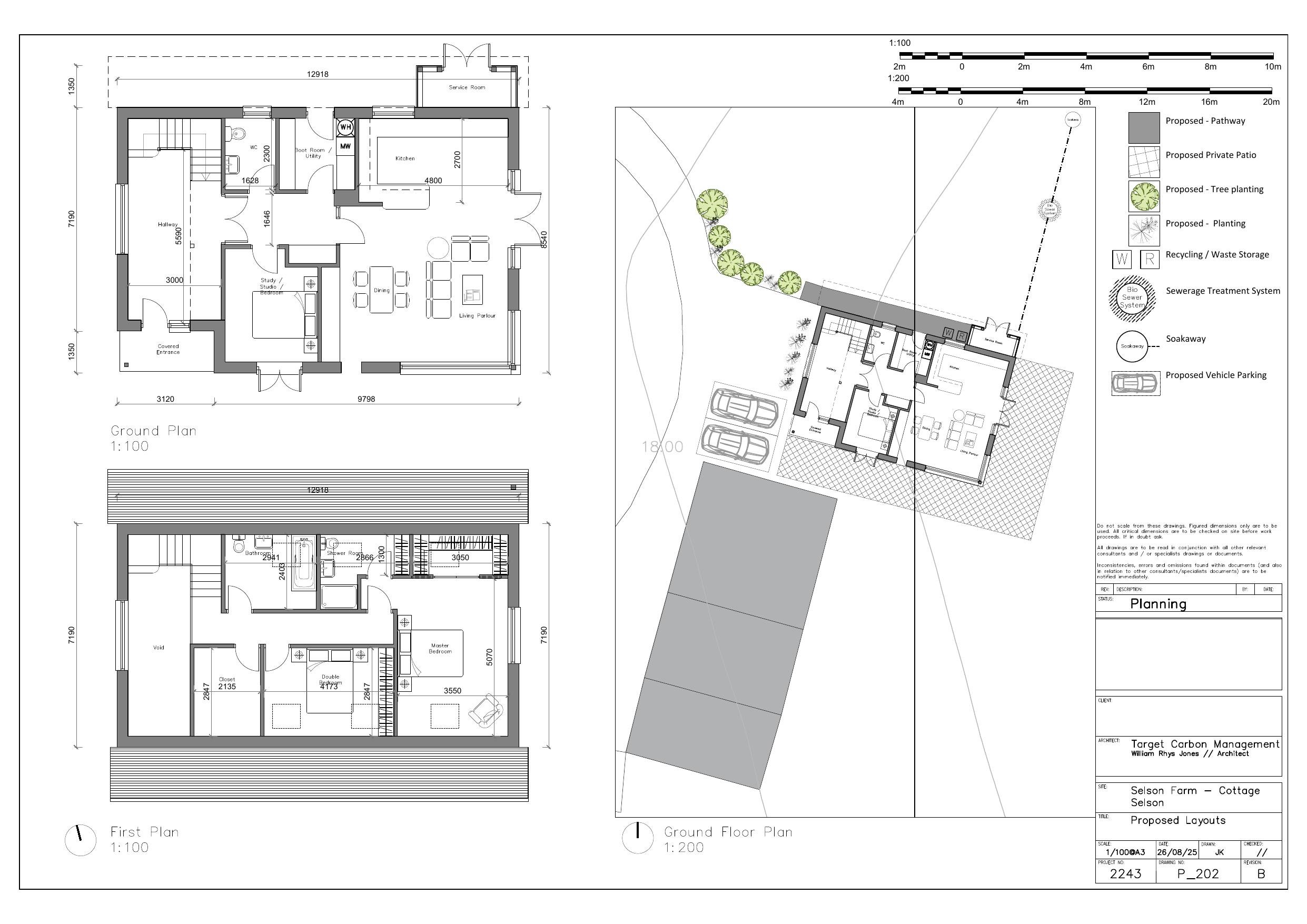
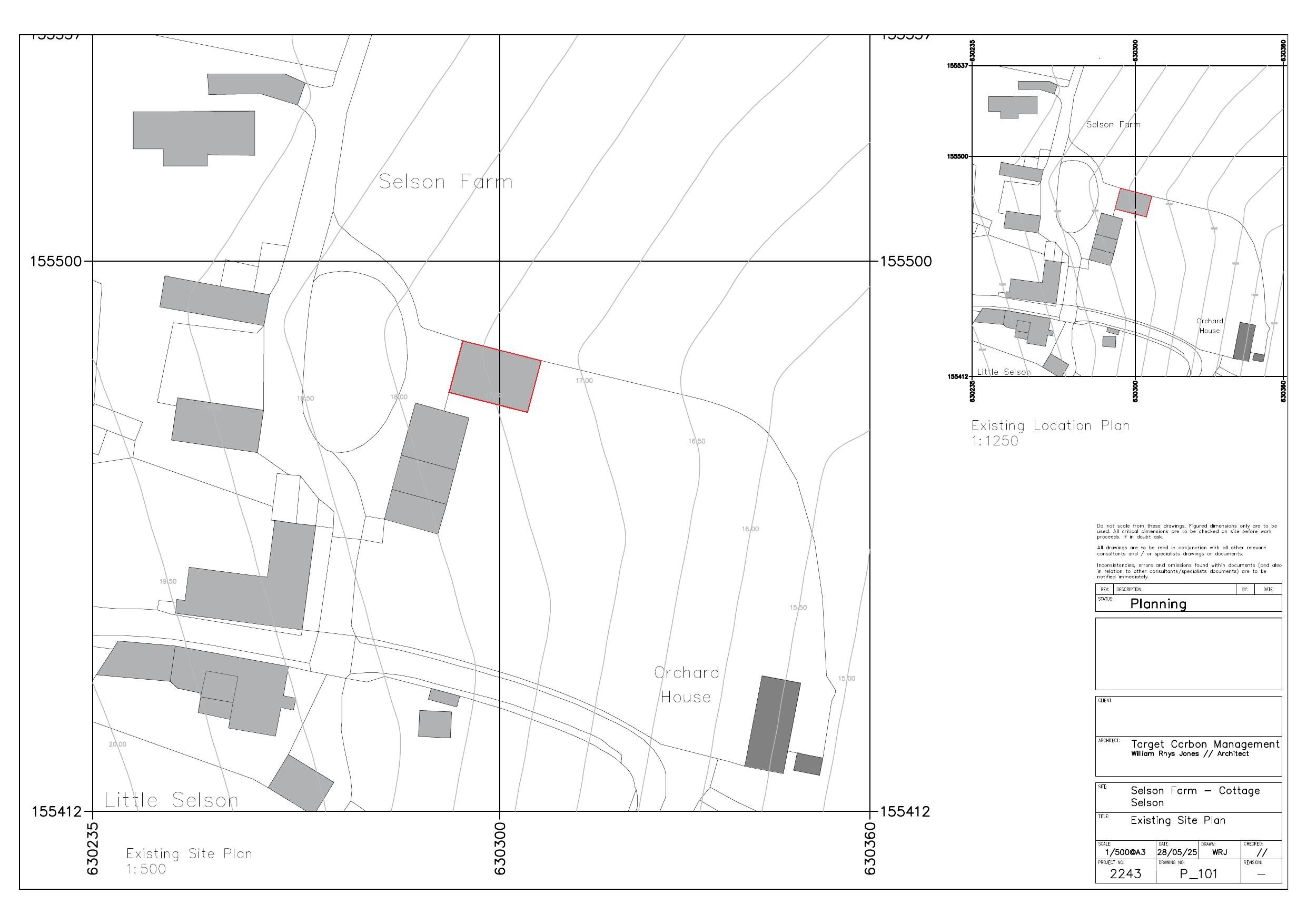
New housing
Received
26 Aug 2025
New dwellings
1
Full Proposal
Erection of dwellinghouse (existing barn to be demolished) (Self-Build)
Documents
Take Action
Make your voice heard. Authorities need to hear from people who support new homes.