← Back to Dover District Council

Status

Awaiting decision Change of use
Received
21 Nov 2025
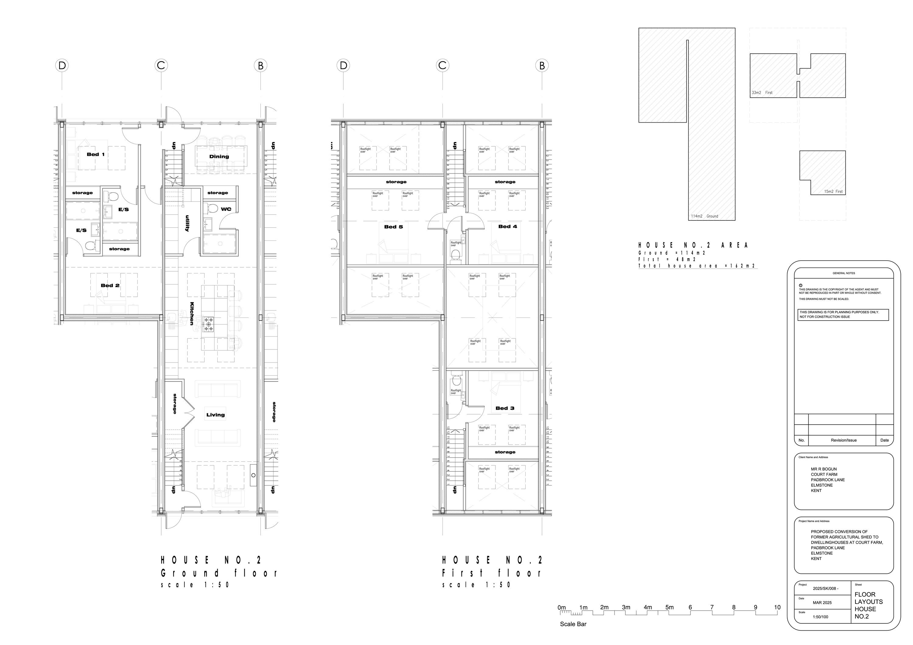
New dwellings
3

Full Proposal

Conversion and change of use from light industrial shed to 3 dwellinghouses with associated garden, amenity space and parking

Documents

APPLICATION FORM
Application Form
Not archived · Council Link
BAT EMERGENCE SURVEY REPORT
Report
Not archived · Council Link
BNG ASSESSMENT
Report
Not archived · Council Link
BNG METRIC
Report
Not archived · Council Link
DESIGN AND ACCESS STATEMENT
Report
Not archived · Council Link
ENVIRONMENTAL PROTECTION
Consultee Response
Not archived · Council Link
EXISTING FLOOR PLANS AND ELEVATIONS
Drawing
Not archived · Council Link
KCC ECOLOGY
Consultee Response
Not archived · Council Link
KCC HIGHWAYS
Consultee Response
Not archived · Council Link
KENT FIRE & RESCUE SERVICE
Consultee Response
Not archived · Council Link
PRELIMINARY ECOLOGICAL APPRAISAL
Report
Not archived · Council Link
PROPOSED SECTIONS 1 OF 2
Drawing
Not archived · Council Link
PROPOSED SECTIONS 2 OF 2
Drawing
Not archived · Council Link
PUBLIC RIGHTS OF WAY & ACCESS SERVICE
Consultee Response
Not archived · Council Link
SOUTHERN WATER
Consultee Response
Not archived · Council Link
SOUTHERN WATER MAP
Consultee Response
Not archived · Council Link

Take Action

Make your voice heard. Authorities need to hear from people who support new homes.

✉️ Write Email in Support View on Council Portal