← Back to Dover District Council

Status

Awaiting decision New housing
Received
08 Dec 2025
New dwellings
7

Full Proposal

Erection of 7 new dwellings with associated parking

Documents

APPLICATION FORM
Application Form
Not archived · Council Link
BNG METRIC
Report
Not archived · Council Link
BNG REPORT
Report
Not archived · Council Link
DESIGN, ACCESS AND HERITAGE STATEMENT
Report
Not archived · Council Link
Drawing
Archived · Council Link
KCC HIGHWAYS
Consultee Response
Not archived · Council Link
KCC SENIOR ARCHAEOLOGICAL OFFICER
Consultee Response
Not archived · Council Link
ON SITE BASE LINE MAP
Drawing
Not archived · Council Link
ON SITE POST INTERVENTION MAP
Drawing
Not archived · Council Link
PROPOSED ELEVATIONS PLOT 1
Drawing
Not archived · Council Link
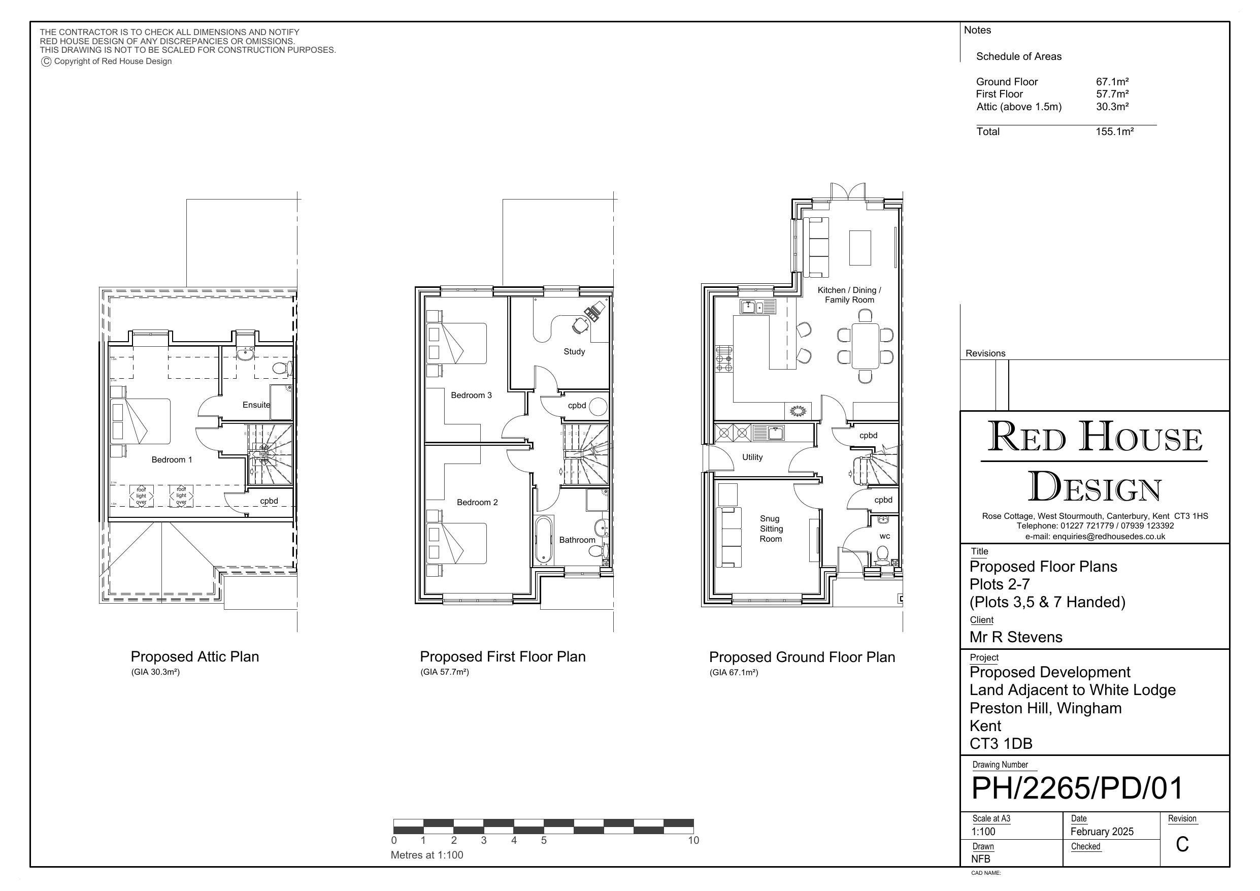
PROPOSED ELEVATIONS, PLOTS 2-7
Drawing
Not archived · Council Link
PROPOSED STREET SCENE
Drawing
Not archived · Council Link
PUBLIC RIGHTS OF WAY & ACCESS SERVICE
Consultee Response
Not archived · Council Link
Drawing
Archived · Council Link
SOUTHERN WATER
Consultee Response
Not archived · Council Link
SOUTHERN WATER MAP
Consultee Response
Not archived · Council Link
TOPOGRAPHICAL SURVEY
Drawing
Not archived · Council Link
TOPOGRAPHICAL SURVEY
Drawing
Not archived · Council Link
VISIBILITY SPLAYS
Drawing
Not archived · Council Link

Take Action

Make your voice heard. Authorities need to hear from people who support new homes.

✉️ Write Email in Support View on Council Portal