← Back to Dover District Council

Status

Awaiting decision Change of use
Received
08 Dec 2025
New dwellings
1

Full Proposal

Change of use and conversion of dog kennels and storage barn (Sui Generis) to dwellinghouse (C3) with the erection of front porch and connection walkway. Alterations to fenestration and associated works (self build)

Documents

3D IMAGERY 1 OF 7
Drawing
Not archived · Council Link
3D IMAGERY 2 OF 7
Drawing
Not archived · Council Link
3D IMAGERY 3 OF 7
Drawing
Not archived · Council Link
3D IMAGERY 4 OF 7
Drawing
Not archived · Council Link
3D IMAGERY 5 OF 7
Drawing
Not archived · Council Link
3D IMAGERY 6 OF 7
Drawing
Not archived · Council Link
3D IMAGERY 7 OF 7
Drawing
Not archived · Council Link
APPLICATION FORM
Application Form
Not archived · Council Link
CONTAMINATED LAND RISK ASSESSMENT
Report
Not archived · Council Link
COVER LETTER
Correspondence
Not archived · Council Link
EXISTING ELEVATIONS - DOG KENNEL
Drawing
Not archived · Council Link
EXISTING ELEVATIONS - THE BARN
Drawing
Not archived · Council Link
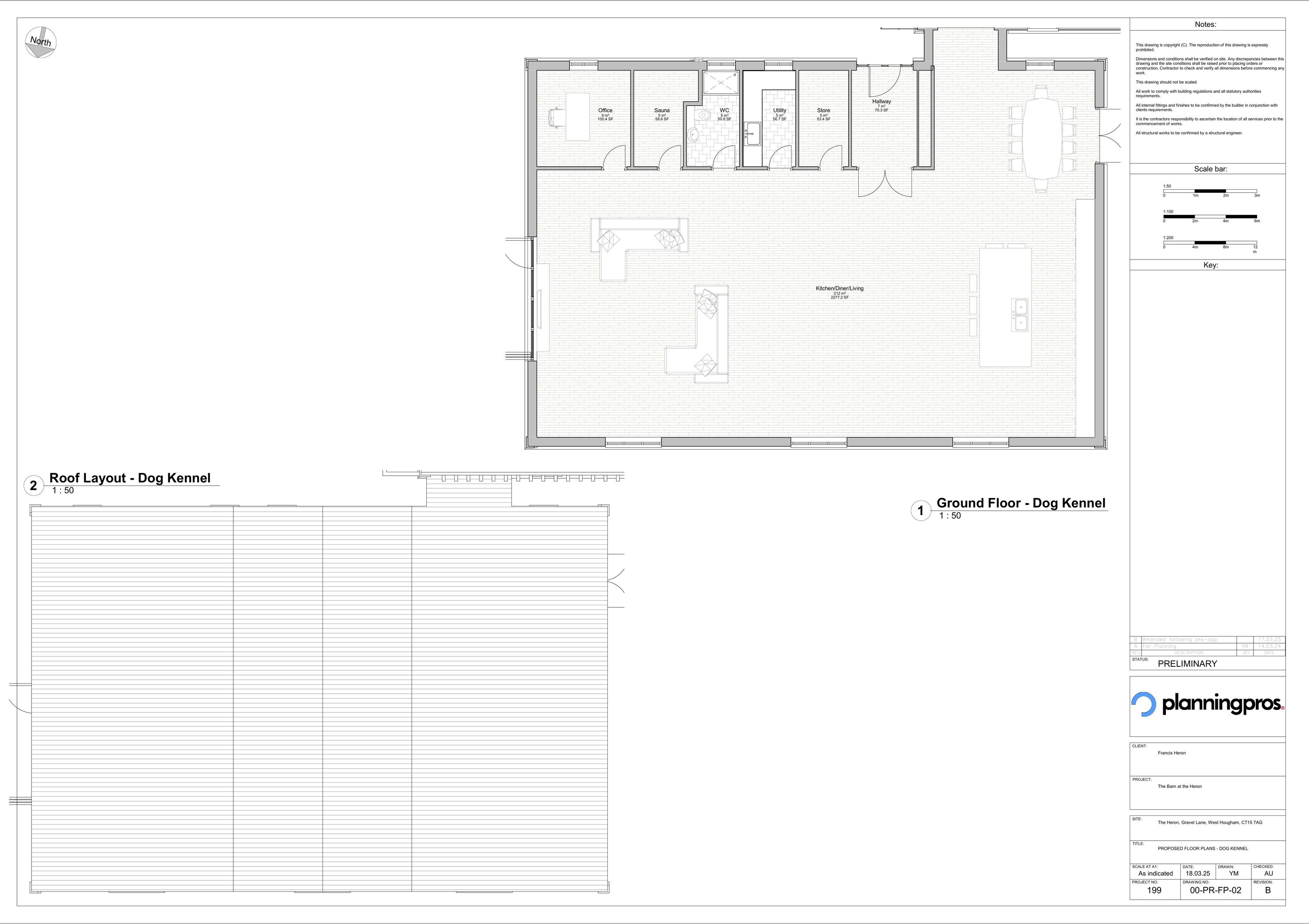
EXISTING FLOOR PLANS - DOG KENNEL
Drawing
Not archived · Council Link
EXISTING FLOOR PLANS - THE BARN
Drawing
Not archived · Council Link
EXISTING FLOOR PLANS AND ELEVATIONS - CSU
Drawing
Not archived · Council Link
EXISTING FLOOR PLANS AND ELEVATIONS - RECEPTION BUILDING
Drawing
Not archived · Council Link
LANDSCAPE AND VISUAL APPRAISAL
Report
Not archived · Council Link
MRS CAROLINE MOORE
Public Comment
Not archived · Council Link
PLANNING STATEMENT
Report
Not archived · Council Link
PROPOSED ELEVATIONS - DOG KENNEL
Drawing
Not archived · Council Link
PROPOSED ELEVATIONS - THE BARN
Drawing
Not archived · Council Link
PROPOSED SECTION
Drawing
Not archived · Council Link
UPDATED ECOLOGICAL APPRAISAL
Report
Not archived · Council Link

Take Action

Make your voice heard. Authorities need to hear from people who support new homes.

✉️ Write Email in Support View on Council Portal