← Back to Dover District Council

Status

Awaiting decision New housing
Received
Last month
New dwellings
1

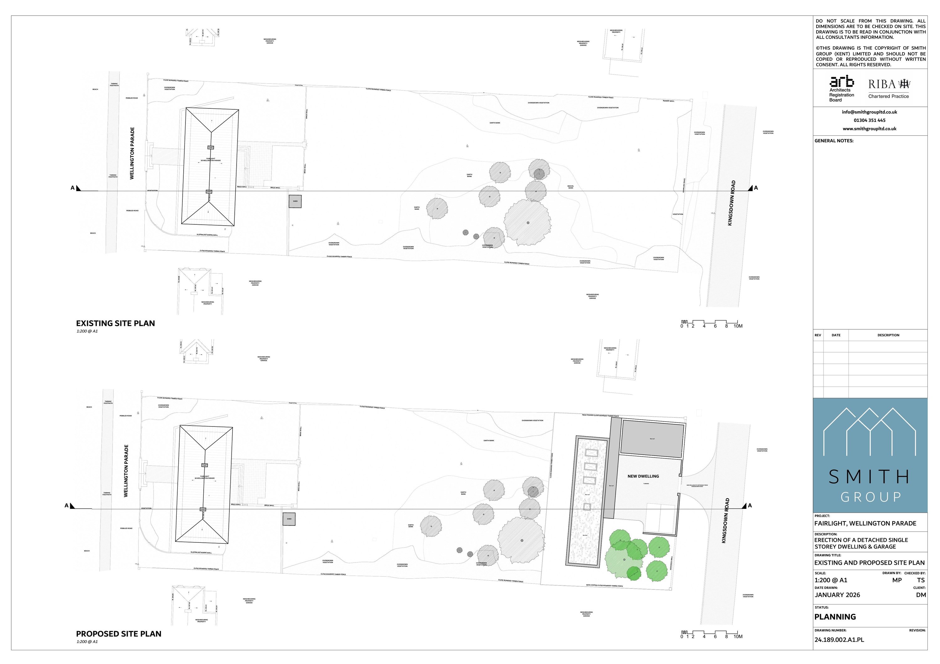
Full Proposal

Erection of detached single storey dwelling and garage (self build)

Documents

APPLICATION FORM
Application Form
Not archived · Council Link
KCC HIGHWAYS
Consultee Response
Not archived · Council Link
PROPOSED SITE SECTIONS
Drawing
Not archived · Council Link
WALMER TOWN COUNCIL
Consultee Comment
Not archived · Council Link

Take Action

Make your voice heard. Authorities need to hear from people who support new homes.

✉️ Write Email in Support View on Council Portal