← Back to Dudley Metropolitan Borough Council
P25/0328
Dudley Metropolitan Borough Council · AGILE
Status
Decision made
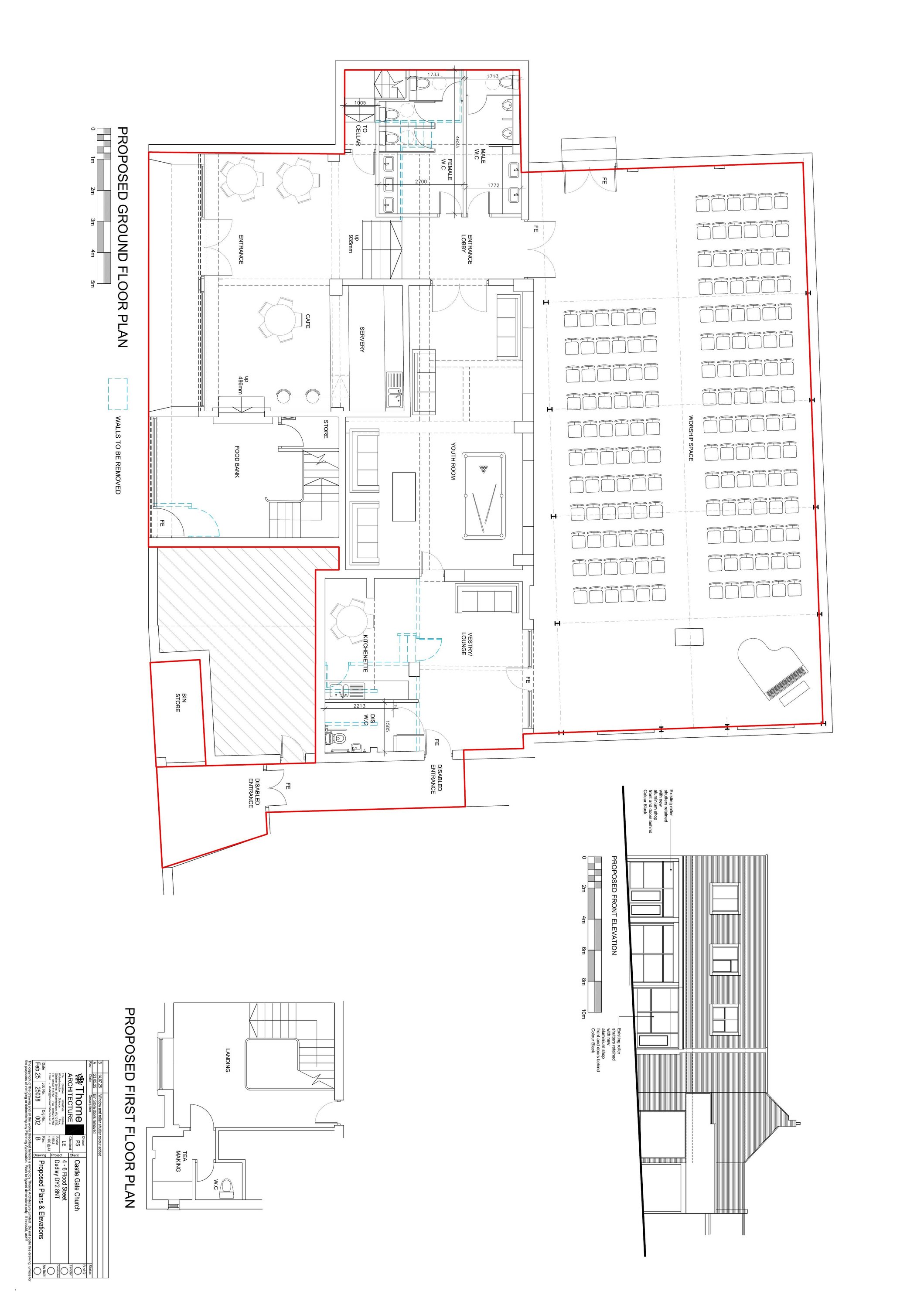
Change of use
Received
17 Mar 2025
New dwellings
0
Summary
Change of use to a church (Use Class F1) with new aluminium shopfront and external alterations.
Full Proposal
Change of use from former retail, commercial and warehouse to Church (Use Class F1) New aluminium shopfront and external alterations.
Documents
Take Action
Make your voice heard. Authorities need to hear from people who support new homes.