← Back to Dudley Metropolitan Borough Council

Status

Registered application Demolition
Received
31 Jul 2025
New dwellings
0

Summary

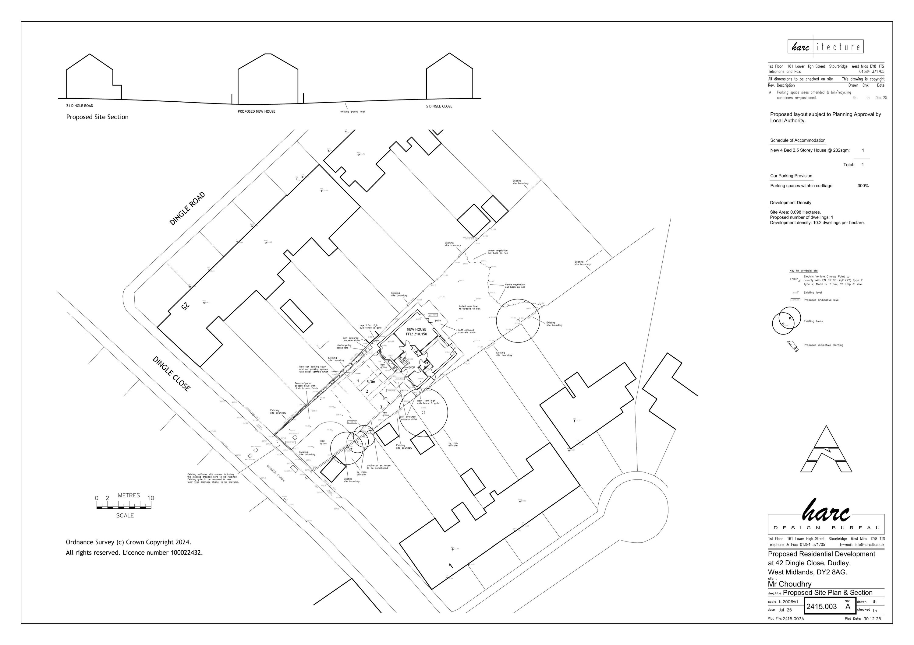
Demolish existing house and erect a replacement dwelling.

Full Proposal

Demolition of existing dwelling and erection of replacement dwelling

Documents

Consultee Response - Highways
DCCONRES
Not archived · Council Link
Existing & Proposed Site Sections
DCNEWPLN
Not archived · Council Link
Existing Elevations
DCNEWPLN
Not archived · Council Link
Existing Floor Plans
DCNEWPLN
Not archived · Council Link
File Size: 147803, HREF: , Reference: Site/Block Plan - Existing
DCPUBLIC
Not archived · Council Link
File Size: 558671, HREF: , Reference: Planning statement
DCPUBLIC
Not archived · Council Link
Location plan (A4)
DCPUBLIC
Not archived · Council Link
Proposed Access and Vehicle Tracking
DCNEWPLN
Not archived · Council Link
Proposed Block Plan
DCNEWPLN
Not archived · Council Link
Proposed block plan (A3)
DCPUBLIC
Not archived · Council Link
DCPUBLIC
Archived · Council Link
Technical Note
DCNEWINF
Not archived · Council Link

Take Action

Make your voice heard. Authorities need to hear from people who support new homes.

✉️ Write Email in Support View on Council Portal