← Back to London Borough of Ealing

Status

Awaiting Legal Agreement Change of use
Received
01 Oct 2024
New dwellings
81

Full Proposal

Change of use of commercial building (Use Class E) into 81no. self-contained residential unit (Use Class C3) (Class MA, 56 Day Prior Approval Process)

Documents

24.1480 OA ACCOMMODATION SCHEDULE REVD.PDF
Supporting Documentation
Not archived · Council Link
5810 - INTERNAL DAYLIGHT ASSESSMENT - REV 2 - ISSUED 03.10.2024.PDF
Supporting Documentation
Not archived · Council Link
APPLICATION
Application Form - Redacted
Not archived · Council Link
CA5635_TR001_A - SWEPT PATH ANALYSIS - REFUSE VEHICLE- SPLIT.PDF
Supporting Documentation
Not archived · Council Link
CLASS MA COVER LETTER CRAVEN HOUSE
Supporting Documentation
Not archived · Council Link
DRAFT DECISION NOTICE
Decision
Not archived · Council Link
EXISTING 1F PLAN
Drawing
Not archived · Council Link
EXISTING 2F PLAN
Drawing
Not archived · Council Link
EXISTING 3F PLAN
Drawing
Not archived · Council Link
EXISTING 4F PLAN
Drawing
Not archived · Council Link
EXISTING 5F PLAN
Drawing
Not archived · Council Link
EXISTING 6F PLAN
Drawing
Not archived · Council Link
EXISTING 7F PLAN
Drawing
Not archived · Council Link
EXISTING EAST ELEVATION
Drawing
Not archived · Council Link
EXISTING GF PLAN
Drawing
Not archived · Council Link
EXISTING NORTH ELEVATION
Drawing
Not archived · Council Link
EXISTING SOUTH ELEVATION
Drawing
Not archived · Council Link
EXISTING WEST ELEVATION
Drawing
Not archived · Council Link
FIRE STATEMENT
Fire Statement
Not archived · Council Link
LAMP POST
Site Notice
Not archived · Council Link
NEIGHBOUR SITE NOTICE
Site Notice
Not archived · Council Link
OFFICERS REPORT
Officer Report
Not archived · Council Link
PROPOSED 1F PLAN
Drawing
Not archived · Council Link
PROPOSED 2F PLAN
Drawing
Not archived · Council Link
PROPOSED 3F PLAN
Drawing
Not archived · Council Link
PROPOSED 3F PLAN
Drawing
Not archived · Council Link
PROPOSED 4F PLAN
Drawing
Not archived · Council Link
PROPOSED 5F PLAN
Drawing
Not archived · Council Link
PROPOSED 6F PLAN
Drawing
Not archived · Council Link
PROPOSED 7F PLAN
Drawing
Not archived · Council Link
PROPOSED EAST ELEVATION
Drawing
Not archived · Council Link
PROPOSED EAST ELEVATION
Drawing
Not archived · Council Link
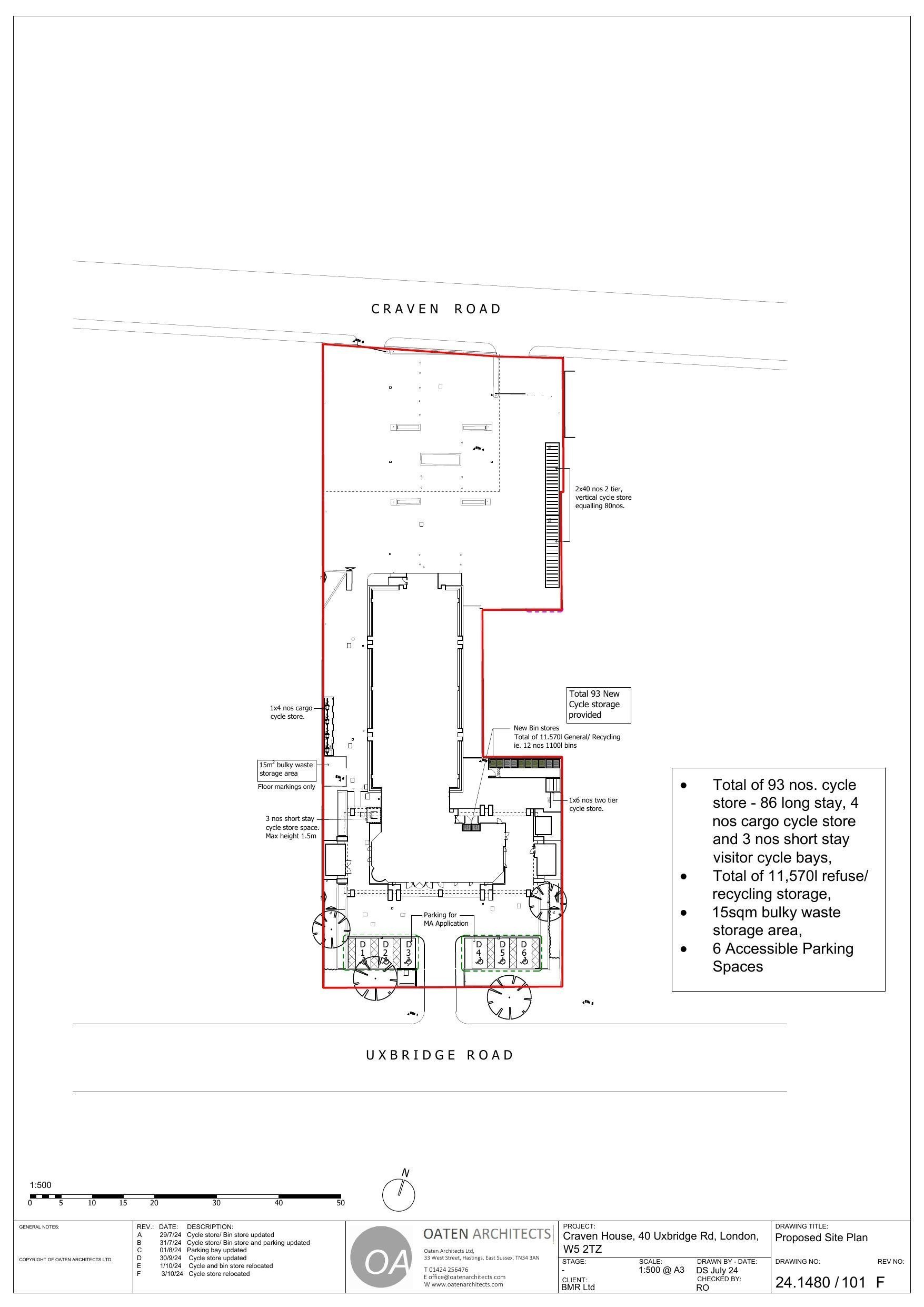
PROPOSED GF PLAN
Drawing
Not archived · Council Link
PROPOSED NORTH ELEVATION
Drawing
Not archived · Council Link
PROPOSED NORTH ELEVATION
Drawing
Not archived · Council Link
PROPOSED NORTH ELEVATION
Drawing
Not archived · Council Link
PROPOSED SIDE PLAN
Drawing
Not archived · Council Link
Drawing
Archived · Council Link
PROPOSED SOUTH ELEVATION
Drawing
Not archived · Council Link
PROPOSED SOUTH ELEVATION
Drawing
Not archived · Council Link
PROPOSED WEST ELEVATION
Drawing
Not archived · Council Link
PROPOSED WEST ELEVATION
Drawing
Not archived · Council Link
PROPOSED WEST ELEVATION
Drawing
Not archived · Council Link
REVISED 6TH FLOORPLAN
Drawing
Not archived · Council Link
Drawing
Archived · Council Link
TECHNICAL NOTE
Transport Assessment
Not archived · Council Link

Take Action

Make your voice heard. Authorities need to hear from people who support new homes.

✉️ Write Email in Support View on Council Portal