← Back to London Borough of Ealing

Status

Awaiting Legal Agreement New housing
Received
16 Dec 2024
New dwellings
49

Full Proposal

Demolition of existing building and construction of an industrial-led mixed used development comprising circa 696sqm commercial floorspace at ground and first floor and 49no. residential units (Class C3) on upper floors (up to 12 storeys) with associated landscaping, parking and servicing, cycle and refuse storage

Documents

-ILLUSTRATIVE MASTERPLAN
Drawing
Not archived · Council Link
AFFORDABLE HOUSING STATEMENT
Supporting Documentation
Not archived · Council Link
AGENT OF CHANGE ASSESSMENT
Supporting Documentation
Not archived · Council Link
AIR QUALITY ASSESSMENT
Supporting Documentation
Not archived · Council Link
APPLICATIONREDACTED
Application Form - Redacted
Not archived · Council Link
CARBON EMISSION INFORMATION
Supporting Documentation
Not archived · Council Link
CARBON EMISSION INFORMATION
Supporting Documentation
Not archived · Council Link
CARBON SPREADSHEETS
Supporting Documentation
Not archived · Council Link
CIRCULAR ECONOMY STATEMENT
Supporting Documentation
Not archived · Council Link
DAS 1-8
Supporting Documentation
Not archived · Council Link
DAS 1-8
Supporting Documentation
Not archived · Council Link
DAS 1-8
Supporting Documentation
Not archived · Council Link
DAS 1-8
Supporting Documentation
Not archived · Council Link
DAS 1-8
Supporting Documentation
Not archived · Council Link
DAS 1-8
Supporting Documentation
Not archived · Council Link
DAS 1-8
Supporting Documentation
Not archived · Council Link
DAS 1-8
Supporting Documentation
Not archived · Council Link
DAYLIGHT SUNLIGHT AND OVERSHADOWING REPORT
Supporting Documentation
Not archived · Council Link
DAYLIGHT SUNLIGHT AND OVERSHADOWING REPORT
Supporting Documentation
Not archived · Council Link
DRAFT LEGAL AGREEMENT - REDACTED
Legal Documentation
Not archived · Council Link
ENERGY STSTATENET
Supporting Documentation
Not archived · Council Link
EXISTING ELEVATION 1-100
Drawing
Not archived · Council Link
FIRE STRATEGY
Supporting Documentation
Not archived · Council Link
FLOOD RISK ASSESSMENT AND DRAINAGE STRATEGY
Supporting Documentation
Not archived · Council Link
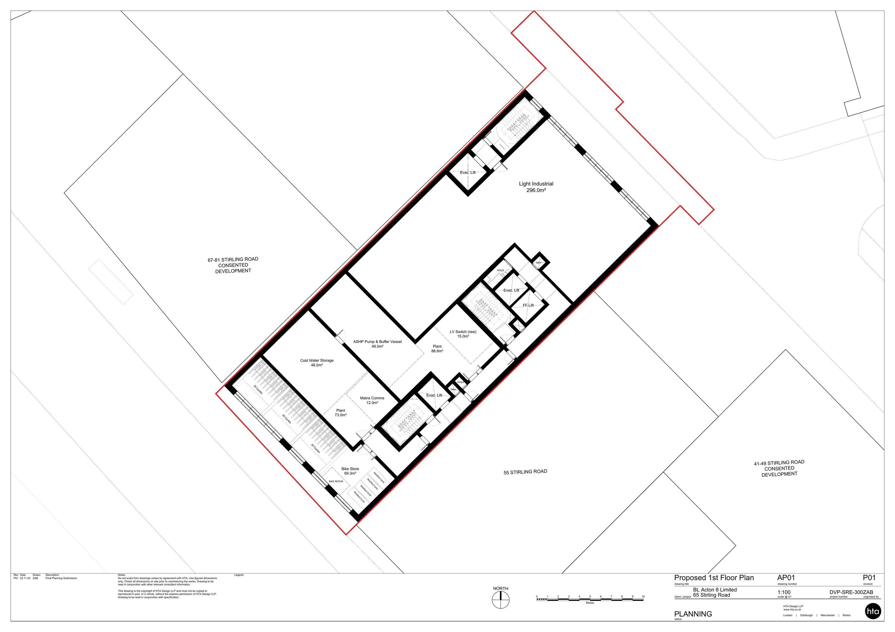
FLOOR PLAN 6-8
Drawing
Not archived · Council Link
GATEWAY ONE FIRE STATEMENT
Supporting Documentation
Not archived · Council Link
HEALTHY STREETS TRANSPORT ASSESSMENT
Supporting Documentation
Not archived · Council Link
LAMP POST
Site Notice
Not archived · Council Link
LONDON PLAN FIRE STATEMENT
Supporting Documentation
Not archived · Council Link
MAJOR SITE NOTICE
Site Notice
Not archived · Council Link
NOISE IMPACT ASSESSMENT
Supporting Documentation
Not archived · Council Link
OUTLINE CONSTRUCTION LOGISTICS PLAN
Supporting Documentation
Not archived · Council Link
OVERHEATING ASSESSMENT.
Supporting Documentation
Not archived · Council Link
OWMP REPORT
Supporting Documentation
Not archived · Council Link
PLANNING STATEMENT
Supporting Documentation
Not archived · Council Link
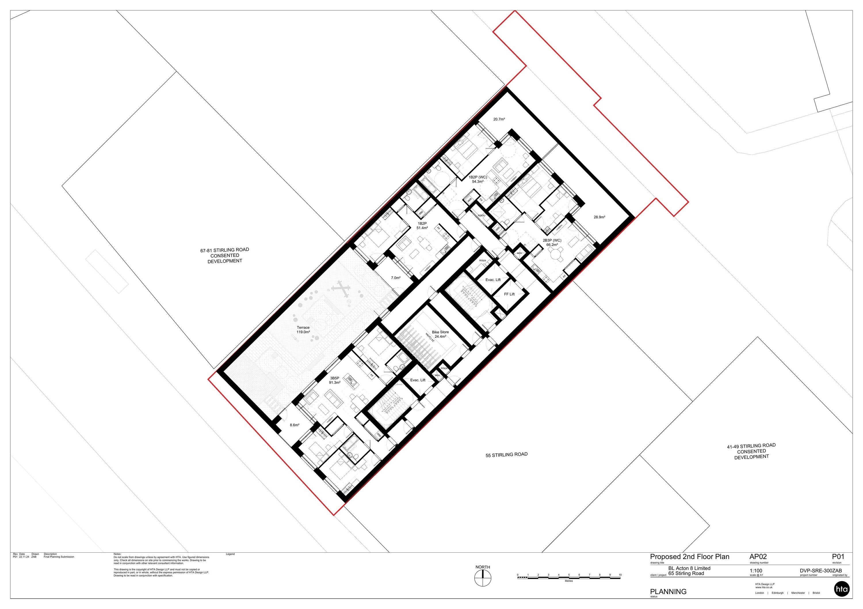
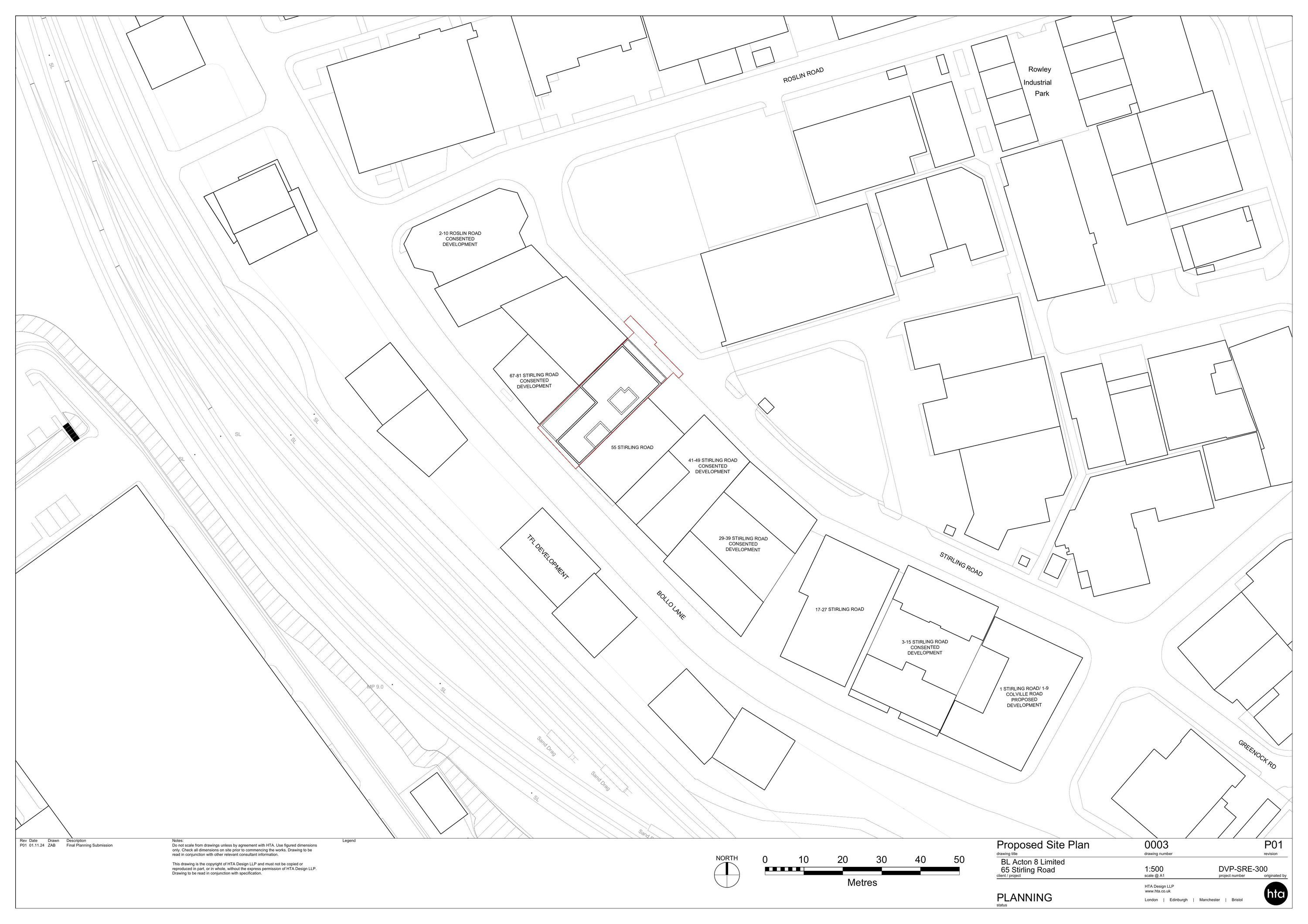
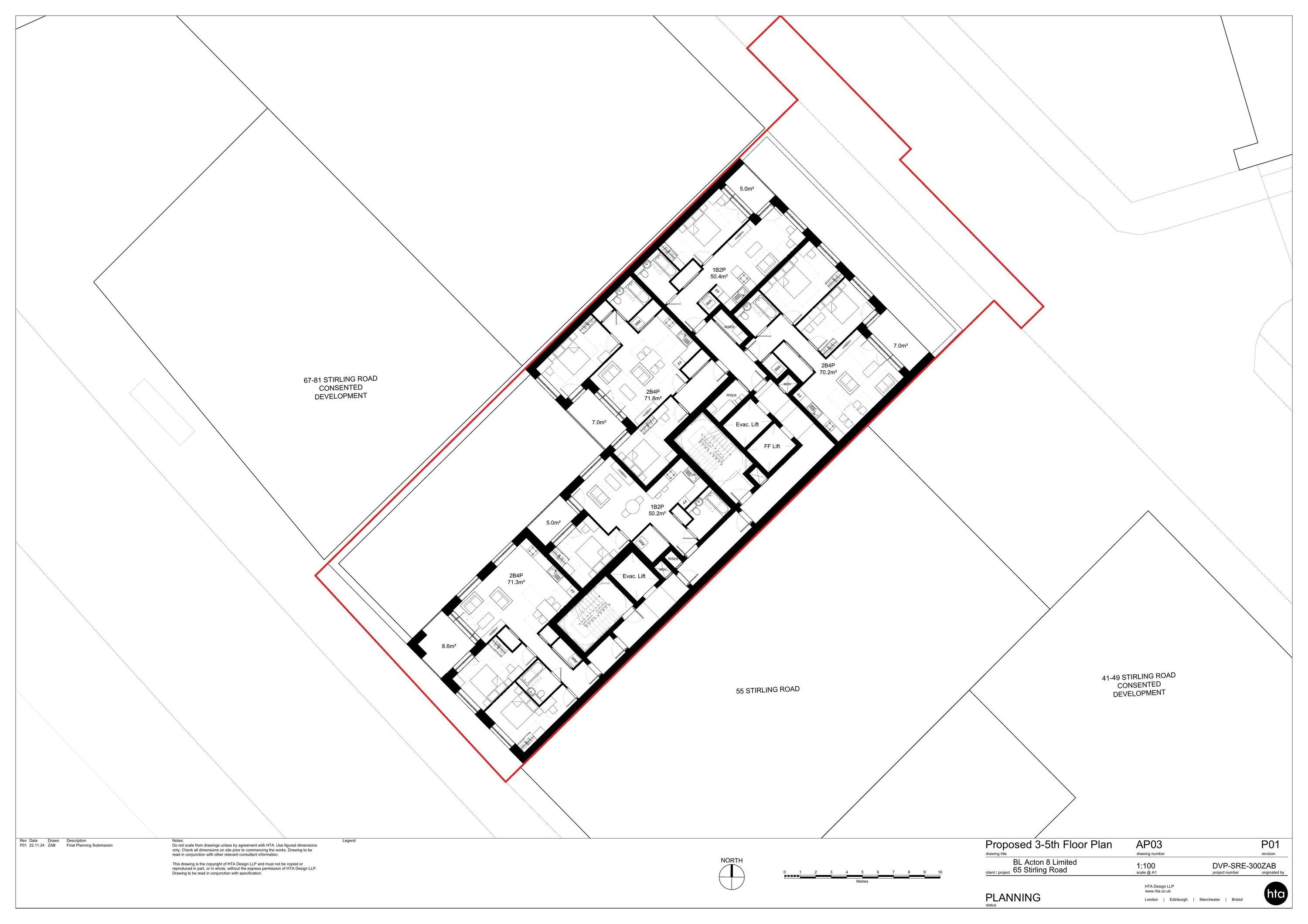
PLANS
Drawing
Not archived · Council Link
PROPOSED EAST-WEST SECTION-1-200
Drawing
Not archived · Council Link
PROPOSED NORTH-SOUTH SECTION-1-200
Drawing
Not archived · Council Link
PROPOSED PLAN
Drawing
Not archived · Council Link
PROPOSED PLAN 12 FLOOR
Drawing
Not archived · Council Link
PROPOSED PLAN 9-11 FLOOR
Drawing
Not archived · Council Link
Drawing
Archived · Council Link
Drawing
Archived · Council Link
TRAVEL PLAN
Supporting Documentation
Not archived · Council Link
TREE AND PLANTING STRATEGY
Drawing
Not archived · Council Link
WASTE FACTORS AND RECYCLED CONTENT
Supporting Documentation
Not archived · Council Link
WHOLE LIFE CARBON ASSESSMENT.
Supporting Documentation
Not archived · Council Link

Take Action

Make your voice heard. Authorities need to hear from people who support new homes.

✉️ Write Email in Support View on Council Portal