← Back to London Borough of Ealing

Status

Awaiting Legal Agreement Change of use
Received
06 Feb 2025
New dwellings
0

Summary

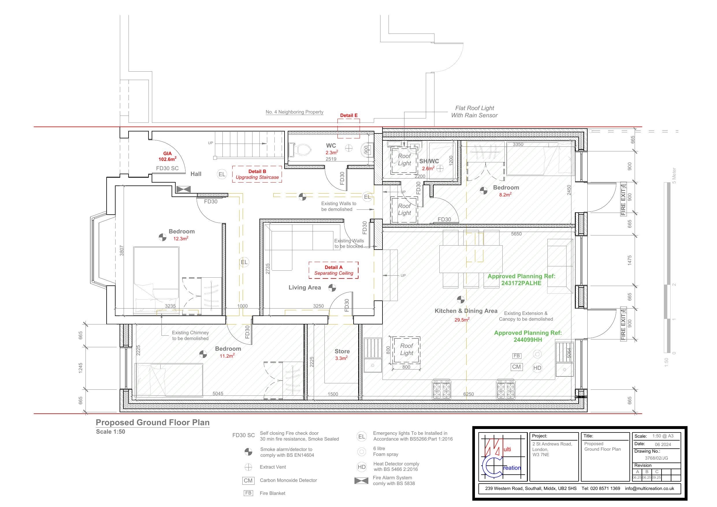
Change of use to nine-person Large HMO (eight bedrooms) with part extensions, roof alterations and rooflights.

Full Proposal

Change of use of a single dwellinghouse (Use Class C3) into a Large House in Multiple Occupation (HMO) (Sui Generis) for nine persons (eight bedrooms); part two, part single storey rear/side extension; alteration of roof from hip to gable end, rear roof extension, installation of four front rooflights

Documents

APPLICATIONFORMREDACTED
Application Form - Without Personal Data
Not archived · Council Link
DECISION NOTICE
Decision
Not archived · Council Link
HMO MANAGEMENT PLAN
Supporting Documentation
Not archived · Council Link
LAMPOST SITE NOTICE LOCATIONS
Draw - Location Plan
Not archived · Council Link
LCTN BLK
Draw - Location Plan
Not archived · Council Link
NEIGHBOUR SITE NOTICE
Site Notice
Not archived · Council Link
OFFICERS REPORT
Officer Report
Not archived · Council Link
PLAN SET
Drawing
Not archived · Council Link
REVISED NEIGHBOUR SITE NOTICE
Site Notice
Not archived · Council Link
Draw - Exist Site/Block Plan
Archived · Council Link

Take Action

Make your voice heard. Authorities need to hear from people who support new homes.

✉️ Write Email in Support View on Council Portal