← Back to London Borough of Ealing

Status

Awaiting Legal Agreement Change of use
Received
12 Jun 2025
New dwellings
0

Summary

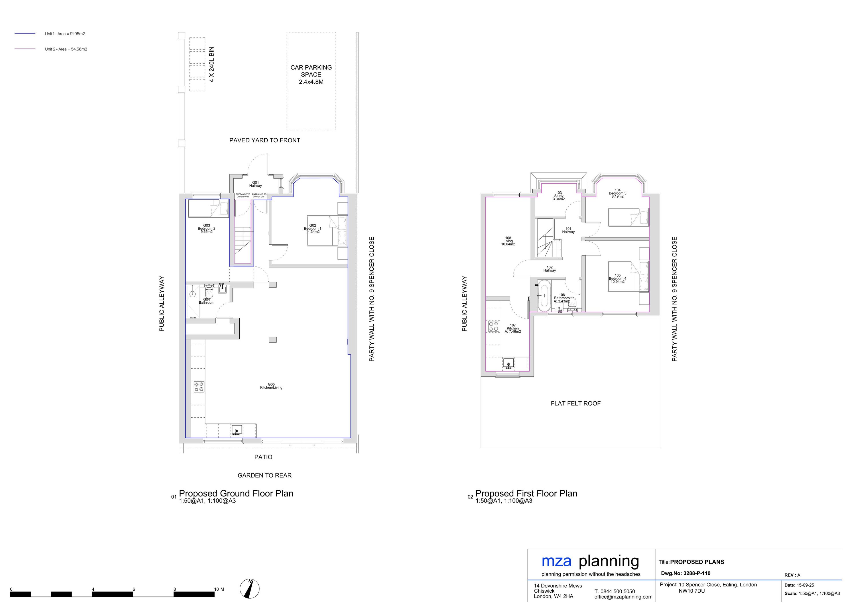
Convert single dwelling into ground-floor self-contained flat and first-floor HMO with extensions.

Full Proposal

Conversion of single dwellinghouse into ground floor self-contained flat (Use Class C3) and first floor as (Use Class C4) House in Multiple Occupation; two storey side extension; part two storey rear extension and amended single storey rear extension (Retrospective Application - REVISED PLANS)

Documents

3288-P-010-EXISTING PLANS
Drawing
Not archived · Council Link
3288-P-011-EXISTING ELEVATIONS
Drawing
Not archived · Council Link
3288-P-111-PROPOSED ELEVATIONS
Drawing
Not archived · Council Link
APPLICATIONFORMREDACTED
Application Form - Without Personal Data
Not archived · Council Link
DAYLIGHT AND SUNLIGHT ASSESSMENT
Daylight Assessment
Not archived · Council Link
Daylight Assessment
Daylight Assessment
Not archived · Council Link
DRAFT DECISION NOTICE
Decision
Not archived · Council Link
ELEVATIONS
Drawing
Not archived · Council Link
EXISTING BLOCK PLAN
Drawing
Not archived · Council Link
FIRE EXCEPTION STATEMENT
Fire Statement
Not archived · Council Link
LAMPOST LOCATIONS
Site Notice
Not archived · Council Link
LOCATIONPLAN
Draw - Location Plan
Not archived · Council Link
NEIGHBOUR SITE NOTICE
Site Notice
Not archived · Council Link
NEIGHBOUR SITE NOTICE
Site Notice
Not archived · Council Link
OFFICERS REPORT
Officer Report
Not archived · Council Link
PLANNING STATEMENT
Planning Statement
Not archived · Council Link
PLANS
Drawing
Not archived · Council Link
PROPOSED BLOCK PLAN
Drawing
Not archived · Council Link
PROPOSED BLOCK PLAN
Drawing
Not archived · Council Link
PROPOSED BLOCK PLAN
Drawing
Not archived · Council Link
REVISED BLOCK PLAN
Drawing
Not archived · Council Link
REVISED EXISTING ELEVATIONS
Drawing
Not archived · Council Link
REVISED EXISTING PLANS
Drawing
Not archived · Council Link
REVISED PRE-EXISTING ELEVATIONS
Drawing
Not archived · Council Link
REVISED PRE-EXISTING PLANS
Drawing
Not archived · Council Link
REVISED PROPOSED ELEVATIONS
Drawing
Not archived · Council Link
Drawing
Archived · Council Link

Take Action

Make your voice heard. Authorities need to hear from people who support new homes.

✉️ Write Email in Support View on Council Portal