← Back to London Borough of Ealing

Status

Awaiting Legal Agreement New housing
Received
11 Jul 2025
New dwellings
2

Summary

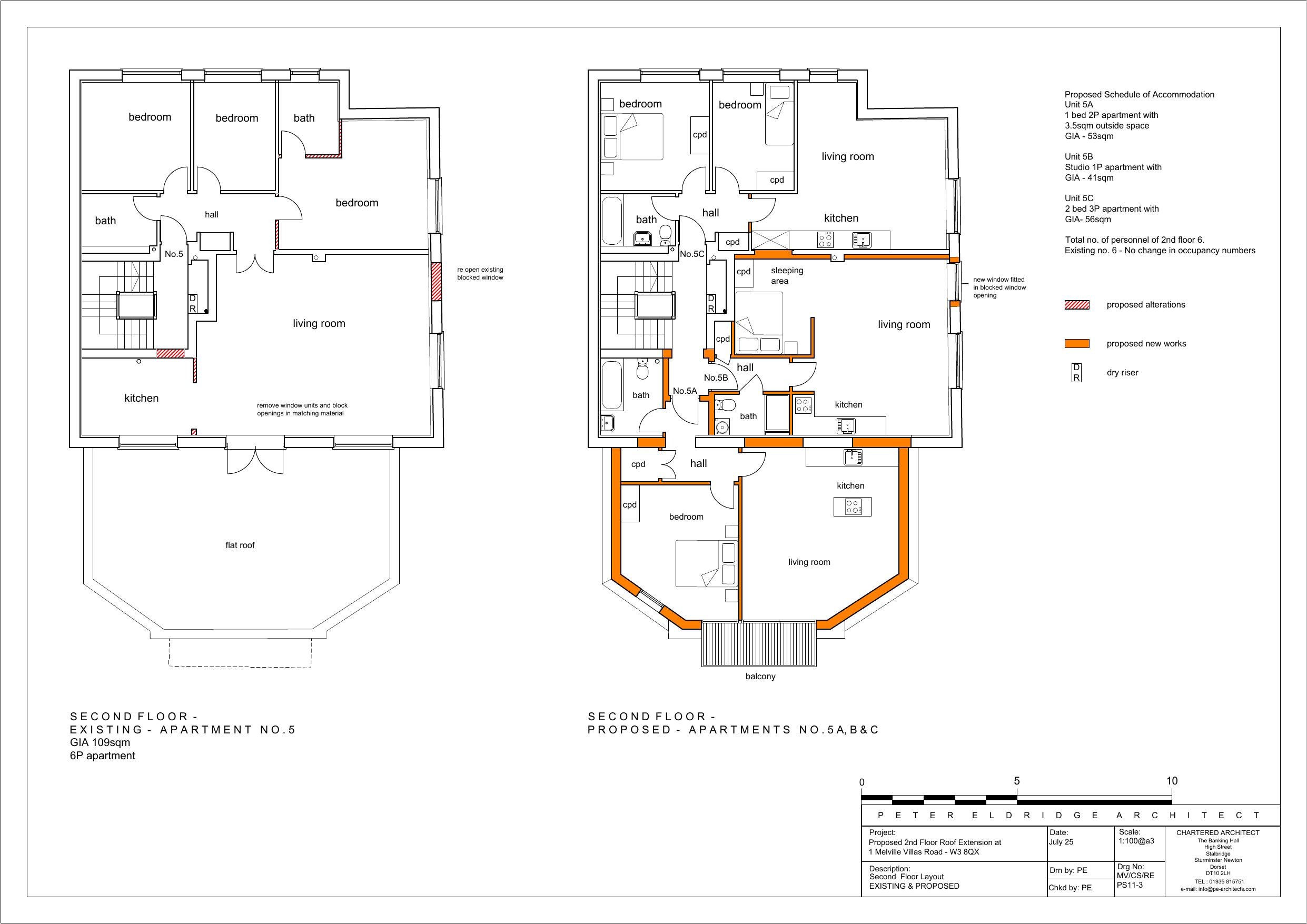
Subdivision of one flat into three dwellings with second-floor side extension and balconies.

Full Proposal

Second floor side extension over existing first floor flat roof, subdivision of a residential dwelling (Flat 5) into three residential dwellings, with balconies and associated alterations (REVISED PLANS)

Documents

APPLICATIONFORMREDACTED
Application Form - Without Personal Data
Not archived · Council Link
CYCLE STORAGE PLAN PS17-4
Drawing
Not archived · Council Link
DA MELVILLE
Design and Access Statement
Not archived · Council Link
DAYLIGHT REPORT
Daylight Assessment
Not archived · Council Link
DRAFT DECISION NOTICE
Decision
Not archived · Council Link
LAMP POST
Site Notice
Not archived · Council Link
MV-CS-RE-PS01-3
Draw - Location Plan
Not archived · Council Link
MV-CS-RE-PS03-3
Draw - Exist Site / Block Plan
Not archived · Council Link
MV-CS-RE-PS04-3
Draw - Exist Floor Plan
Not archived · Council Link
MV-CS-RE-PS05-3
Draw - Exist Floor Plan
Not archived · Council Link
MV-CS-RE-PS06-3
Draw - Exist Elevations
Not archived · Council Link
MV-CS-RE-PS07-3
Draw - Exist Elevations
Not archived · Council Link
MV-CS-RE-PS08-3
Draw - Exist Elevations
Not archived · Council Link
MV-CS-RE-PS09-3
Draw - Exist Section
Not archived · Council Link
MV-CS-RE-PS10-3
Draw - Prop Layout Plan
Not archived · Council Link
MV-CS-RE-PS12-3
Draw - Prop Elevations
Not archived · Council Link
MV-CS-RE-PS13-3
Draw - Prop Elevations
Not archived · Council Link
MV-CS-RE-PS14-3
Draw - Prop Elevations
Not archived · Council Link
MV-CS-RE-PS15-3
Draw - Prop Section
Not archived · Council Link
MV-CS-RE-PS16-3
Draw - Prop Layout Plan
Not archived · Council Link
NEIGHBOUR SITE NOTICE
Site Notice
Not archived · Council Link
NEIGHBOUR SITE NOTICE
Site Notice
Not archived · Council Link
OFFICERS REPORT
Officer Report
Not archived · Council Link
Drawing
Archived · Council Link
PS MELVILLE
Design and Access Statement
Not archived · Council Link
REVISED EAST ELEVATION PS13-4
Drawing
Not archived · Council Link
REVISED FIRE ACCESS PLAN PS16-4
Drawing
Not archived · Council Link
REVISED FLOOR PLAN PS10-4
Drawing
Not archived · Council Link
REVISED FLOOR PLAN PS11-4
Drawing
Not archived · Council Link
REVISED N-S ELEVATIONS PS12-4
Drawing
Not archived · Council Link
REVISED SECOND FLOOR PLAN PS11-4
Drawing
Not archived · Council Link
REVISED SECTION PS15-4
Drawing
Not archived · Council Link
REVISED W ELEVATIONS PS14-4
Drawing
Not archived · Council Link

Take Action

Make your voice heard. Authorities need to hear from people who support new homes.

✉️ Write Email in Support View on Council Portal