← Back to London Borough of Ealing

Status

Pending Consideration New housing
Received
11 Aug 2025
New dwellings
7

Summary

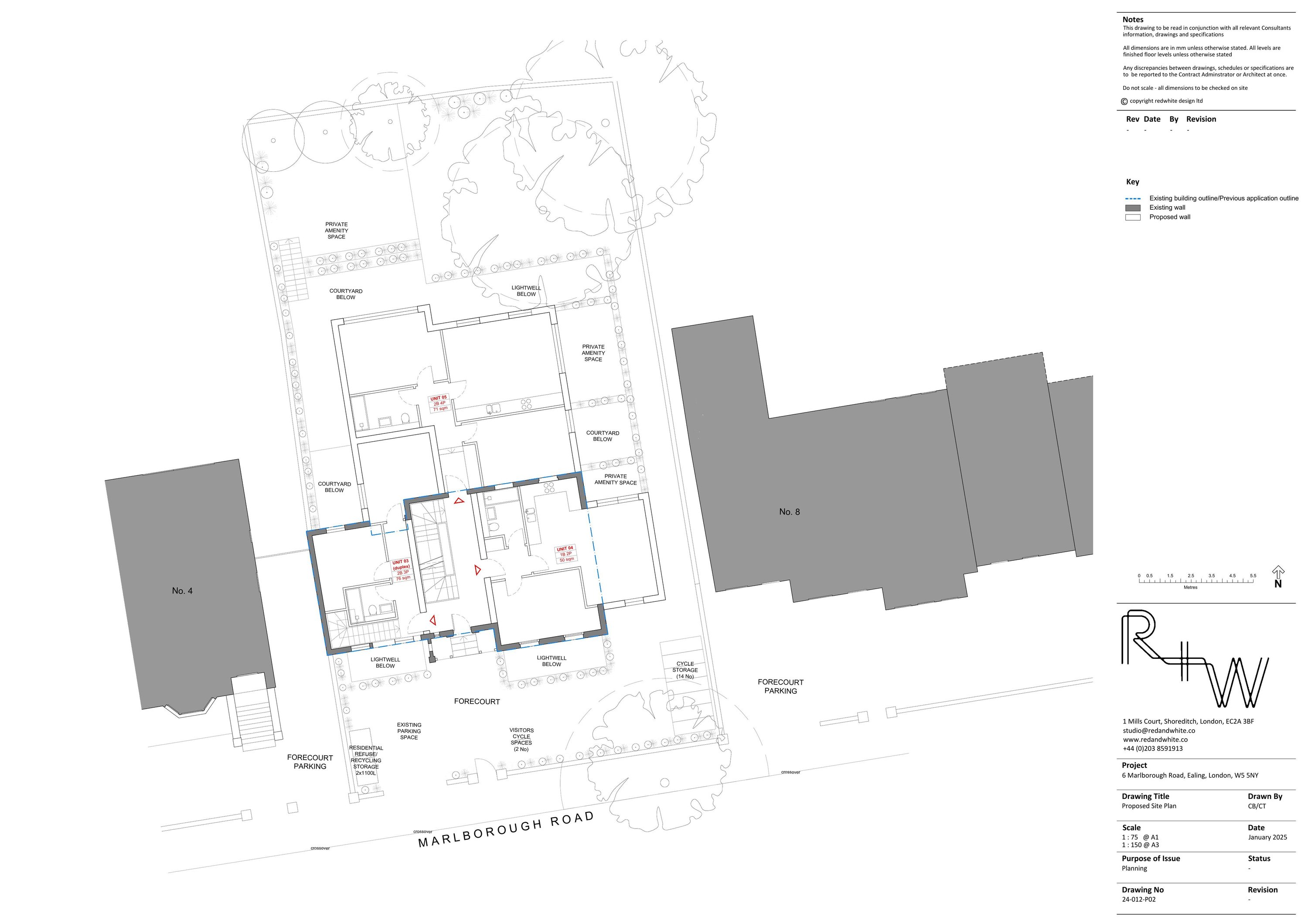
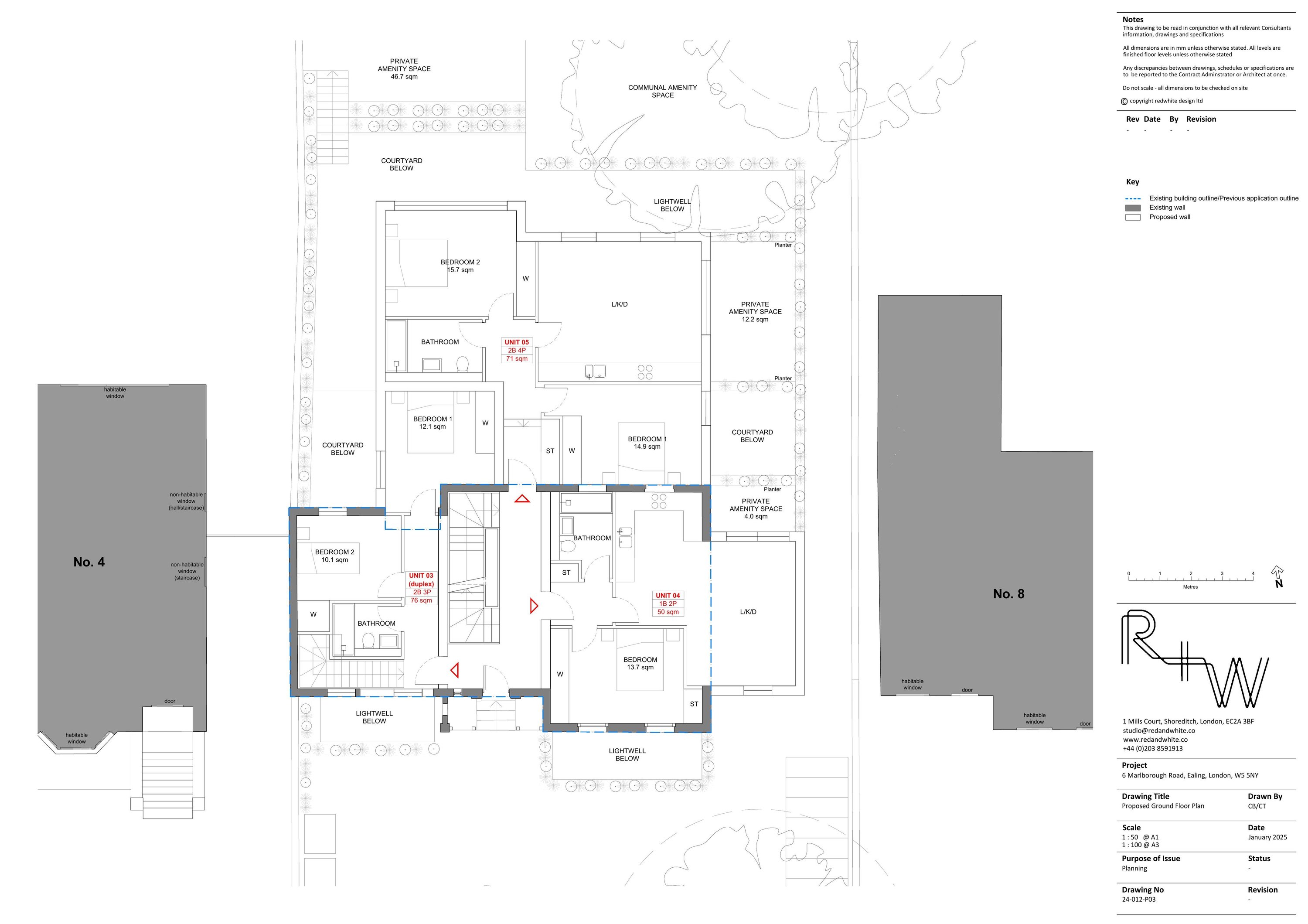
Provide two-storey building accommodating seven self-contained flats with parking, bins, cycle and amenity space.

Full Proposal

Conversion of a building (following demolition of the existing building) to provide a two- storey building to accommodate 7 self-contained residential flats (Use Class C3); with associated communal and private amenity spaces along with bins/cycle storage and car parking provision.

Documents

22-002 - PROPOSED ACCOMMODATION SCHEDULE (4)
Drawing
Not archived · Council Link
Draw - Exist Site/Block Plan
Archived · Council Link
Draw - Exist Site/Block Plan
Archived · Council Link
Draw - Exist Site/Block Plan
Archived · Council Link
Draw - Exist Site/Block Plan
Archived · Council Link
Draw - Exist Site/Block Plan
Archived · Council Link
22-002 - PROPOSED SKETCH VIEWS (4)
Drawing
Not archived · Council Link
APPLICATIONFORMREDACTED
Application Form - Without Personal Data
Not archived · Council Link
ARBORICULTURAL_PLANNING_REPORT
Tree Survey
Not archived · Council Link
EXISTING PLANS AND ELEVATIONS
Drawing
Not archived · Council Link
EXISTING_DRAWINGS(PAGE01)
Draw - Location Plan
Not archived · Council Link
EXISTING_DRAWINGS(PAGE02)
Drawing
Not archived · Council Link
EXISTING_DRAWINGS(PAGE03)
Drawing
Not archived · Council Link
EXISTING_DRAWINGS(PAGE04)
Drawing
Not archived · Council Link
EXISTING_DRAWINGS(PAGE05)
Drawing
Not archived · Council Link
EXISTING_DRAWINGS(PAGE06)
Drawing
Not archived · Council Link
EXISTING_DRAWINGS(PAGE07)
Drawing
Not archived · Council Link
EXISTING_DRAWINGS(PAGE08)
Drawing
Not archived · Council Link
EXISTING_DRAWINGS(PAGE09)
Drawing
Not archived · Council Link
EXISTING_DRAWINGS(PAGE10)
Drawing
Not archived · Council Link
EXISTING_DRAWINGS(PAGE11)
Drawing
Not archived · Council Link
EXISTING_DRAWINGS(PAGE12)
Drawing
Not archived · Council Link
EXT PLANS AND ELEVATIONS
Drawing
Not archived · Council Link
LAMP POST
Site Notice
Not archived · Council Link
NEIGHBOUR SITE NOTICE
Site Notice
Not archived · Council Link
PLANNING DESIGN AND HERITAGE STATEMENT
Design and Access Statement
Not archived · Council Link
PROP PLANS AND ELEVATIONS
Drawing
Not archived · Council Link
TREE_CONSTRAINTS_PLAN
Drawing
Not archived · Council Link

Take Action

Make your voice heard. Authorities need to hear from people who support new homes.

✉️ Write Email in Support View on Council Portal