← Back to London Borough of Ealing

Status

Pending Consideration Industrial
Received
24 Sep 2025
New dwellings
0

Full Proposal

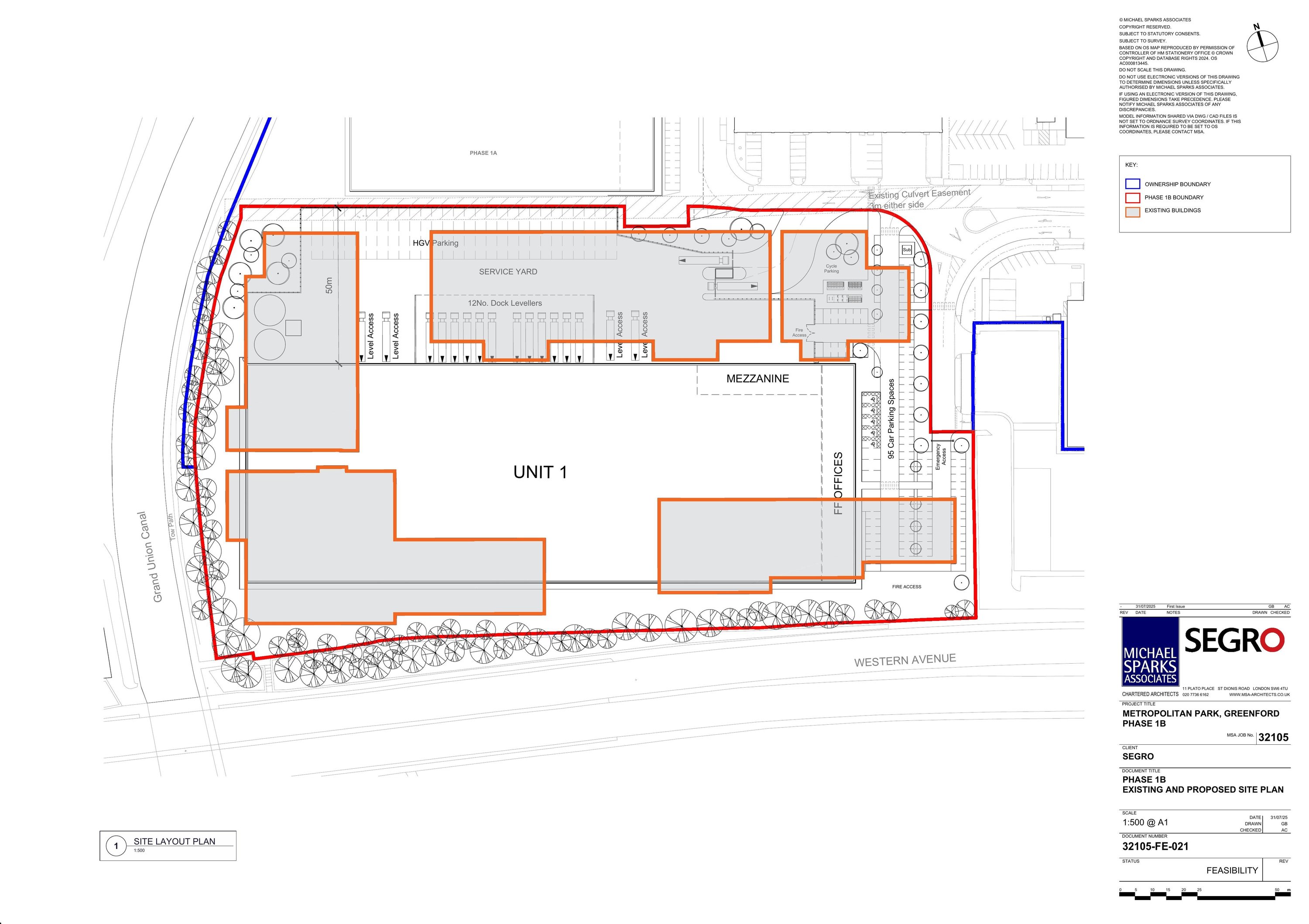
Outline planning application (with all matters reserved) for the demolition of the existing buildings and structures, and the comprehensive redevelopment of the site to deliver new flexible Eg(iii) / B2 / B8 floorspace, with ancillary mezzanine and office floorspace, and associated landscaping, yard, parking, access, and supporting infrastructure works

Documents

110925 GREENFORD COVER LETTER_COMBINED
Transport Assessment
Not archived · Council Link
110925_PLANNING STATEMENT _FINAL CLEAN
Planning Statement
Not archived · Council Link
14627 - SEGRO PARK GREENFORD CENTRAL PHASE 1B - NOISE IMPACT ASSESSMENT REPORT V
Noise Impact Assessment
Not archived · Council Link
1476-1-NE.103-BNG POST INTERVENTION V2 SM020925
Drawing
Not archived · Council Link
1ASPGC-CBC-1B-XX-T-MEP-000001-P01
Sustainability Appraisal
Not archived · Council Link
1ASPGC-CBC-XX-XX-T-ME-000016
Sustainability Appraisal
Not archived · Council Link
1BSPGC-MSA-SI-ZZ-DR-A-20000-PL03 - LOCATION PLAN
Draw - Location Plan
Not archived · Council Link
1BSPGC-MSA-SI-ZZ-DR-A-20200-PL03-PARAMETERS PLAN
Drawing
Not archived · Council Link
1BSPGC-MSA-SI-ZZ-DR-A-20201_PL02-ILLUSTRATIVE SITE LAYOUT PLAN-OPTION 1
Draw - Prop Layout Plan
Not archived · Council Link
1BSPGC-MSA-SI-ZZ-DR-A-20202-PL02-ILLUSTRATIVE SITE LAYOUT PLAN OPTION 2
Supporting Documentation
Not archived · Council Link
1BSPGC-MSA-SI-ZZ-DR-A-20203-PL01-ILLUSTRATIVE SITE LAYOUT PLAN OPTION 3
Draw - Prop Layout Plan
Not archived · Council Link
20250915_241156_PHASE 1B FIELD WAY GREENFORD CENTRAL_AQA_V4.0_ISSUE
Air Quality Assessment
Not archived · Council Link
2230449 - SEGRO GREENFORD PHASE 1B PRE DEMOLITION AUDIT V2
Supporting Documentation
Not archived · Council Link
2230449-EWP-1B-XX-RP-C-00001 - FLOOD RISK ASSESSMENT (1)_PART1
Flood Risk Assessment
Not archived · Council Link
2230449-EWP-1B-XX-RP-C-00001 - FLOOD RISK ASSESSMENT (1)_PART2
Flood Risk Assessment
Not archived · Council Link
2230449-EWP-1B-XX-RP-C-00001 - FLOOD RISK ASSESSMENT (1)_PART3
Flood Risk Assessment
Not archived · Council Link
2230449-EWP-1B-XX-RP-C-00002 - SUSTAINABLE DRAINAGE STRATEGY (1)_PART1
Tree Survey
Not archived · Council Link
2230449-EWP-1B-XX-RP-C-00002 - SUSTAINABLE DRAINAGE STRATEGY (1)_PART2
Flood Risk Assessment
Not archived · Council Link
2230449-SEGRO GREENFORD PHASE 1B SUSTAINABLE PROCUREMENT PLAN
Sustainability Appraisal
Not archived · Council Link
241156 - PHASE 1B FIELD WAY GREENFORD CENTRAL - TRANSPORT ASSESSMENT PART 1OF2_F
Transport Assessment
Not archived · Council Link
241156 - PHASE 1B FIELD WAY GREENFORD CENTRAL - TRANSPORT ASSESSMENT PART2OF2_FI
Transport Assessment
Not archived · Council Link
241156 - PHASE 1B FIELD WAY GREENFORD CENTRAL _TRAVEL PLAN FINAL ISSUE V3 110825
Travel Plan
Not archived · Council Link
32105-MSA-XX-XX-RP-A-210002-PL02-DESIGN AND ACCESS STATEMENT_PART1
Design and Access Statement
Not archived · Council Link
32105-MSA-XX-XX-RP-A-210002-PL02-DESIGN AND ACCESS STATEMENT_PART2
Design and Access Statement
Not archived · Council Link
32105-MSA-XX-XX-RP-A-210002-PL02-DESIGN AND ACCESS STATEMENT_PART3
Transport Assessment
Not archived · Council Link
333102305-RG-LD-P-101C ILLUSTRATIVE LANDSCAPE STRATEGY PLAN
Landscaping Details
Not archived · Council Link
333102305-RG-LD-P-102B LANDSCAPE ILLUSTRATIVE PLAN
Landscaping Details
Not archived · Council Link
333102305.GREENFORDPARKPHASE1B.HERITAGESTATEMENT.V2.0 ISSUE_PART1
Heritage Statement
Not archived · Council Link
333102305.GREENFORDPARKPHASE1B.HERITAGESTATEMENT.V2.0 ISSUE_PART2
Heritage Statement
Not archived · Council Link
333102305.GREENFORDPARKPHASE1B.HERITAGESTATEMENT.V2.0 ISSUE_PART3
Supporting Documentation
Not archived · Council Link
6728-CBC-XX-XX-DR-E-196003-P01
Lighting Assessment
Not archived · Council Link
AFF_21256_03_SEGRO GREENFORD CENTRAL_FAN_02
Supporting Documentation
Not archived · Council Link
APPLICATIONFORMREDACTED
Application Form - Without Personal Data
Not archived · Council Link
EXTERNAL LIGHTING PLAN
Lighting Assessment
Not archived · Council Link
GREENFORD BUSINESS PARK-NE-BNGA-V3-20250909 _BOUND
Biodiversity Report
Not archived · Council Link
GREENFORD BUSINESS PARK-NE-PEA-V3-20250804_BOUND
Biodiversity Report
Not archived · Council Link
GREENFORD-NE-SBM-V1-20250414 SUBMISSION VERSION
Biodiversity Report
Not archived · Council Link
MAJOR SITE NOTICE
Site Notice
Not archived · Council Link
MDX-09 AUGUST 2025 METROPOLITAN PARK OVERSHADOWING REPORT FINAL
Daylight Assessment
Not archived · Council Link
PROPOSAL
Supporting Documentation
Not archived · Council Link
SEGRO-GREENFORD CENTRAL-NA-4543-AIA-V3-20250813
Tree Survey
Not archived · Council Link
TVIA PART 1 OF 5
Supporting Documentation
Not archived · Council Link
TVIA PART 2 OF 5
Supporting Documentation
Not archived · Council Link
TVIA PART 3 OF 5
Supporting Documentation
Not archived · Council Link
TVIA PART 4 OF 5
Supporting Documentation
Not archived · Council Link
TVIA PART 5 OF 5
Supporting Documentation
Not archived · Council Link
UK24.7010 PHASE I GEO-ENVIRONMENTAL DESK STUDY - GREENFORD METROPOLITAN PARK GRE
Supporting Documentation
Not archived · Council Link

Take Action

Make your voice heard. Authorities need to hear from people who support new homes.

✉️ Write Email in Support View on Council Portal