← Back to London Borough of Ealing

Status

Pending Consideration New housing
Received
29 Sep 2025
New dwellings
1

Full Proposal

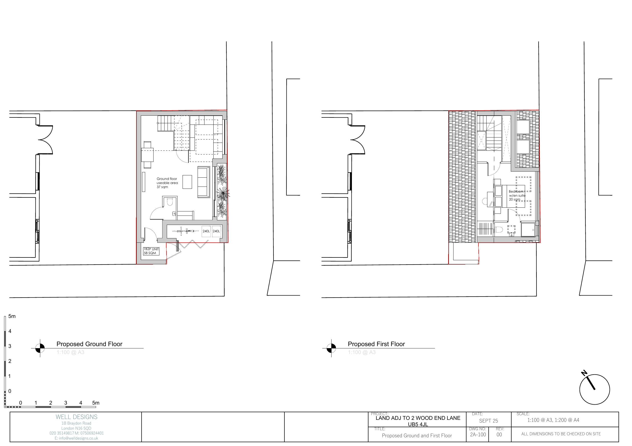
Construction of a dwellinghouse with roofspace accommodation (following demolition of existing garage)

Documents

253688FUL SITE NOTICE MAP SN X 3.PDF
Site Notice
Not archived · Council Link
APPLICATIONFORMREDACTED
Application Form - Without Personal Data
Not archived · Council Link
D&A STATEMENT.PDF
Design and Access Statement
Not archived · Council Link
EXISTING PLANS AND ELEVATIONS
Drawing
Not archived · Council Link
Drawing
Archived · Council Link
NEIGHBOUR SITE NOTICE
Site Notice
Not archived · Council Link
PROPOSED ELEVATIONS
Drawing
Not archived · Council Link
PROPOSED ELEVATIONS 2
Drawing
Not archived · Council Link
Drawing
Archived · Council Link
Drawing
Archived · Council Link
Draw - Location Plan
Archived · Council Link

Take Action

Make your voice heard. Authorities need to hear from people who support new homes.

✉️ Write Email in Support View on Council Portal