← Back to London Borough of Ealing

Status

Awaiting decision House extension
Received
02 Oct 2025
New dwellings
0

Full Proposal

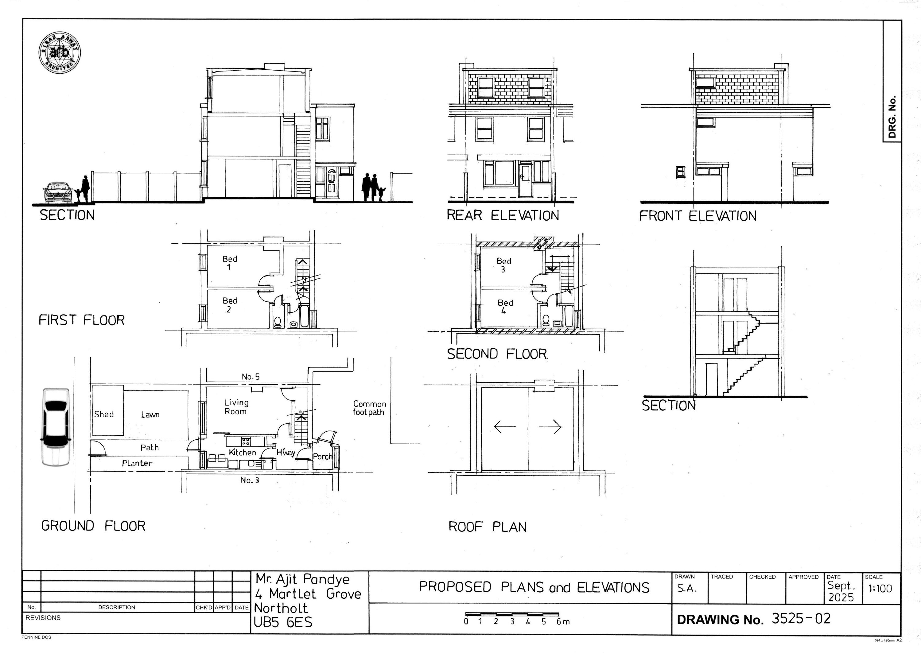
Construction of one additional floor to existing dwellinghouse

Documents

253749FUL SITE NOTICE MAP SN X 3.PDF
Site Notice
Not archived · Council Link
3525-01 (EXISTING PLANS AND ELEVATIONS)
Draw - Exist Layout Plan
Not archived · Council Link
Draw - Prop Layout Plan
Archived · Council Link
Supporting Documentation
Archived · Council Link
3525-03 (LOCATION PLAN)
Draw - Location Plan
Not archived · Council Link
3525-04 (BLOCK PLAN)
Draw - Exist Site/Block Plan
Not archived · Council Link
3525-05 ( PHOTOS )
Photo
Not archived · Council Link
3525-06 (D AND A STATEMENT)
Design and Access Statement
Not archived · Council Link
3525-06-01 (D AND A STATEMENT).
Supporting Documentation
Not archived · Council Link
3525-07 (BIODIVERSITY REPORT)
Biodiversity Report
Not archived · Council Link
3525-08 (REASONABLE EXCEPTION STATEMENT)
Design and Access Statement
Not archived · Council Link
APPLICATIONFORMREDACTED
Application Form - Without Personal Data
Not archived · Council Link
NEIGHBOUR SITE NOTICE
Site Notice
Not archived · Council Link

Take Action

Make your voice heard. Authorities need to hear from people who support new homes.

✉️ Write Email in Support View on Council Portal