← Back to London Borough of Ealing

Status

Pending Consideration Change of use
Received
16 Oct 2025
New dwellings
1

Full Proposal

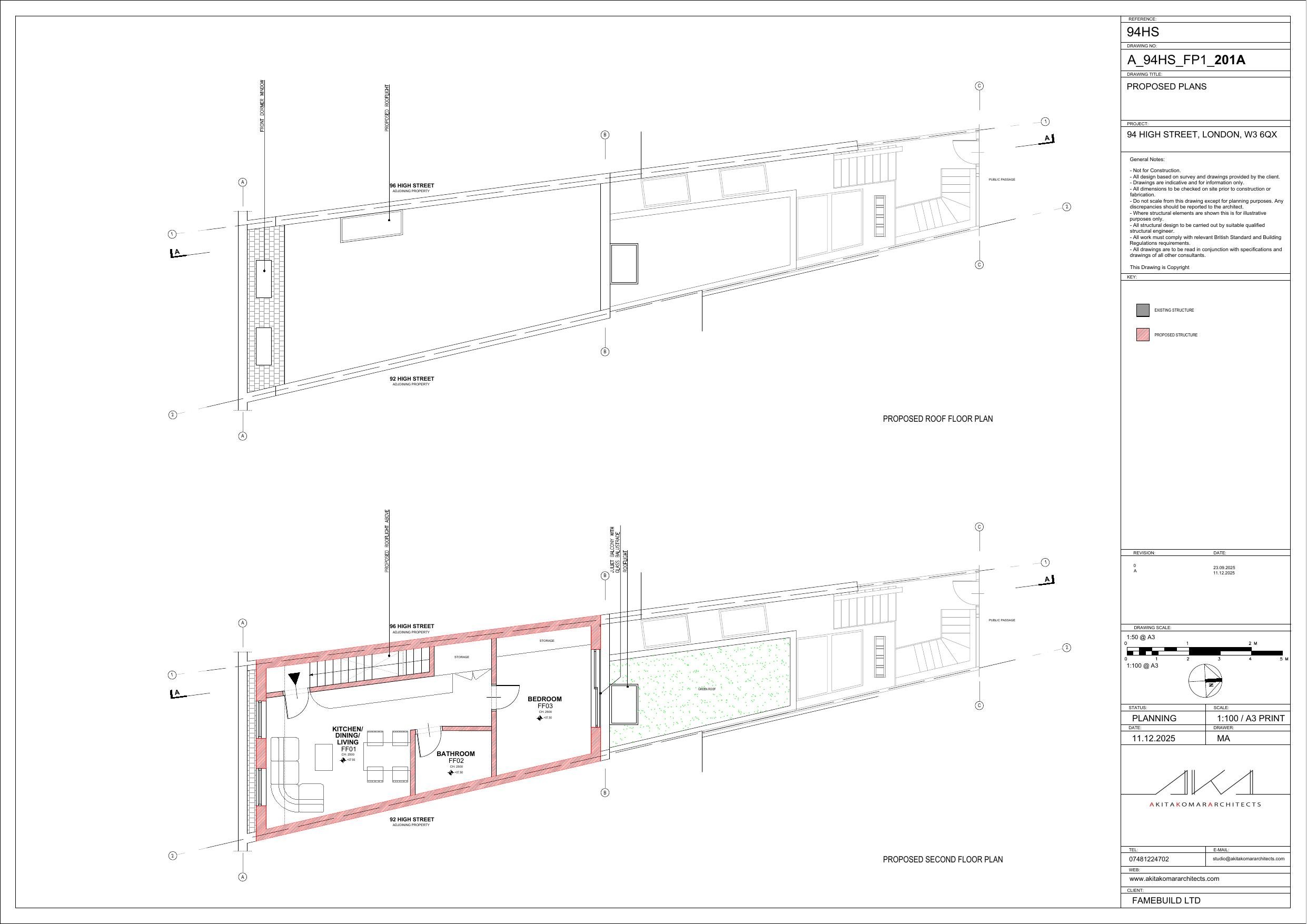
Conversion of existing self-contained flat into two self-contained flat with provision of cycle storage and bin storage; mansard roof extension; installation of two dormer windows to front roof extension; rear roof extension incorporating Juliet balcony with glass balustrade; part single, part two storey rear extension; alterations to front first floor fenestration; internal and external alterations

Documents

253926FUL SM.PDF
Site Notice
Not archived · Council Link
APPLICATIONFORMREDACTED
Application Form - Without Personal Data
Not archived · Council Link
EXISTING ELEVATION
Drawing
Not archived · Council Link
EXISTING FLOOR PLANS
Drawing
Not archived · Council Link
EXISTING SECTION
Draw - Exist Section
Not archived · Council Link
LOCATION PLAN
Draw - Location Plan
Not archived · Council Link
NEIGHBOUR SITE NOTICE
Site Notice
Not archived · Council Link
PLANNING STATEMENT
Design and Access Statement
Not archived · Council Link
PROPOSED ELEVATIONS
Drawing
Not archived · Council Link
Drawing
Archived · Council Link
Drawing
Archived · Council Link
PROPOSED SECTION
Drawing
Not archived · Council Link
PROPOSED SECTION AA
Drawing
Not archived · Council Link
Drawing
Archived · Council Link

Take Action

Make your voice heard. Authorities need to hear from people who support new homes.

✉️ Write Email in Support View on Council Portal