← Back to London Borough of Ealing

Status

Awaiting decision Change of use
Received
19 Nov 2025
New dwellings
0

Full Proposal

Retention of rear roof extensions and use as a four bedroom (four person) House in Multiple Occupation (Use Class C4) - Part Retrospective/Part modified Application

Documents

"AS BUILT" FLOOR PLANS DRAWING NO.GA02 REV E
Draw - Exist
Not archived · Council Link
APPLICATIONFORMREDACTED
Application Form - Without Personal Data
Not archived · Council Link
EXISTING AND PROPOSED ELEVATIONS DRAWING NO.GA03 REV A
Draw - Mixed/Combined Plans
Not archived · Council Link
GA03 PROPOSED ELEVATIONS
Drawing
Not archived · Council Link
GA04 PRE-EXISTING PLANS
Drawing
Not archived · Council Link
GA05 PRE-EXISTING ELEVATIONS
Drawing
Not archived · Council Link
GA06 BIN AND CYCLE STORES
Drawing
Not archived · Council Link
HMO MANAGEMENT PLAN
Supporting Documentation
Not archived · Council Link
L01 REV A LOCATION PLAN
Draw - Location Plan
Not archived · Council Link
LAMP POST
Site Notice
Not archived · Council Link
LOCATION PLAN DRAWING NO.L01 REV A
Draw - Location Plan
Not archived · Council Link
NEIGHBOUR SITE NOTICE
Site Notice
Not archived · Council Link
PROPOSED BLOCK PLAN DRAWING NO.GA01 REV D
Draw - Prop
Not archived · Council Link
PROPOSED BLOCK PLAN DRAWING NO.GA01 REV E
Draw - Prop
Not archived · Council Link
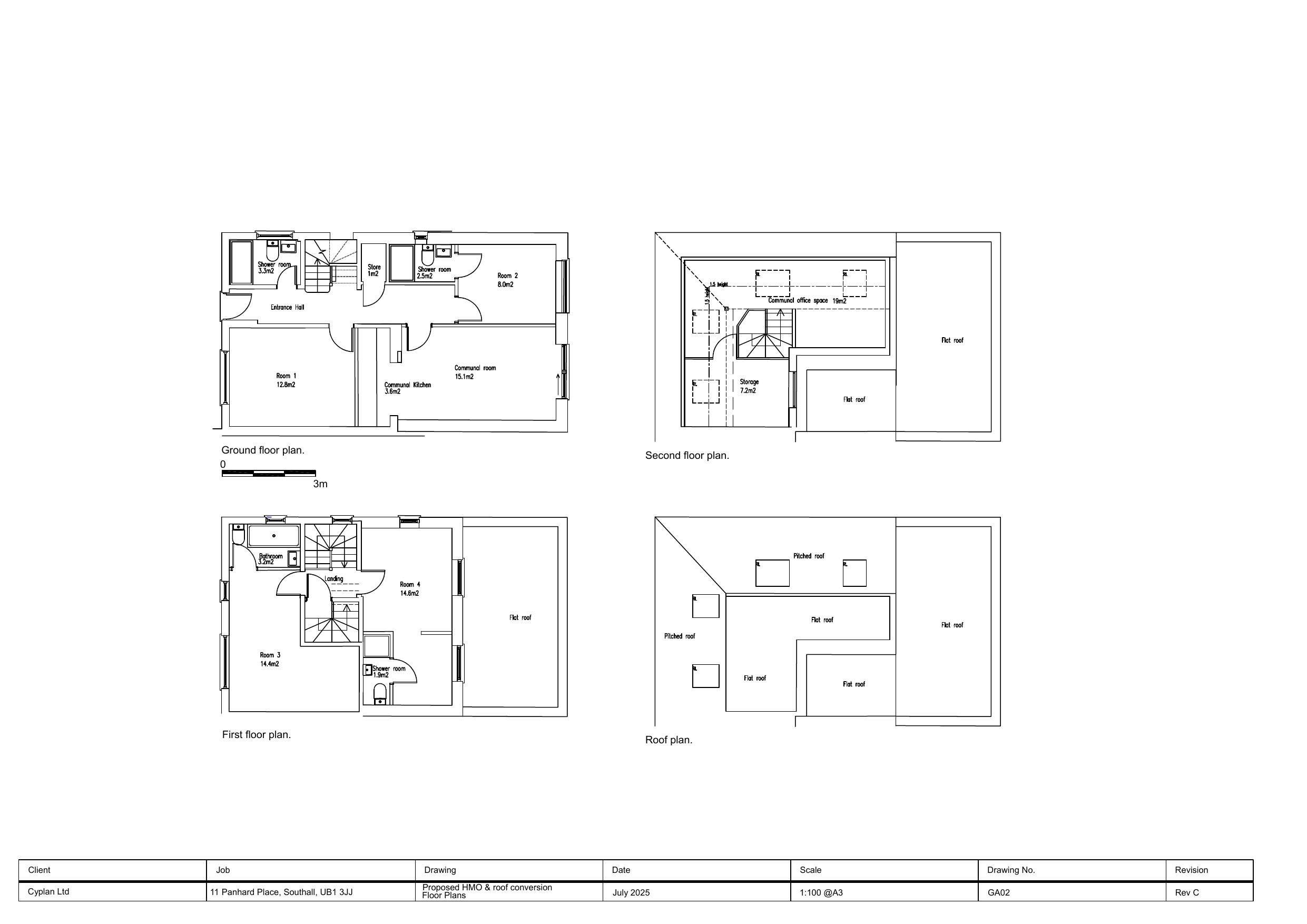
PROPOSED FLOOR PLAN DRAWING NO.GA02 REV F
Draw - Prop Floor Plan
Not archived · Council Link
Draw - Prop Floor Plan
Archived · Council Link

Take Action

Make your voice heard. Authorities need to hear from people who support new homes.

✉️ Write Email in Support View on Council Portal