← Back to London Borough of Ealing

Status

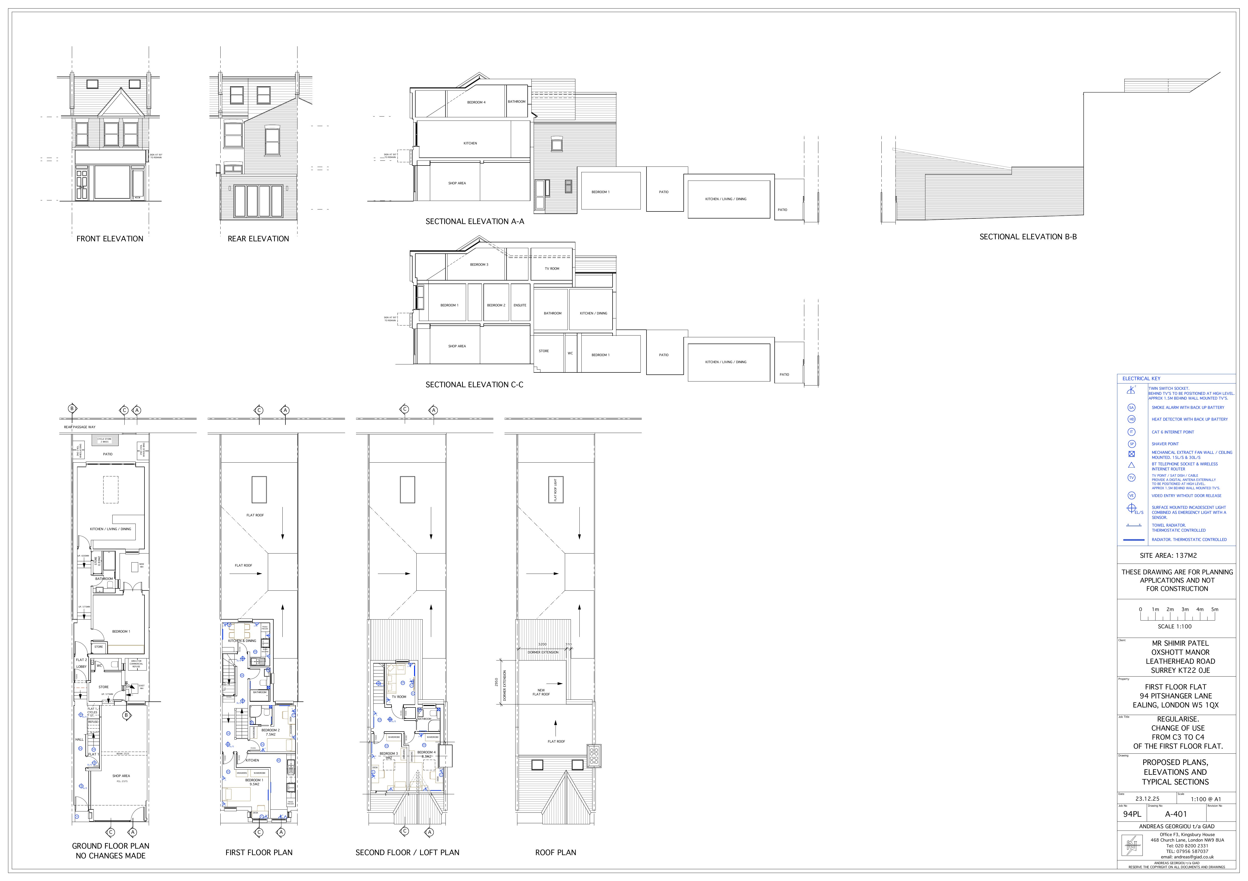
Pending Consideration Change of use
Received
Last month
New dwellings
0

Full Proposal

Change of use of flat (C3) into HMO (C4); rear outrigger roof extension

Documents

254848FUL SM.PDF
Site Notice
Not archived · Council Link
APPLICATIONFORMREDACTED
Application Form - Without Personal Data
Not archived · Council Link
EXISTING PLANS
Drawing
Not archived · Council Link
Drawing
Archived · Council Link
LOCATION PLAN
Draw - Location Plan
Not archived · Council Link
NEIGHBOUR SITE NOTICE
Site Notice
Not archived · Council Link
NEIGHBOUR SITE NOTICE
Site Notice
Not archived · Council Link
PLANNING DESIGN AND ACCESS STATEMENT
Design and Access Statement
Not archived · Council Link
PROPOSED BLOCK PLAN
Drawing
Not archived · Council Link
Drawing
Archived · Council Link
STATEMENT
Drawing
Not archived · Council Link

Take Action

Make your voice heard. Authorities need to hear from people who support new homes.

✉️ Write Email in Support View on Council Portal