← Back to East Riding of Yorkshire Council

Status

Pending Consideration New housing
Received
03 Mar 2025
New dwellings
9

Summary

Erection of nine dwellings with associated access, landscaping and drainage.

Full Proposal

Erection of 9 dwellings with associated access, landscaping and drainage following demolition of the existing dwelling and garage

Documents

. HIGHWAY DEVELOPMENT MANAGEMENT
Consultee Comment
Not archived · Council Link
. HIGHWAY DEVELOPMENT MANAGEMENT
Consultee Comment
Not archived · Council Link
. HOUSING STRATEGY
Consultee Comment
Not archived · Council Link
. LAND DRAINAGE
Consultee Comment
Not archived · Council Link
. NATURE CONSERVATION OFFICER
Consultee Comment
Not archived · Council Link
. OPSCG OUTDOOR PLAY SPACE CONSULTATION GROUP
Consultee Comment
Not archived · Council Link
. PUBLIC PROTECTION - ENVIRONMENTAL CONTROL DISTRICT
Consultee Comment
Not archived · Council Link
. TREES TEAM
Consultee Comment
Not archived · Council Link
ALISTAIR DICKIE
Public Comment
Not archived · Council Link
AMENDED BIODIVERSITY NET GAIN ASSESSMENT REPORT
Supporting Documents
Not archived · Council Link
AMENDED PARKING DETAILS
Plans
Not archived · Council Link
AMENDED STATUTORY BIODIVERSITY METRIC CALCULATION TOOL
Supporting Documents
Not archived · Council Link
APPENDIX 3: TREE IMPACT PLAN
Supporting Documents
Not archived · Council Link
APPLICATION FORM
Application Form
Not archived · Council Link
ARBORICULTURAL IMPACT ASSESSMENT
Supporting Documents
Not archived · Council Link
ARCHAEOLOGICAL DESK BASED ASSESSMENT
Supporting Documents
Not archived · Council Link
ARCHAEOLOGICAL TRIAL TRENCH EVALUATION
Supporting Documents
Not archived · Council Link
BILL BLACKLEDGE
Public Comment
Not archived · Council Link
BIODIVERSITY METRIC CALCULATION
Supporting Documents
Not archived · Council Link
BIODIVERSITY NET GAIN ASSESSMENT REPORT
Supporting Documents
Not archived · Council Link
DESIGN AND ACCESS STATEMENT
Supporting Documents
Not archived · Council Link
DRAINAGE STRATEGY AND FLOOD RISK ASSESSMENT
Supporting Documents
Not archived · Council Link
DWELLING - EXISTING ELEVATIONS
Plans
Not archived · Council Link
DWELLING - EXISTING FLOOR PLANS
Plans
Not archived · Council Link
ERIC D'ARCY
Public Comment
Not archived · Council Link
Plans
Archived · Council Link
GARAGE - EXISTING ELEVATIONS AND FLOOR PLAN
Plans
Not archived · Council Link
GEOENVIRONMENTAL APPRAISAL
Supporting Documents
Not archived · Council Link
GOOGLE CONTEXT PLAN - PROPOSED SITE LAYOUT PLAN
Plans
Not archived · Council Link
HABITAT MANAGEMENT AND MONITORING PLAN
Supporting Documents
Not archived · Council Link
HABITAT MANAGEMENT AND MONITORING PLAN
Supporting Documents
Not archived · Council Link
HUMBER HISTORIC ENVIRONMENT RECORD(FULL)
Public Comment
Not archived · Council Link
LOCATION PLAN
Plans
Not archived · Council Link
MR AND MRS BLACKLEDGE
Public Comment
Not archived · Council Link
MR AND MRS DICKIE
Public Comment
Not archived · Council Link
MR H . LEIGHTON
Public Comment
Not archived · Council Link
MS NORTH CAVE PARISH COUNCIL
Consultee Comment
Not archived · Council Link
NATURAL ENGLAND
Consultee Comment
Not archived · Council Link
NATURAL ENGLAND TECHNICAL INFORMATION NOTE TIN013
Supporting Documents
Not archived · Council Link
NATURAL ENGLAND TECHNICAL INFORMATION NOTE TIN014
Supporting Documents
Not archived · Council Link
NATURAL ENGLAND TECHNICAL INFORMATION NOTE TIN016
Supporting Documents
Not archived · Council Link
NATURAL ENGLAND TECHNICAL INFORMATION NOTE TIN017
Supporting Documents
Not archived · Council Link
NATURE CONSERVATION
Consultee Comment
Not archived · Council Link
OPEN SPACE WORKING GROUP
Consultee Comment
Not archived · Council Link
PLANNING STATEMENT
Supporting Documents
Not archived · Council Link
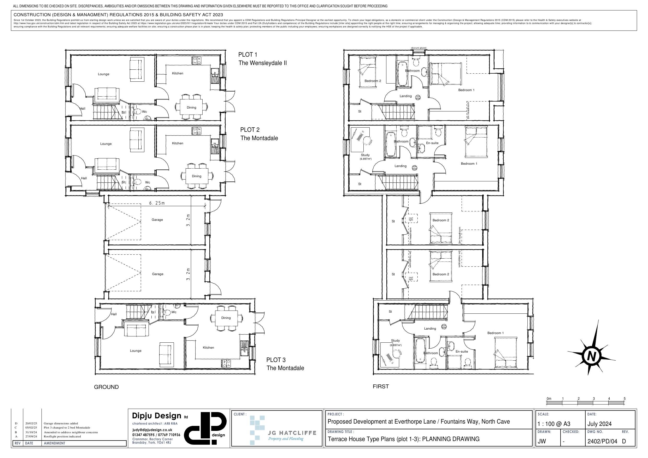
PLOT 1-3 - PROPOSED ELEVATIONS
Plans
Not archived · Council Link
PLOT 4 - PROPOSED ELEVATIONS AND FLOOR PLANS
Plans
Not archived · Council Link
PLOT 5 - PROPOSED ELEVATIONS AND FLOOR PLANS
Plans
Not archived · Council Link
PLOT 5 AND 6 - PROPOSED GARAGE ELEVATIONS AND FLOOR PLAN
Plans
Not archived · Council Link
PLOT 6 - PROPOSED ELEVATIONS AND FLOOR PLANS
Plans
Not archived · Council Link
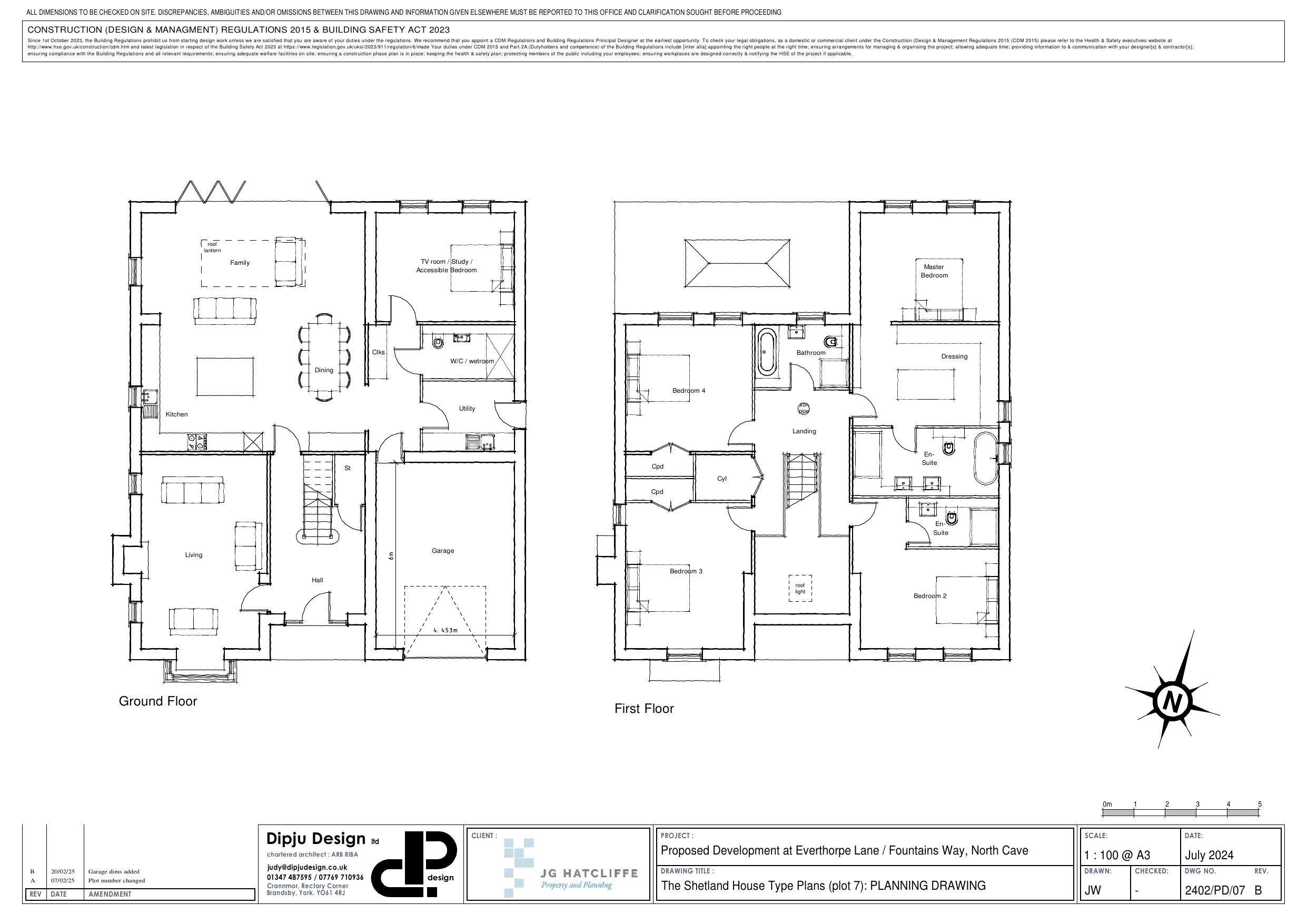
PLOT 7 - PROPOSED ELEVATIONS
Plans
Not archived · Council Link
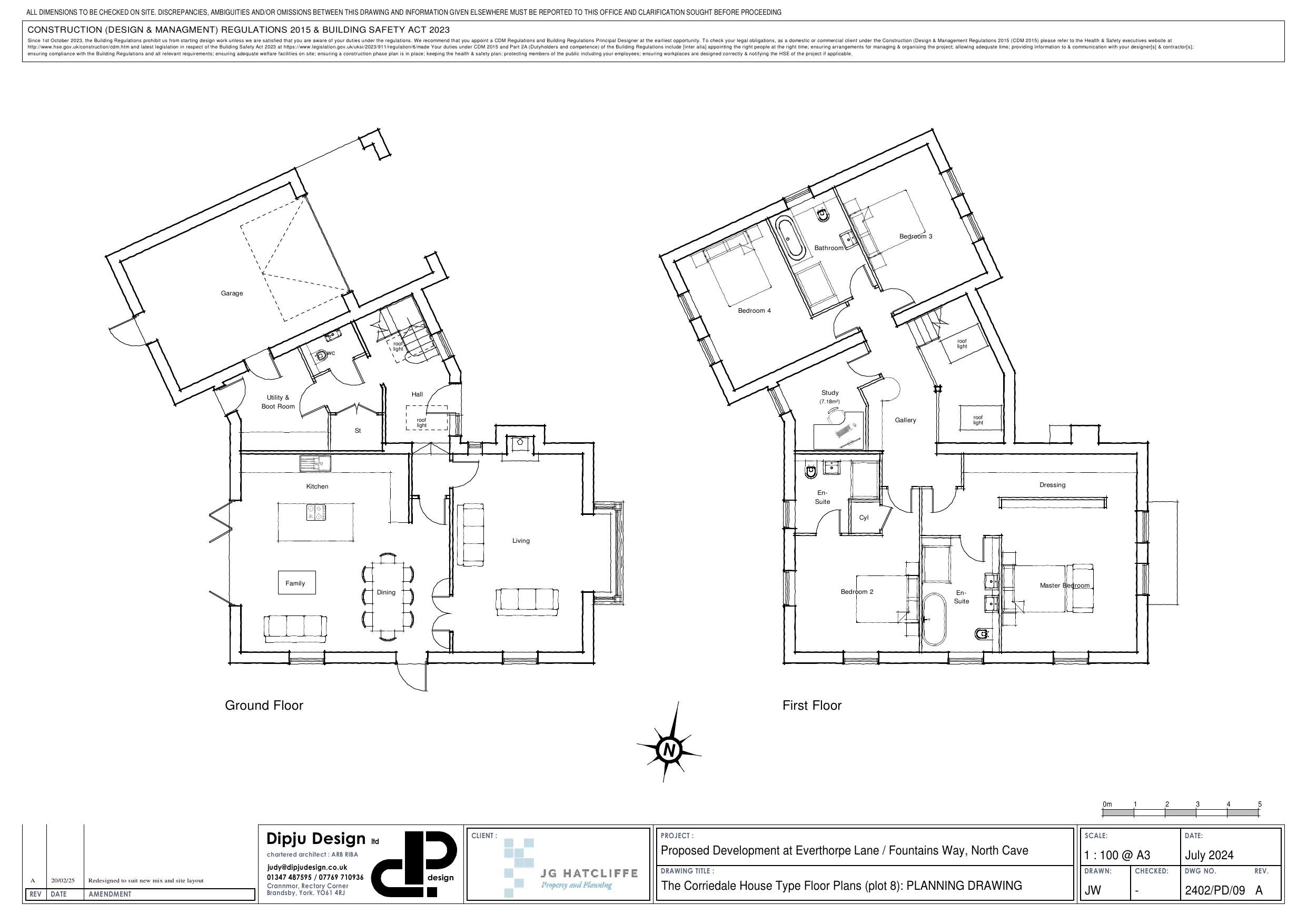
PLOT 8 - PROPOSED ELEVATIONS
Plans
Not archived · Council Link
PLOT 9 - PROPOSED ELEVATIONS
Plans
Not archived · Council Link
PRELIMINARY ECOLOGICAL APPRIASAL
Supporting Documents
Not archived · Council Link
PROPOSED BOUNDARY DETAILS
Plans
Not archived · Council Link
PROPOSED INDICATIVE STREETSCENES
Plans
Not archived · Council Link
PROPOSED INDICATIVE STREETSCENES WITH LANDSCAPING
Plans
Not archived · Council Link
PROPOSED LANDSCAPING DETAILS
Plans
Not archived · Council Link
PROPOSED SECTION DRAWING
Plans
Not archived · Council Link
RAYMOND AND SANDRA GOULD
Public Comment
Not archived · Council Link
RELATIONSHIP OF PLOT 1 TO 4
Plans
Not archived · Council Link
SHADOW HABITAT REGUALTION ASSESSMENT SCREENING AND APPROPRIATE ASSESSMENT
Supporting Documents
Not archived · Council Link
STRUCTURAL SURVEY
Supporting Documents
Not archived · Council Link
YORKSHIRE WATER
Consultee Comment
Not archived · Council Link

Take Action

Make your voice heard. Authorities need to hear from people who support new homes.

✉️ Write Email in Support View on Council Portal