← Back to East Riding of Yorkshire Council

Status

Application Approved Change of use
Received
17 Mar 2025
New dwellings
2

Summary

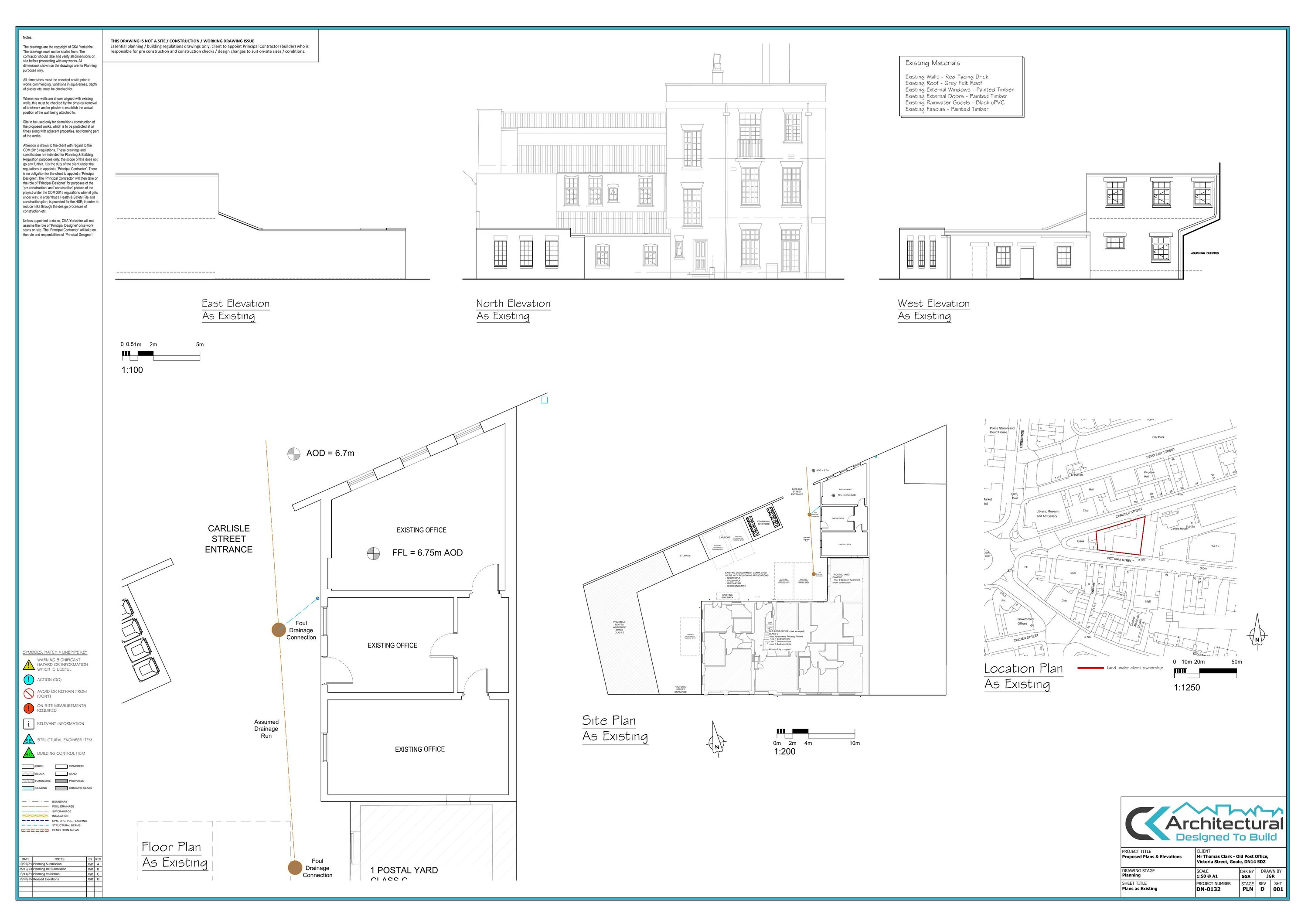
Change of offices to residential with first-floor extension to form two one-bedroom dwellings.

Full Proposal

Change of use from office space (Class E) to residential (Class C3) including erection of first floor extension to form 2 one-bedroom dwellings (Re-submission of 24/01396/PLF and 24/02140/PLF)

Documents

. BUILDING CONSERVATION
Consultee Comment
Not archived · Council Link
. GOOLE CIVIC SOCIETY(FULL)
Public Comment
Not archived · Council Link
. GOOLE TOWN COUNCIL
Consultee Comment
Not archived · Council Link
. NATURE CONSERVATION OFFICER
Consultee Comment
Not archived · Council Link
. YORKSHIRE WATER SERVICES LTD DEVELOPER SERVICES
Consultee Comment
Not archived · Council Link
APPLICATION FORM
Application Form
Not archived · Council Link
CLLR JEFFREYS
Councillor Correspondence
Not archived · Council Link
COMMITTEE REPORT
Committee Report
Not archived · Council Link
DESIGN, ACCESS AND PLANNING STATEMENT INCLUDING SEQUENTIAL TEST AND BIODIVERSITY
Supporting Documents
Not archived · Council Link
eDecision
eDecision
Not archived · Council Link
ENVIRONMENT AGENCY
Consultee Comment
Not archived · Council Link
EXISTING AND PROPOSED STREET SCENE ELEVATIONS, PROPOSED ELEVATIONS AND FLOOR PLA
Plans
Not archived · Council Link
FLOOD RISK ASSESSMENT
Supporting Documents
Not archived · Council Link
FLOOD RISK ASSESSMENT - ADDENDUM
Supporting Documents
Not archived · Council Link
GOOLE TIMES 24.04.25
Press Advert
Not archived · Council Link
HERITAGE STATEMENT
Supporting Documents
Not archived · Council Link
HRA APPROPRIATE ASSESSMENT
Supporting Documents
Not archived · Council Link

Take Action

Make your voice heard. Authorities need to hear from people who support new homes.

✉️ Write Email in Support View on Council Portal