← Back to East Riding of Yorkshire Council

Status

Application Approved Change of use
Received
21 Mar 2025
New dwellings
4

Summary

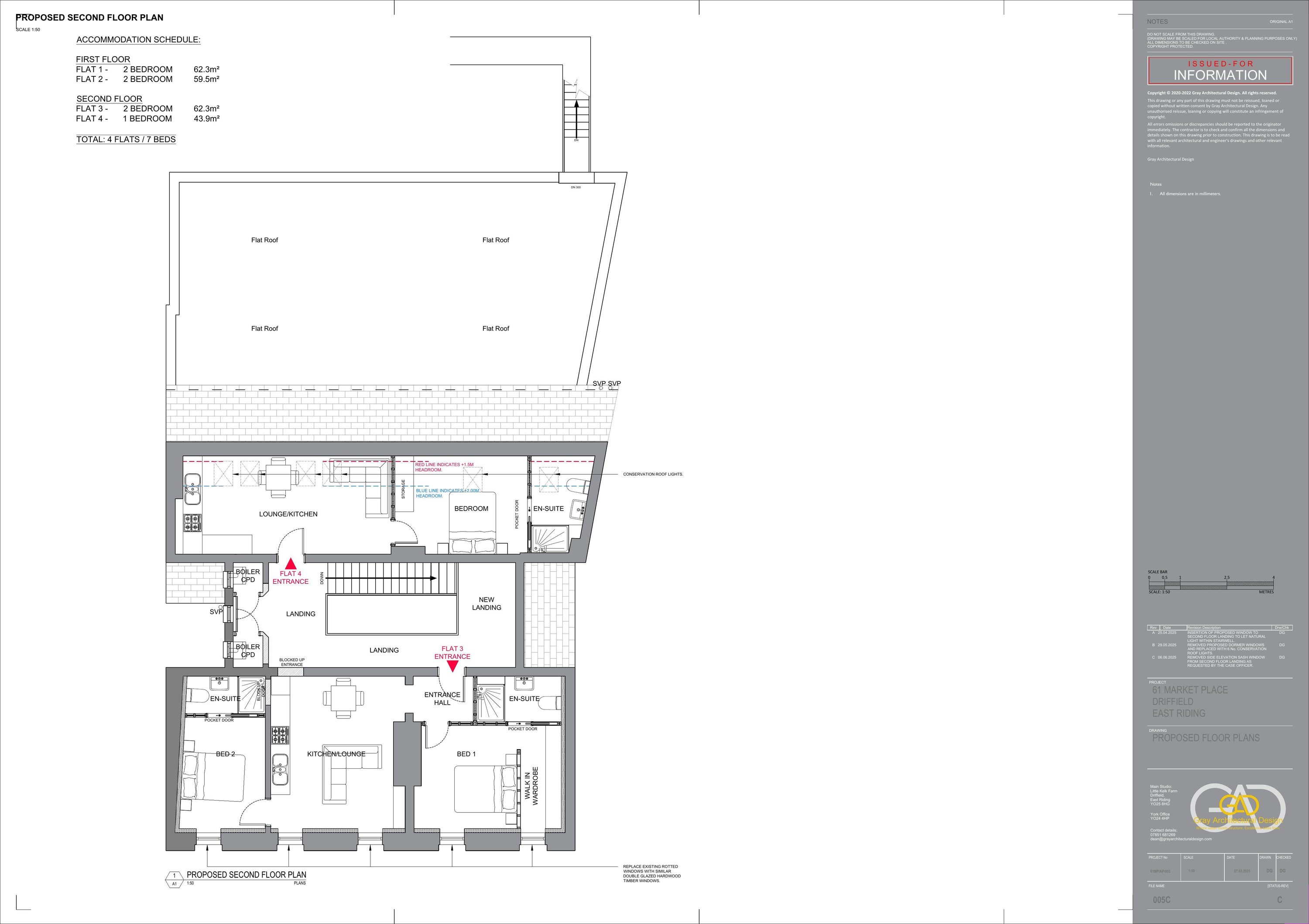
Convert former bank to four apartments with two dormers and rear roof terrace.

Full Proposal

Conversion of former bank to 4 apartments at first and second floors and construction of 2 dormer windows and roof top terrace to rear

Documents

. BUILDING CONSERVATION
Consultee Comment
Not archived · Council Link
. HIGHWAY DEVELOPMENT MANAGEMENT
Consultee Comment
Not archived · Council Link
. YORKSHIRE WATER SERVICES LTD DEVELOPER SERVICES
Consultee Comment
Not archived · Council Link
AMENDED DESIGN, ACCES AND HERITAGE STATEMENT
Supporting Documents
Not archived · Council Link
AMENDED PROPOSED ELEVATIONS
Plans
Not archived · Council Link
APPLICATION FORM
Application Form
Not archived · Council Link
BUILDING CONSERVATION
Consultee Comment
Not archived · Council Link
DRIFFIELD AND WOLDS WEEKLY
Press Advert
Not archived · Council Link
eDecision
eDecision
Not archived · Council Link
EXISTING ELEVATIONS
Plans
Not archived · Council Link
EXISTING FIRST AND SECOND FLOOR PLANS
Plans
Not archived · Council Link
EXISTING GROUND AND BASEMENT FLOOR PLANS
Plans
Not archived · Council Link
FLOOD RISK ASSESSMENT
Supporting Documents
Not archived · Council Link
OFFICER REPORT
Officer Report
Not archived · Council Link
SUPERSEDED DESIGN, ACCESS AND HERITAGE STATEMENT
Supporting Documents
Not archived · Council Link
SUPERSEDED PROPOSED ELEVATIONS AND SECTION
Plans
Not archived · Council Link
SUPERSEDED PROPOSED SECOND FLOOR PLAN
Plans
Not archived · Council Link

Take Action

Make your voice heard. Authorities need to hear from people who support new homes.

✉️ Write Email in Support View on Council Portal