← Back to East Riding of Yorkshire Council

Status

Pending Consideration New housing
Received
26 Jun 2025
New dwellings
120

Summary

Erection of 120 dwellings and 30 garages with associated infrastructure.

Full Proposal

Erection of 120 dwellings and 30 garages with associated infrastructure following outline planning permission 22/01242/STOUT (Appearance, Landscaping, Layout and Scale to be considered)

Documents

. ENVIRONMENTAL CONTROL
Consultee Comment
Not archived · Council Link
. HIGHWAY DEVELOPMENT MANAGEMENT
Consultee Comment
Not archived · Council Link
. LAND DRAINAGE
Consultee Comment
Not archived · Council Link
. LLFA - LEAD LOCAL FLOOD AUTHORITY
Consultee Comment
Not archived · Council Link
. MARKET WEIGHTON TOWN COUNCIL
Consultee Comment
Not archived · Council Link
. NATURE CONSERVATION OFFICER
Consultee Comment
Not archived · Council Link
. OPSCG OUTDOOR PLAY SPACE CONSULTATION GROUP
Consultee Comment
Not archived · Council Link
. TREES AND LANDSCAPE
Consultee Comment
Not archived · Council Link
. TREES AND LANDSCAPE
Consultee Comment
Not archived · Council Link
. TREES AND LANDSCAPE
Consultee Comment
Not archived · Council Link
AMENDED - ARBORICULTURAL IMPACT ASSESSMENT AND ARBORICULTURAL METHOD STATEMENT
Supporting Documents
Not archived · Council Link
AMENDED - TREE PROTECTION PLAN
Plans
Not archived · Council Link
APPLICATION FORM
Application Form
Not archived · Council Link
CONDITION 12 - MATERIALS DATA SHEET
Supporting Documents
Not archived · Council Link
COVERING LETTER/SUPPORTING STATEMENT
Supporting Documents
Not archived · Council Link
DESIGN CODE COMPLIANCE CHECKLIST
Supporting Documents
Not archived · Council Link
HEAD OF EDUCATION
Consultee Comment
Not archived · Council Link
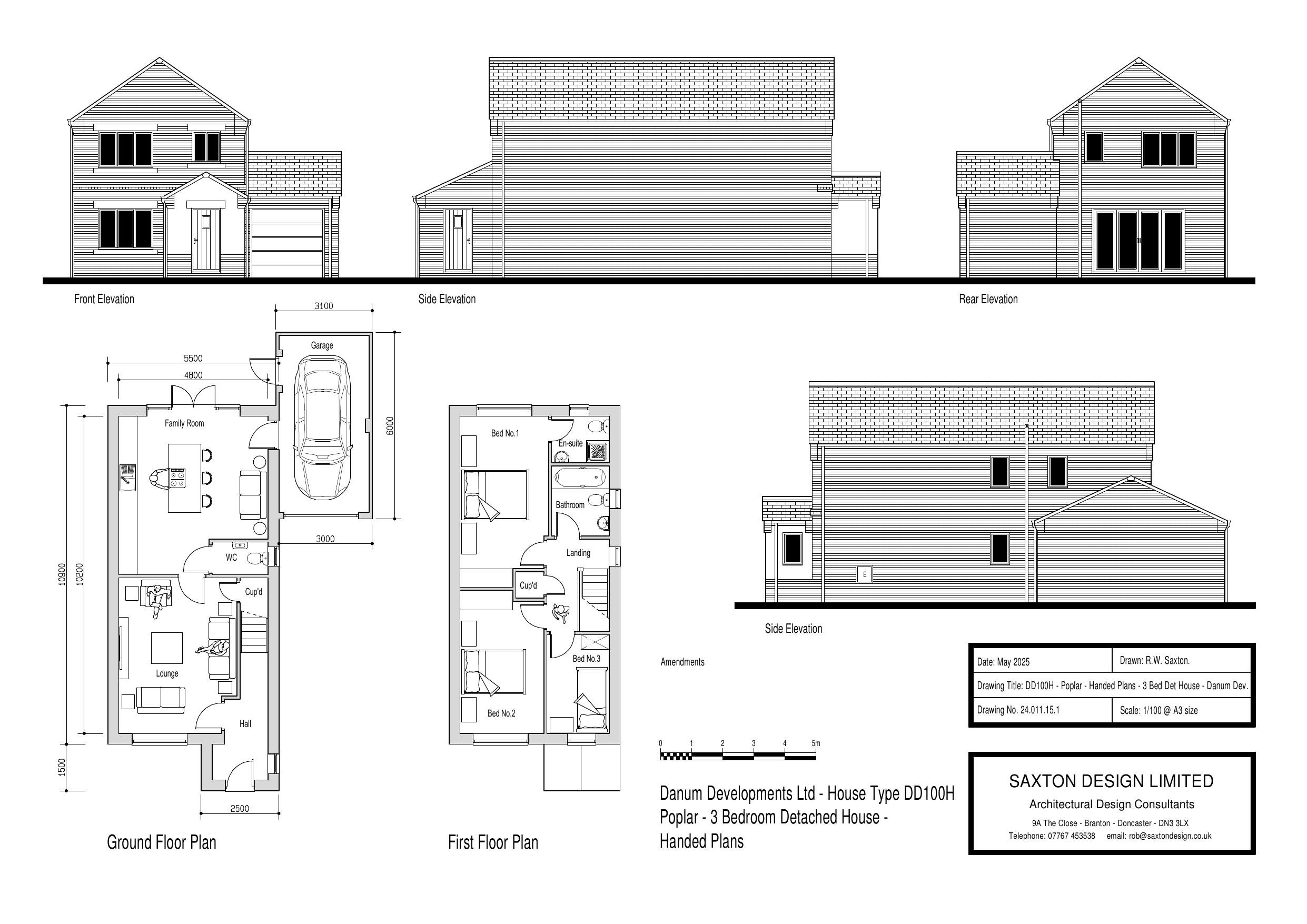
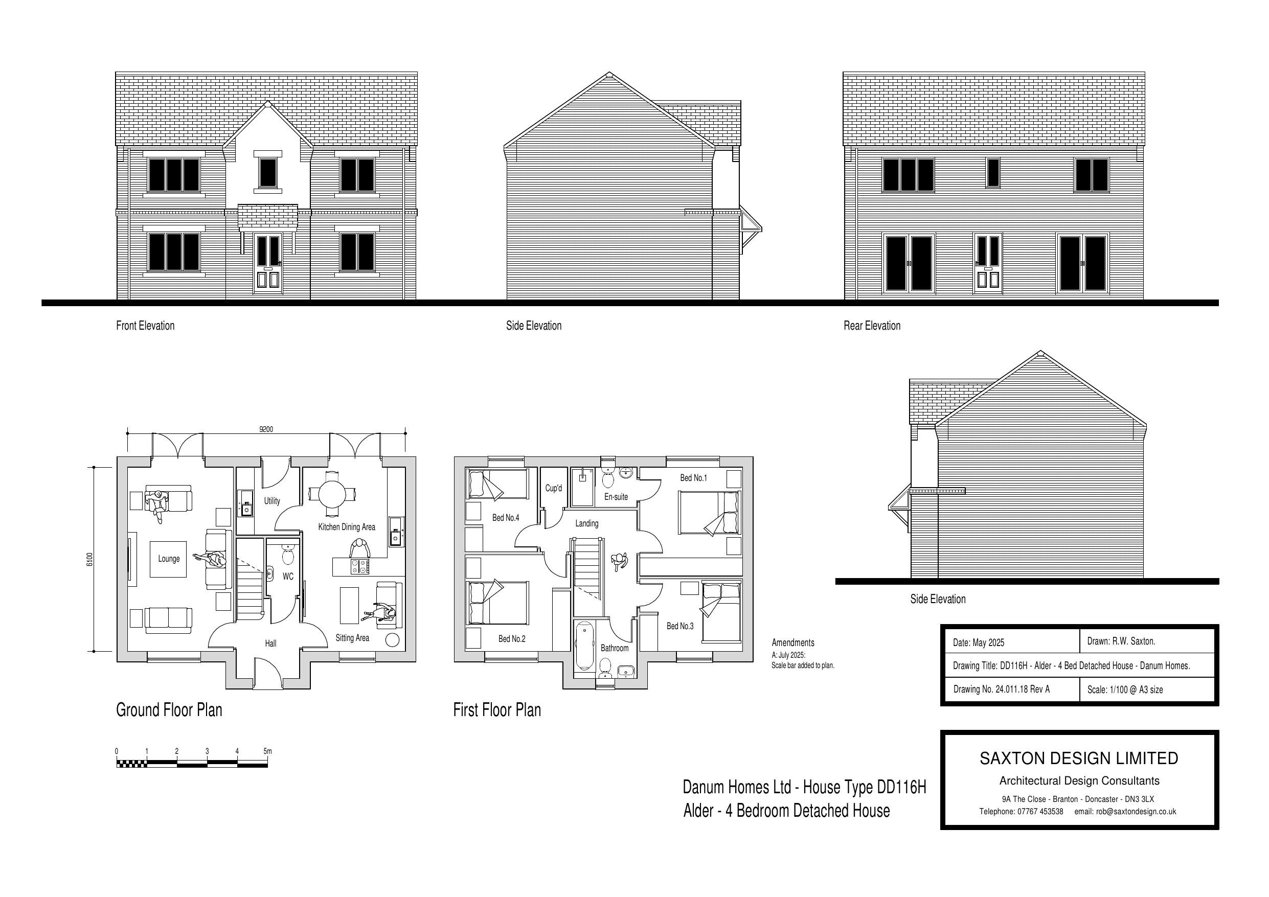
HOUSE TYPE DD61B RIPON - PROPOSED FLOOR PLAN AND ELEVATIONS
Plans
Not archived · Council Link
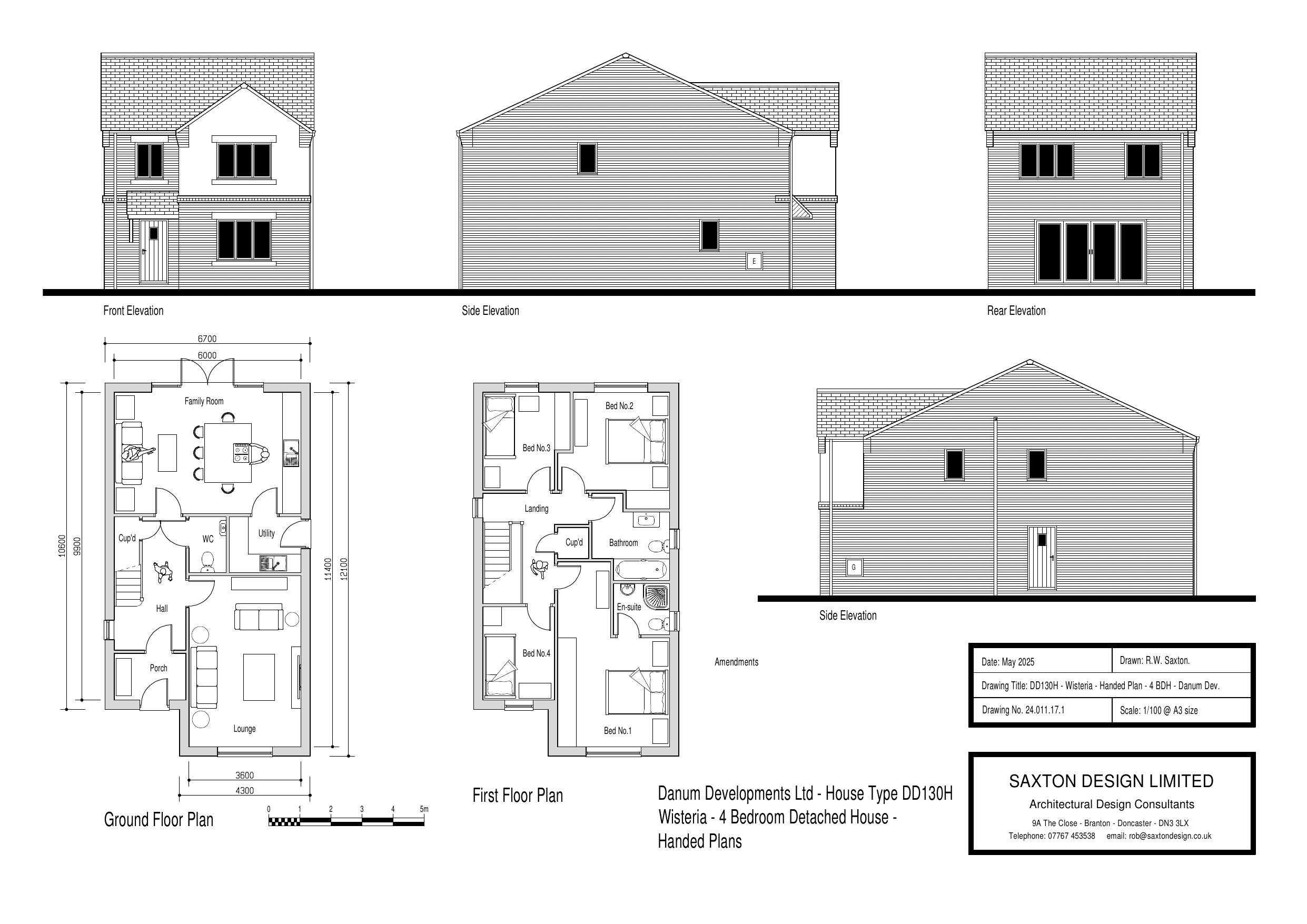
HOUSE TYPE DD67B LAUREL - PROPOSED FLOOR PLAN AND ELEVATIONS
Plans
Not archived · Council Link
HUMBERSIDE FIRE AND RESCUE
Consultee Comment
Not archived · Council Link
INWARD INVESTMENT
Consultee Comment
Not archived · Council Link
LAND USE AND BUILDING HEIGHT PARAMETERS PLAN
Plans
Not archived · Council Link
LANDSCAPE SCHEME PLAN
Plans
Not archived · Council Link
LANDSCAPE SCHEME PLAN
Plans
Not archived · Council Link
LOCATION PLAN
Plans
Not archived · Council Link
MAIN ROAD AND SEWER PLAN
Plans
Not archived · Council Link
MISS CAROLINE SUMNER
Consultee Comment
Not archived · Council Link
MR GARY ANSELL
Consultee Comment
Not archived · Council Link
MR SIMON PARKER
Consultee Comment
Not archived · Council Link
MRS TRACY ROKAHR
Consultee Comment
Not archived · Council Link
NATURAL ENGLAND
Consultee Comment
Not archived · Council Link
NOISE IMPACT ASSESSMENT
Supporting Documents
Not archived · Council Link
PLAN 4 - ARBORICULTURAL IMPACT ASSESSMENT AND METHOD ASSESSMENT
Plans
Not archived · Council Link
PROTECTIVE FENCE PHOTOGRAPH
Supporting Documents
Not archived · Council Link
REBUTTAL/FURTHER INFO RE VIABILITY
Supporting Documents
Not archived · Council Link
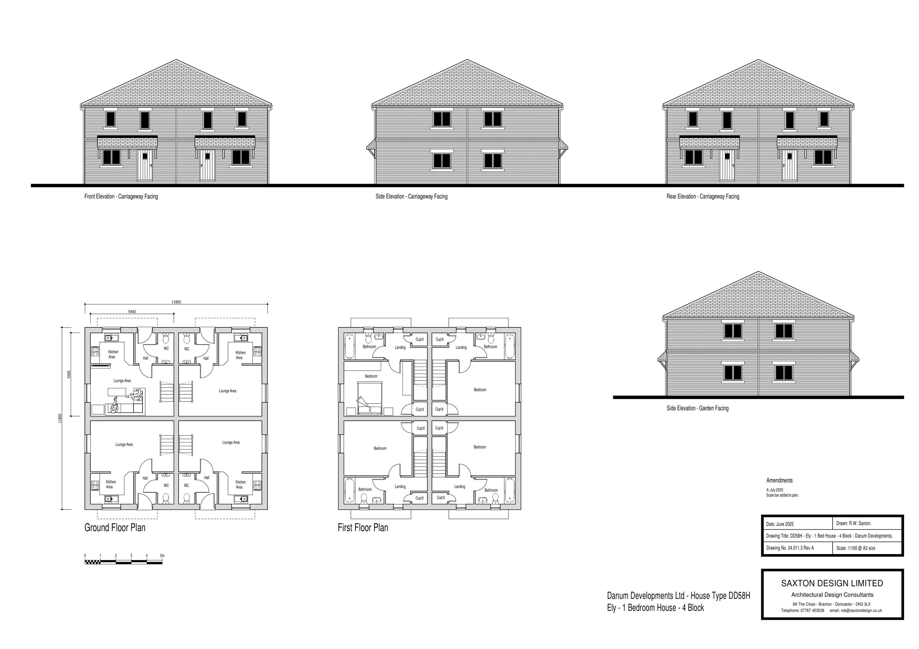
SINGLE AND DOUBLE GARAGE PLANNING DRAWING
Plans
Not archived · Council Link
SOFTWORKS SPECIFICATION
Supporting Documents
Not archived · Council Link
SUPERSEDED - ARBORICULTURAL IMPACT ASSESSMENT AND ARBORICULTURAL METHOD STATEMEN
Supporting Documents
Not archived · Council Link
SUPERSEDED - ARBORICULTURAL IMPACT ASSESSMENT AND METHOD ASSESSMENT
Supporting Documents
Not archived · Council Link
SUPERSEDED - MWEIGHTON TPP RESIDENTIAL
Plans
Not archived · Council Link
TRACKING ANALYSIS
Plans
Not archived · Council Link
TREE LOCATION AND RPA
Plans
Not archived · Council Link
TREE SCHEDULE
Supporting Documents
Not archived · Council Link
TREE SURVEY
Supporting Documents
Not archived · Council Link
VALUATIONS AND ESTATES
Consultee Comment
Not archived · Council Link
VIABILITY ASSESSMENT
Supporting Documents
Not archived · Council Link
YORKSHIRE WATER
Consultee Comment
Not archived · Council Link

Take Action

Make your voice heard. Authorities need to hear from people who support new homes.

✉️ Write Email in Support View on Council Portal