← Back to East Riding of Yorkshire Council

Status

Pending Consideration New housing
Received
27 Jun 2025
New dwellings
17

Summary

Erection of 17 dwellings with new access and associated landscaping.

Full Proposal

Erection of 17 dwellings including construction of new access and associated landscaping

Documents

. ENVIRONMENTAL CONTROL
Consultee Comment
Not archived · Council Link
. HIGHWAY DEVELOPMENT MANAGEMENT
Consultee Comment
Not archived · Council Link
. HOUSING STRATEGY
Consultee Comment
Not archived · Council Link
. LAND DRAINAGE
Consultee Comment
Not archived · Council Link
. LLFA - LEAD LOCAL FLOOD AUTHORITY
Consultee Comment
Not archived · Council Link
. NATURE CONSERVATION OFFICER
Consultee Comment
Not archived · Council Link
. OPSCG OUTDOOR PLAY SPACE CONSULTATION GROUP
Consultee Comment
Not archived · Council Link
ACCOMMODATION SCHEDULE
Supporting Documents
Not archived · Council Link
AFFORDABLE HOUSING STATEMENT
Supporting Documents
Not archived · Council Link
APPLICATION FORM
Application Form
Not archived · Council Link
BASELINE HABITAT PLAN
Supporting Documents
Not archived · Council Link
BIODIVERSITY METRIC CALCULATION TOOL
Supporting Documents
Not archived · Council Link
DESIGN AND ACCESS STATEMENT
Supporting Documents
Not archived · Council Link
DESIGN CODE COMPLIANCE CHECKLIST
Supporting Documents
Not archived · Council Link
DRAINAGE STRATEGY
Plans
Not archived · Council Link
EXISTING SITE LAYOUT PLAN
Plans
Not archived · Council Link
FLOOD RISK ASSESSMENT AND DRAINAGE STRATEGY
Supporting Documents
Not archived · Council Link
HIGHWAY STRATEGY
Plans
Not archived · Council Link
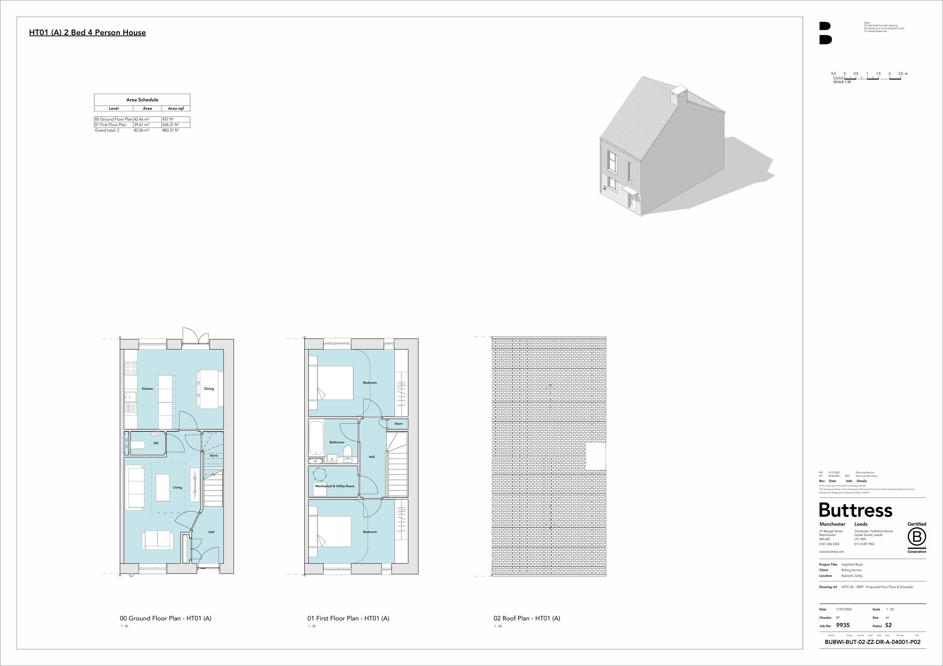
HOUSE TYPE HT01 (A) - PROPOSED ELEVATIONS AND SECTION
Plans
Not archived · Council Link
HOUSE TYPE HT01 (B) - PROPOSED ELEVATIONS AND SECTIONS
Plans
Not archived · Council Link
HOUSE TYPE HT02 - PROPOSED ELEVATIONS AND SECTION
Plans
Not archived · Council Link
HOUSE TYPE HT02 - PROPOSED ELEVATIONS AND SECTION
Plans
Not archived · Council Link
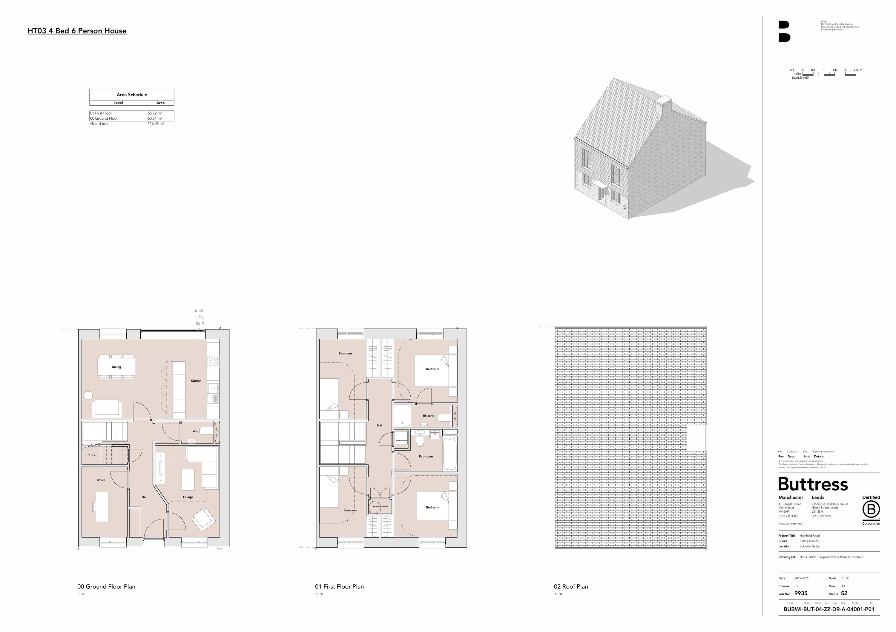
HOUSE TYPE HT03 - PROPOSED ELEVATIONS AND ROOF PLAN
Plans
Not archived · Council Link
HOUSE TYPE HT03 - PROPOSED ELEVATIONS AND SECTION
Plans
Not archived · Council Link
HOUSE TYPE HT04 - PROPOSED ELEVATIONS
Plans
Not archived · Council Link
HOUSE TYPE HT04 - PROPOSED SECTION
Plans
Not archived · Council Link
HOUSE TYPES AP01, AP02, HT01 (C,D) - PROPOSED ELEVATIONS
Plans
Not archived · Council Link
HOUSE TYPES AP01, AP02, HT01 (C,D) - PROPOSED SECTION
Plans
Not archived · Council Link
HUMBER ARCHAEOLOGY PARTNERSHIP
Consultee Comment
Not archived · Council Link
HUMBERSIDE FIRE AND RESCUE
Consultee Comment
Not archived · Council Link
LAND CONTAMINATION PHASE 1 DESK STUDY
Supporting Documents
Not archived · Council Link
LAND CONTAMINATION PHASE 2 INTRUSIVE GROUND INVESTIGATION REPORT
Supporting Documents
Not archived · Council Link
LOCATION PLAN
Plans
Not archived · Council Link
MR STEVE YOUNG
Consultee Comment
Not archived · Council Link
MRS AMY CLARK-BROWN(FULL)
Public Comment
Not archived · Council Link
MRS ELIZABETH HAYES(FULL)
Public Comment
Not archived · Council Link
MRS REBECCA AXUP(FULL)
Public Comment
Not archived · Council Link
MRS TRACY ROKAHR
Consultee Comment
Not archived · Council Link
NATURAL ENGLAND
Consultee Comment
Not archived · Council Link
PLANNING STATEMENT INCLUDING OPEN SPACE ASSESSMENT
Supporting Documents
Not archived · Council Link
PRELIMINARY ECOLOGICAL APPRAISAL
Supporting Documents
Not archived · Council Link
PROPOSED SITE ELEVATIONS
Plans
Not archived · Council Link
PROPOSED SITE SECTIONS
Plans
Not archived · Council Link
REPORT ON A GEOPHYSICAL SURVEY
Supporting Documents
Not archived · Council Link
SITE LAYOUT - PROPOSED FIRST FLOOR PLAN
Plans
Not archived · Council Link
SITE LAYOUT - PROPOSED GROUND FLOOR PLAN
Plans
Not archived · Council Link
SITE LAYOUT - PROPOSED PLOT NUMBER REFERENCE PLAN
Plans
Not archived · Council Link
SITE LAYOUT - PROPOSED ROOF PLAN
Plans
Not archived · Council Link
SITE LAYOUT - PROPOSED SECOND FLOOR PLAN
Plans
Not archived · Council Link
SITE LEVELS
Plans
Not archived · Council Link
TREE SURVEY PLAN
Plans
Not archived · Council Link
VEHICLE TRACKING
Plans
Not archived · Council Link
YORKSHIRE AND HUMBER DRAINAGE BOARD
Consultee Comment
Not archived · Council Link
YORKSHIRE WATER SERVICES LIMITED
Consultee Comment
Not archived · Council Link

Take Action

Make your voice heard. Authorities need to hear from people who support new homes.

✉️ Write Email in Support View on Council Portal