← Back to East Riding of Yorkshire Council

Status

Application Approved Change of use
Received
28 Jul 2025
New dwellings
1

Summary

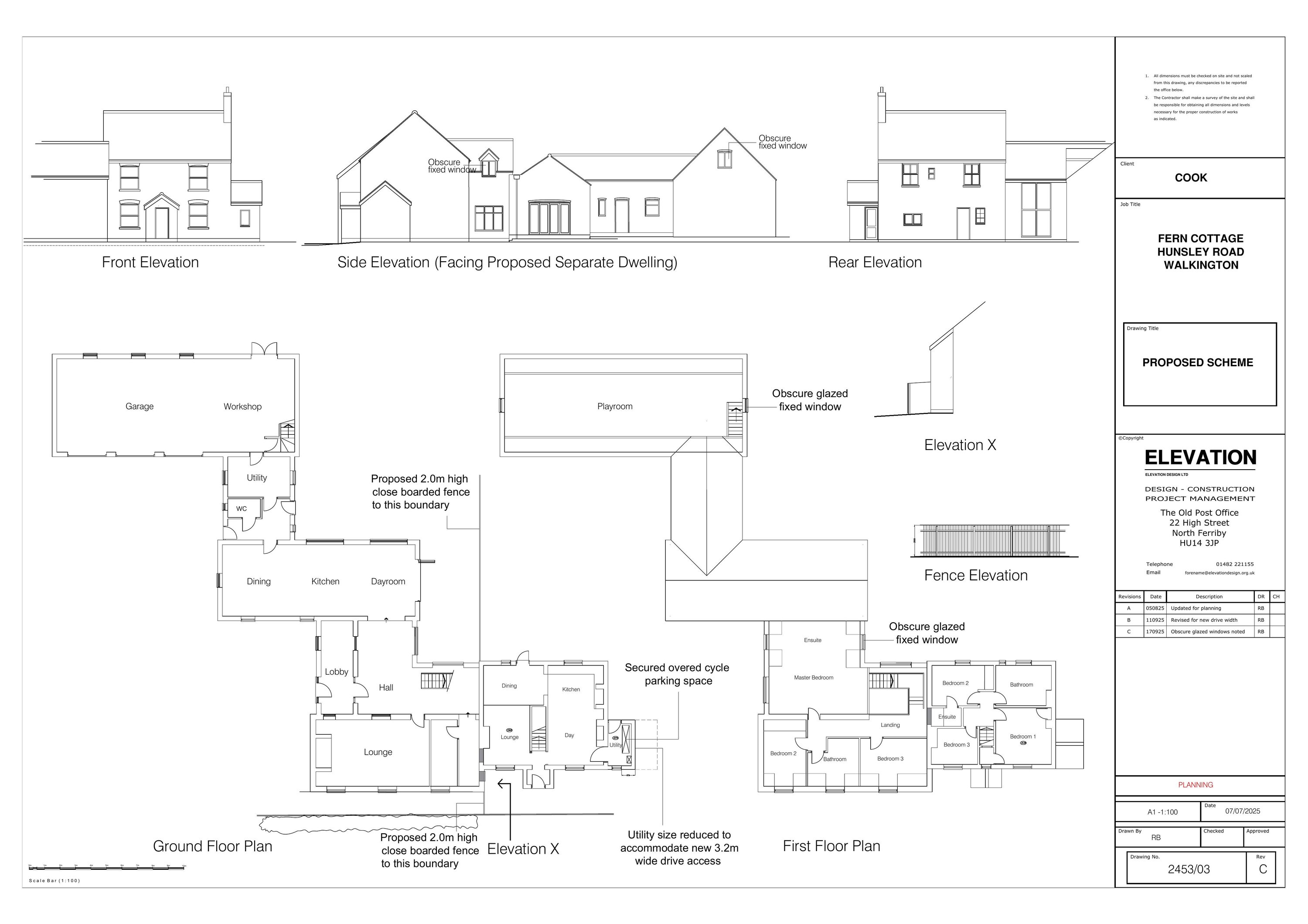
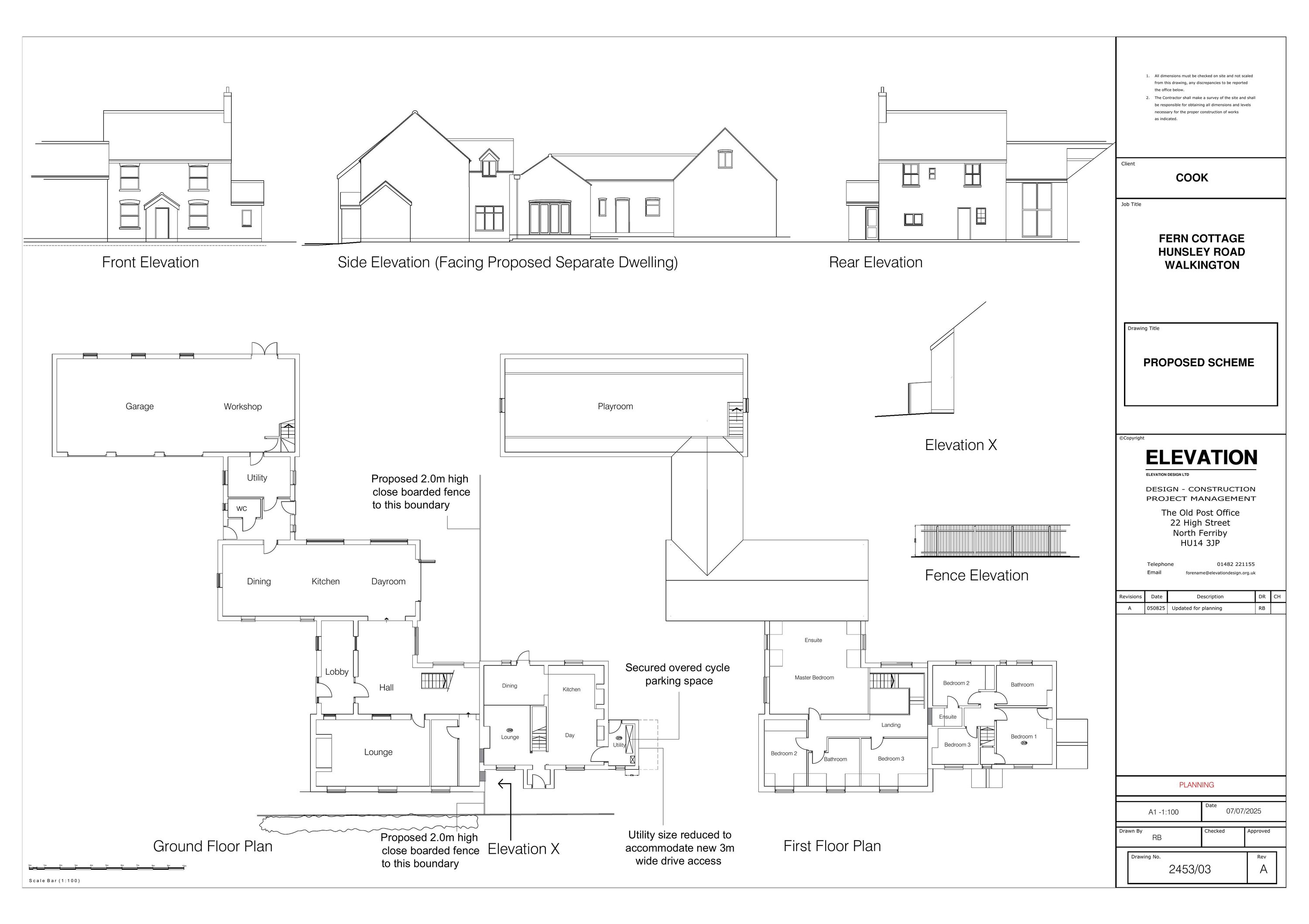
Subdivision of one dwelling to form two with new access, driveway, turning area and boundary fence.

Full Proposal

Sub-division of a single dwelling to form two dwellings, installation of front door, removal of existing ground floor side window and alterations to reduce existing single storey side projection, construction of new vehicular access, driveway and turning area to serve new dwelling, and erection of 2m high boundary fence

Documents

. HIGHWAY DEVELOPMENT MANAGEMENT
Consultee Comment
Not archived · Council Link
. NATURE CONSERVATION OFFICER
Consultee Comment
Not archived · Council Link
. YORKSHIRE WATER SERVICES LTD DEVELOPER SERVICES
Consultee Comment
Not archived · Council Link
APPLICATION FORM
Application Form
Not archived · Council Link
APPROPRIATE ASSESSMENT
Supporting Documents
Not archived · Council Link
COPY OF DECISION 25/10103/PREP
Supporting Documents
Not archived · Council Link
DESIGN CODE COMPLIANCE CHECKLIST
Supporting Documents
Not archived · Council Link
DESIGN CODE SUPPORTING DETAILS
Supporting Documents
Not archived · Council Link
eDecision
eDecision
Not archived · Council Link
EXISTING FLOOR PLANS AND ELEVATIONS
Plans
Not archived · Council Link
LOCATION PLAN
Plans
Not archived · Council Link
NATURAL ENGLAND
Consultee Comment
Not archived · Council Link
Officer Report
Officer Report
Not archived · Council Link
PRELIMINARY ECOLOGY REPORT
Supporting Documents
Not archived · Council Link
Plans
Archived · Council Link
SMALL SITES METRIC CALCULATION TOOL
Supporting Documents
Not archived · Council Link

Take Action

Make your voice heard. Authorities need to hear from people who support new homes.

✉️ Write Email in Support View on Council Portal