← Back to East Riding of Yorkshire Council

Status

Unknown Change of use
Received
08 Sep 2025
New dwellings
2

Summary

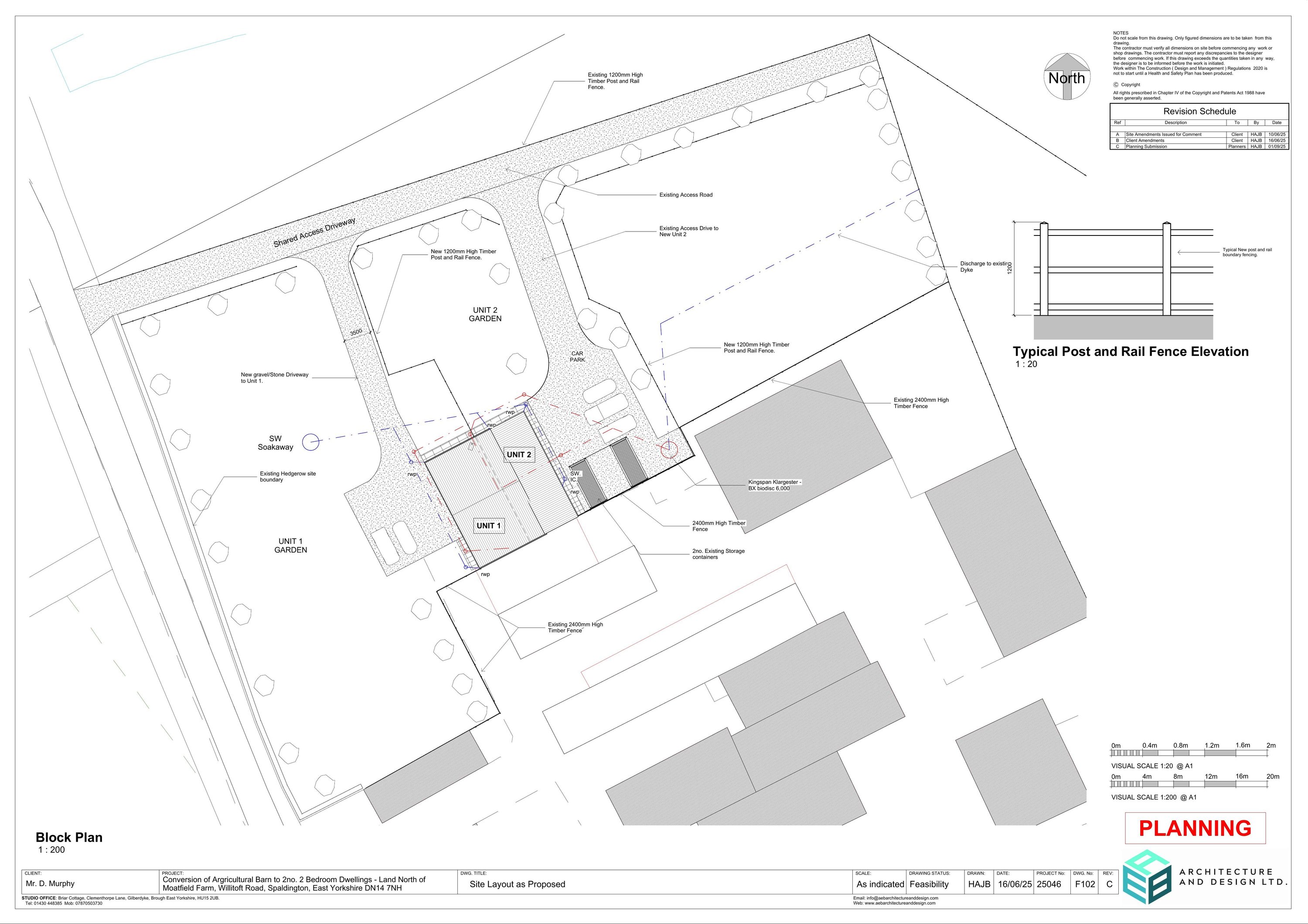
Change of use of agricultural barn to form two dwellings with associated works.

Full Proposal

Change of use of an existing agricultural barn to 2 dwellings with associated works

Documents

. ENVIRONMENTAL CONTROL
Consultee Comment
Not archived · Council Link
. NATURE CONSERVATION OFFICER
Consultee Comment
Not archived · Council Link
. TRANSPORT PLANNING
Consultee Comment
Not archived · Council Link
3D VIEWS
Plans
Not archived · Council Link
APPLICATION FORM
Application Form
Not archived · Council Link
DRAINAGE IMPACT ASSESSMENT
Supporting Documents
Not archived · Council Link
eDecision
eDecision
Not archived · Council Link
FLOOD RISK NOTE
Supporting Documents
Not archived · Council Link
LOCATION PLAN AND BLOCK PLAN
Plans
Not archived · Council Link
OFFICER REPORT
Officer Report
Not archived · Council Link
PLANNING STATEMENT
Supporting Documents
Not archived · Council Link
STRUCTURAL REPORT
Supporting Documents
Not archived · Council Link

Take Action

Make your voice heard. Authorities need to hear from people who support new homes.

✉️ Write Email in Support View on Council Portal