← Back to East Riding of Yorkshire Council

Status

Pending Consideration New housing
Received
17 Oct 2025
New dwellings
1

Summary

Subdivision for two new dwelling houses.

Full Proposal

Sub-division of existing dwelling to form two dwelling houses including construction of new vehicular access and gates

Documents

. NATURE CONSERVATION OFFICER
Consultee Comment
Not archived · Council Link
. TRANSPORT PLANNING
Consultee Comment
Not archived · Council Link
. YORKSHIRE WATER SERVICES LTD DEVELOPER SERVICES
Consultee Comment
Not archived · Council Link
APPLICATION FORM
Application Form
Not archived · Council Link
BASELINE HABITAT MAP
Plans
Not archived · Council Link
BIODIVERSITY CONDITION ASSESSMENT
Supporting Documents
Not archived · Council Link
BIODIVERSITY METRIC CALCULATION
Supporting Documents
Not archived · Council Link
BNG ASSESSMENT SUPPORTING DOCUMENT
Supporting Documents
Not archived · Council Link
DESIGN AND ACCESS STATEMENT
Supporting Documents
Not archived · Council Link
DESIGN CODE COMPLIANCE CHECKLIST
Supporting Documents
Not archived · Council Link
DESIGN CODE NOTES
Supporting Documents
Not archived · Council Link
DRAINAGE ASSESSMENT AND STRATEGY
Supporting Documents
Not archived · Council Link
ENVIRONMENT AGENCY
Consultee Comment
Not archived · Council Link
EXISTING AND PROPOSED LANDSCAPING PLANS
Plans
Not archived · Council Link
EXISTING ELEVATIONS
Plans
Not archived · Council Link
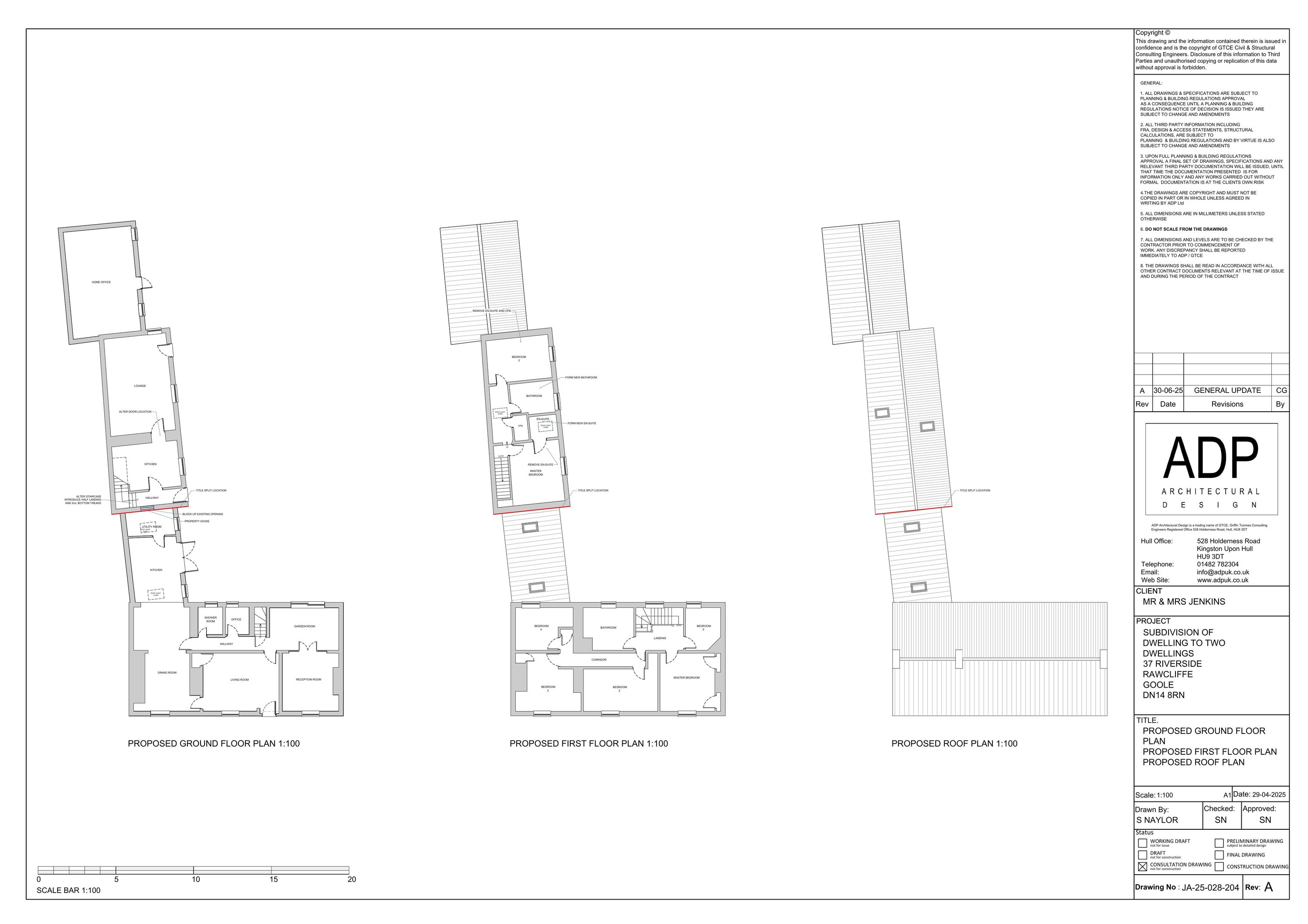
EXISTING FLOOR PLAN AND ROOF PLAN
Plans
Not archived · Council Link
FLOOD RISK ASSESSMENT REPORT
Supporting Documents
Not archived · Council Link
INTERTNAL DRAINAGE BOARD
Consultee Comment
Not archived · Council Link
PRESS ADVERT - GOOLE TIMES - 13.11.25
Press Advert
Not archived · Council Link
PROPOSED ELEVATIONS
Plans
Not archived · Council Link
PROPOSED HABITAT MAP
Plans
Not archived · Council Link

Take Action

Make your voice heard. Authorities need to hear from people who support new homes.

✉️ Write Email in Support View on Council Portal