← Back to East Riding of Yorkshire Council
Status
Pending Decision
New housing
Full Proposal
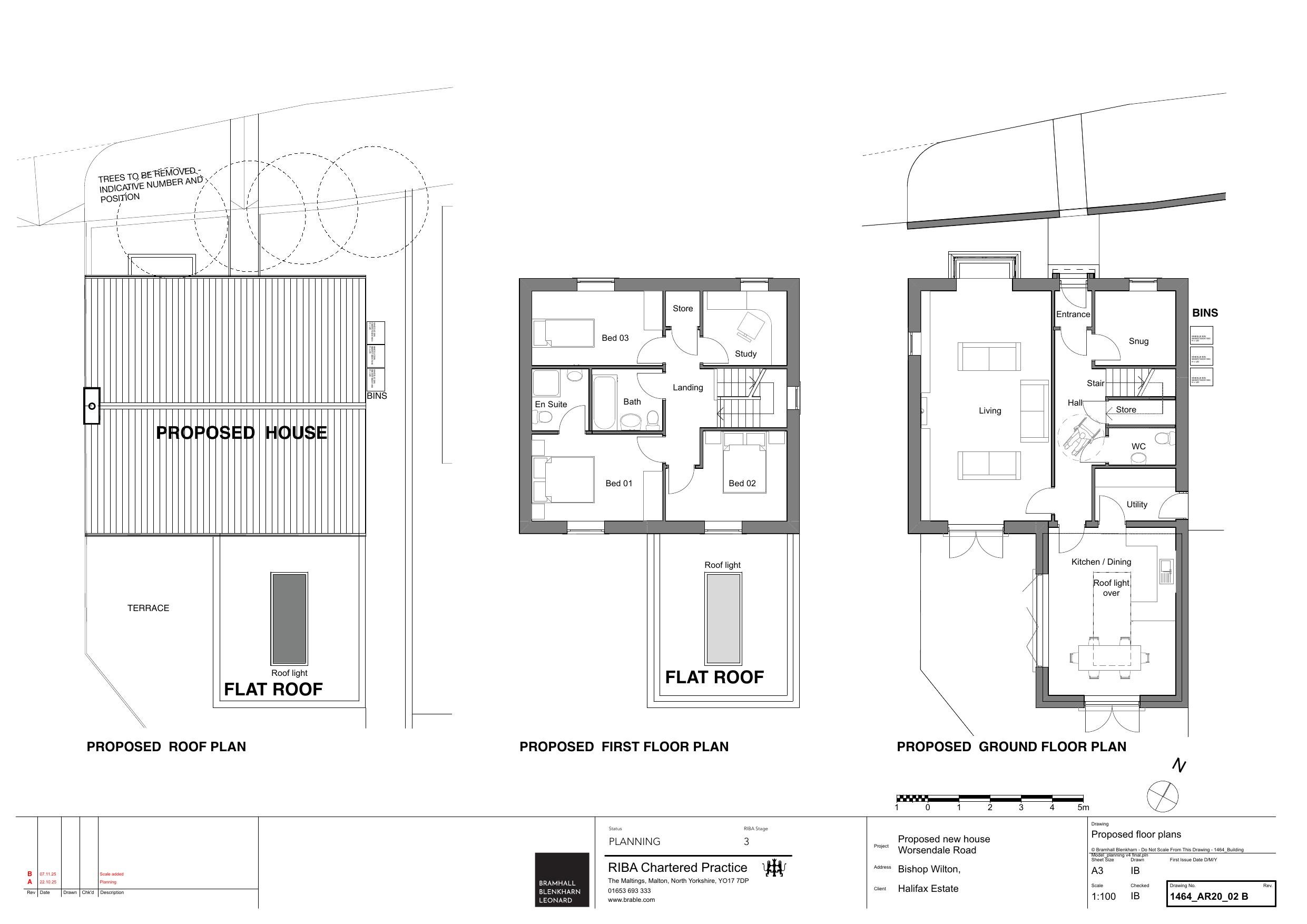
Erection of dwelling and detached double garage and construction of new vehicular access
Documents
. BUILDING CONSERVATION
Consultee Comment
. LAND DRAINAGE
Consultee Comment
. NATURE CONSERVATION OFFICER
Consultee Comment
. TRANSPORT PLANNING
Consultee Comment
ANNE SUMPNER
Public Comment
APPLICATION FORM
Application Form
BARBARA MACHIN
Public Comment
BASELINE HABITAT MAP
Plans
BIODIVERSITY METRIC CALCULATION TOOL
Supporting Documents
COMMITTEE REPORT
Committee Report
DESIGN CODE COMPLIANCE CHECKLIST
Supporting Documents
DIGBY MACHIN
Public Comment
DR COLIN POLLOCK(FULL)
Public Comment
EXISTING LOCATION PLAN WITH BOUNDARY TREATMENTS
Plans
HERITAGE, DESIGN AND ACCESS STATEMENT
Supporting Documents
JUDITH POLLOCK(FULL)
Public Comment
MR JOHN BURROWS(FULL)
Public Comment
MR MARTIN LAND(FULL)
Public Comment
MR PAUL GLADING(FULL)
Public Comment
MRS CLAIRE GASKIN(FULL)
Public Comment
MRS LOUISE BUTCHER(FULL)
Public Comment
MRS PAULA GOODRICK(FULL)
Public Comment
MRS RUTH MARDALL(FULL)
Public Comment
MRS SANDRA MORRISON
Consultee Comment
MRS SARA DACE-HUGHES(FULL)
Public Comment
MRS TRACY LAND(FULL)
Public Comment
MS EMMA STAMFORD(FULL)
Public Comment
POCKLINGTON POST
Press Advert
PRE DEVELOPMENT BIODIVERSITY SCORES
Supporting Documents
PROPOSED GARAGE ROOF, ELEVATIONS AND FLOOR PLAN
Plans
PROPOSED NORTH AND EAST ELEVATIONS
Plans
PROPOSED SOUTH AND WEST ELEVATIONS
Plans
SUPERSEDED - PROPOSED GARAGE FLOOR AND ROOF PLANS AND ELEVATIONS
Plans
SUPERSEDED - PROPOSED NORTH AND EAST ELEVATIONS
Plans
SUPERSEDED - PROPOSED SOUTH AND WEST ELEVATIONS
Plans
YORKSHIRE WATER
Consultee Comment
Take Action
Make your voice heard. Authorities need to hear from people who support new homes.