← Back to East Riding of Yorkshire Council

Status

Pending Consideration New housing
Received
06 Nov 2025
New dwellings
1

Full Proposal

Erection of a dwelling

Documents

. BUILDING CONSERVATION
Consultee Comment
Not archived · Council Link
. LAND DRAINAGE
Consultee Comment
Not archived · Council Link
. NATURE CONSERVATION OFFICER
Consultee Comment
Not archived · Council Link
. TRANSPORT PLANNING
Consultee Comment
Not archived · Council Link
. TREES TEAM
Consultee Comment
Not archived · Council Link
APPLICATION FORM
Application Form
Not archived · Council Link
ARBORICULTURAL REPORT (VER 6)
Supporting Documents
Not archived · Council Link
ARBORICULTURAL REPORT (VER 6)
Supporting Documents
Not archived · Council Link
BNG EXEMPTION STATEMENT DE MINIMIS
Supporting Documents
Not archived · Council Link
COVERING LETTER/SUPPORTING STATEMENT
Supporting Documents
Not archived · Council Link
DESIGN CODE COMPLIANCE CHECKLIST
Supporting Documents
Not archived · Council Link
EASTERN DRAINAGE STRATEGY
Plans
Not archived · Council Link
ENVIRONMENTAL CONTROL
Consultee Comment
Not archived · Council Link
ETTON PARISH COUNCIL
Consultee Comment
Not archived · Council Link
FLOOD RISK ASSESSMENT
Supporting Documents
Not archived · Council Link
HERITAGE IMPACT STATEMENT
Supporting Documents
Not archived · Council Link
HIGHWAYS SUPPORTING STATEMENT
Supporting Documents
Not archived · Council Link
IAN NAPPER
Public Comment
Not archived · Council Link
LOCATION PLAN
Plans
Not archived · Council Link
MIKE LOFTS
Public Comment
Not archived · Council Link
MIKE LOFTS
Public Comment
Not archived · Council Link
MISS NICOLA WHITEHEAD(FULL)
Public Comment
Not archived · Council Link
MR DAVID WILSON(FULL)
Public Comment
Not archived · Council Link
MRS KATY WILSON(FULL)
Public Comment
Not archived · Council Link
MRS MOIRA ARMSTRONG(FULL)
Public Comment
Not archived · Council Link
PLANNING, DESIGN AND ACCESS STATEMENT
Supporting Documents
Not archived · Council Link
PRESS ADVERT - HULL DAILY MAIL - 21.11.25
Press Advert
Not archived · Council Link
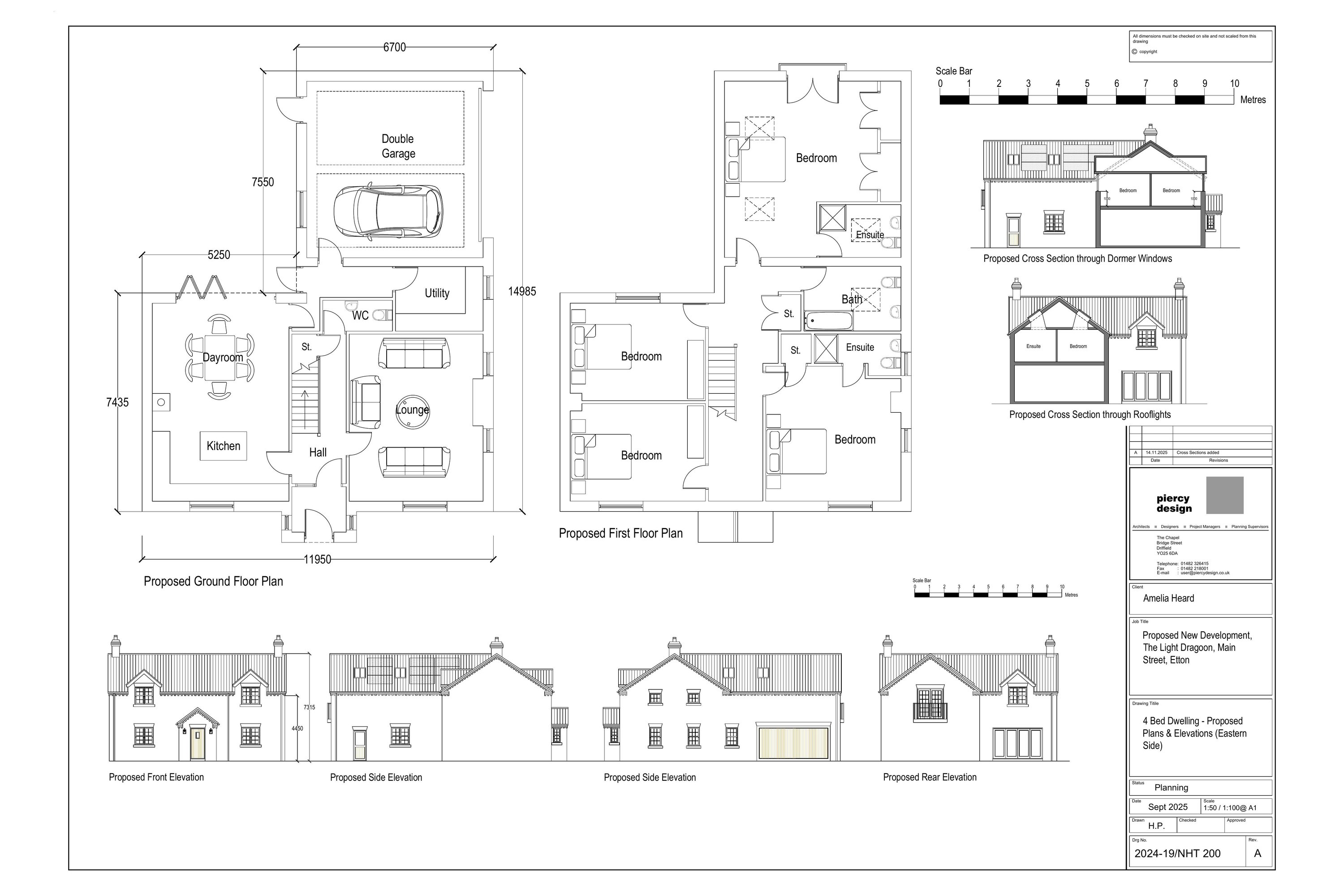
PROPOSED FLOOR PLAN AND ELEVATIONS
Plans
Not archived · Council Link
Plans
Archived · Council Link
PROPOSED SITE/ROOF LAYOUT PLAN (EASTERN SIDE)
Plans
Not archived · Council Link
PROPOSED STREET SCENE
Plans
Not archived · Council Link
PROPOSED STREETSCENE ELEVATIONS AND SITE SECTION
Plans
Not archived · Council Link
SUPERSEDED - EASTERN DRAINAGE STRATEGY
Plans
Not archived · Council Link
YORKSHIRE WATER
Consultee Comment
Not archived · Council Link
YORKSHIRE WATER
Consultee Comment
Not archived · Council Link

Take Action

Make your voice heard. Authorities need to hear from people who support new homes.

✉️ Write Email in Support View on Council Portal