← Back to East Riding of Yorkshire Council

Status

Pending Consideration Change of use
Received
07 Nov 2025
New dwellings
0

Full Proposal

Change of use from Council Offices to restaurant and erection of single storey extension to rear and outdoor seating to front and rear

Documents

. BUILDING CONSERVATION
Consultee Comment
Not archived · Council Link
. ENVIRONMENTAL CONTROL
Consultee Comment
Not archived · Council Link
. NATURE CONSERVATION OFFICER
Consultee Comment
Not archived · Council Link
. TRANSPORT PLANNING
Consultee Comment
Not archived · Council Link
. TREES .
Consultee Comment
Not archived · Council Link
. YORKSHIRE WATER SERVICES LTD DEVELOPER SERVICES
Consultee Comment
Not archived · Council Link
AMENDED APPLICATION FORM
Application Form
Not archived · Council Link
BIODIVERSITY METRIC CALCULATION
Supporting Documents
Not archived · Council Link
BIODIVERSITY NET GAIN SUMMARY REPORT
Supporting Documents
Not archived · Council Link
BNG BASELINE HABITAT MAP
Plans
Not archived · Council Link
BNG POST DEVELOPMENT HABITAT MAP
Plans
Not archived · Council Link
DESIGN CODE COMPLIANCE CHECKLIST
Supporting Documents
Not archived · Council Link
DESIGN, ACCESS AND HERITAGE STATEMENT
Supporting Documents
Not archived · Council Link
EXISTING ELEVATIONS AND SECTIONS
Plans
Not archived · Council Link
EXISTING FLOOR PLANS
Plans
Not archived · Council Link
HOLDERNESS GAZETTE 20.11.2025
Press Advert
Not archived · Council Link
HORNSEA TOWN COUNCIL
Consultee Comment
Not archived · Council Link
KITCHEN ODOUR ASSESSMENT
Supporting Documents
Not archived · Council Link
LICENSING
Consultee Comment
Not archived · Council Link
LOCATION PLAN
Plans
Not archived · Council Link
NOCTURNAL BAT SURVEY REPORT
Supporting Documents
Not archived · Council Link
NOISE IMPACT ASSESSMENT REPORT
Supporting Documents
Not archived · Council Link
PROPOSED ELEVATIONS AND SECTION
Plans
Not archived · Council Link
PROPOSED REAR YARD PLAN
Plans
Not archived · Council Link
PROPOSED SECTION THROUGH KITCHEN
Plans
Not archived · Council Link
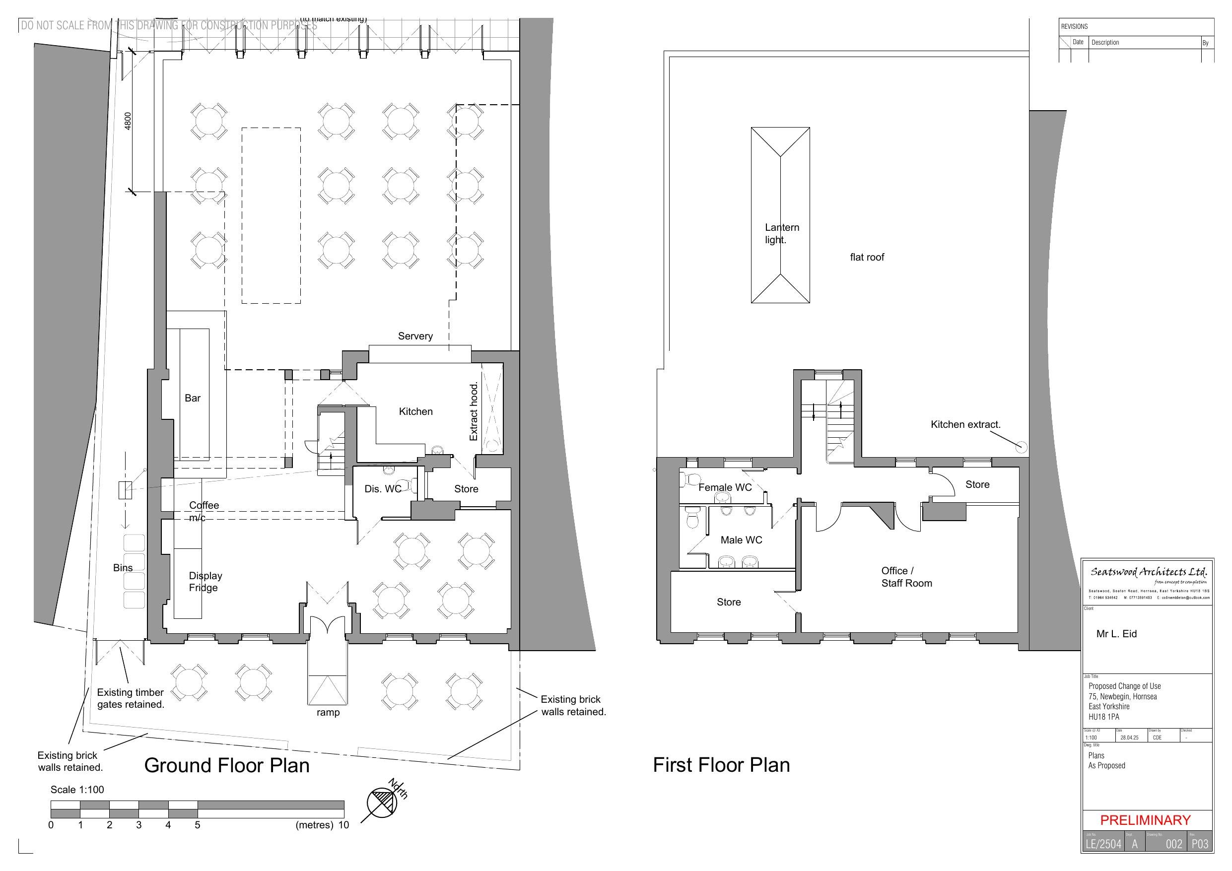
Plans
Archived · Council Link
SUPERSEDED APPLICATION FORM
Application Form
Not archived · Council Link
TRANSPORT PLANNING TEAM
Consultee Comment
Not archived · Council Link

Take Action

Make your voice heard. Authorities need to hear from people who support new homes.

✉️ Write Email in Support View on Council Portal