← Back to East Riding of Yorkshire Council
25/03336/PLF
East Riding of Yorkshire Council · IDOX
Status
Pending Consideration
Change of use
Received
25 Nov 2025
New dwellings
1
Full Proposal
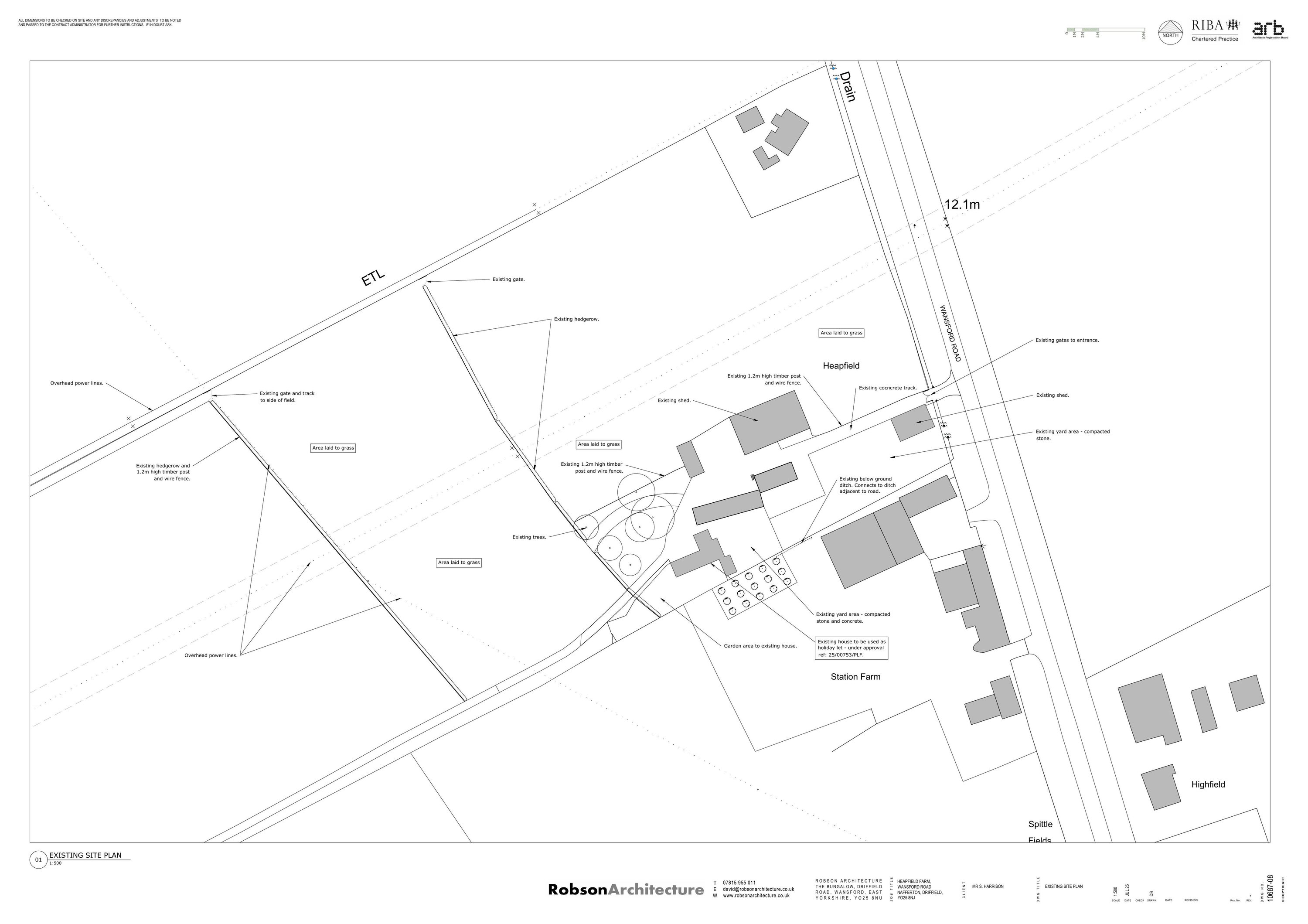
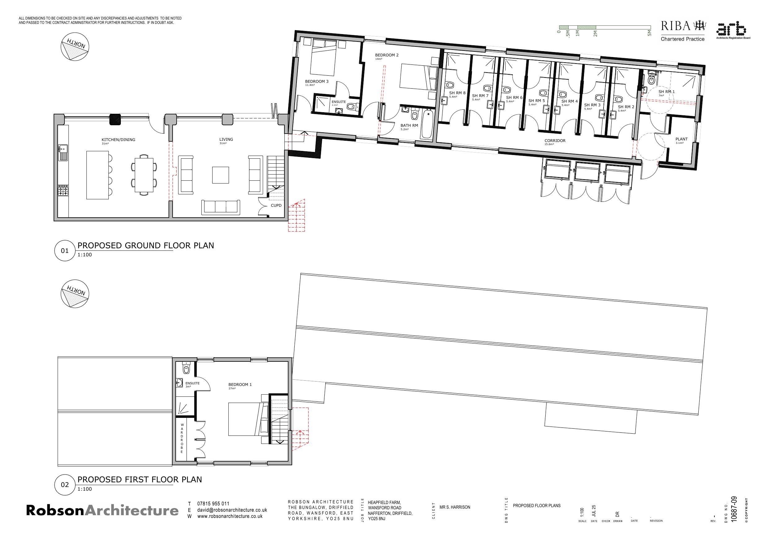
Change of use of 2 agricultural buildings to form a dwelling and shower block with alterations including erection of a link extension and bin store, and change of use of land for siting of 8 caravan pitches with associated landscaping, fencing and infrastructure
Documents
DESIGN CODE COMPLIANCE CHECKLIST (CUSTOM CHECKLIST)
Supporting Documents
Not archived
· Council Link
PLANNING STATEMENT (INC DESIGN, ACCESS, CONTAMINATION, STRUCTURAL SURVEY)
Supporting Documents
Not archived
· Council Link
Take Action
Make your voice heard. Authorities need to hear from people who support new homes.