← Back to East Riding of Yorkshire Council
25/10086/HHNOT
East Riding of Yorkshire Council · IDOX
Status
Prior Approval Not Required
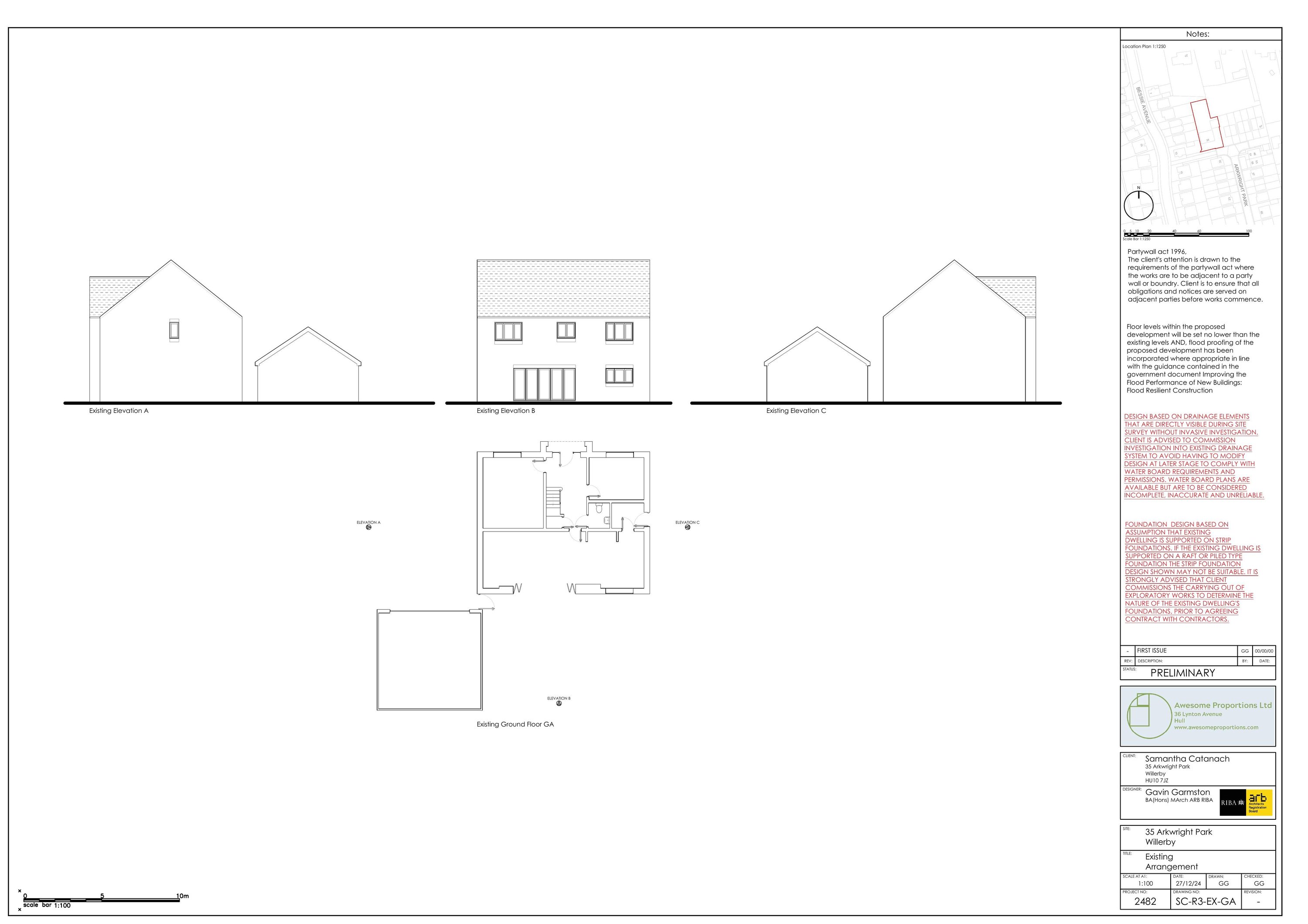
House extension
Received
27 Jan 2025
New dwellings
0
Summary
Single-storey rear extension extending 5m, 3.85m max height, 2.4m to eaves.
Full Proposal
Erection of a single storey extension to rear extending 5m beyond the rear wall of the original house, maximum height 3.85m high and 2.4m to eaves
Documents
Take Action
Make your voice heard. Authorities need to hear from people who support new homes.