← Back to East Riding of Yorkshire Council
25/10197/HHNOT
East Riding of Yorkshire Council · IDOX
Status
Prior Approval Not Required
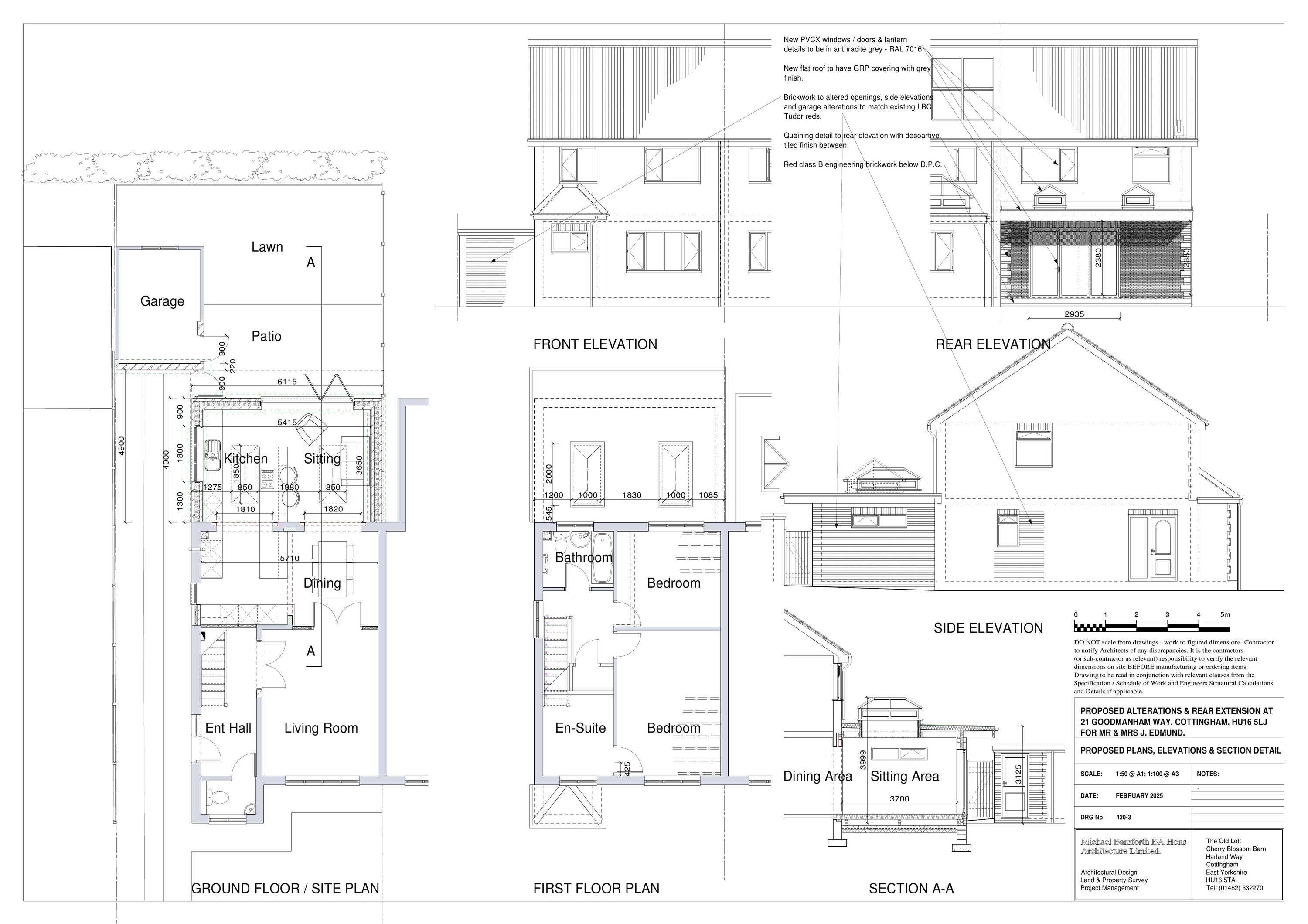
House extension
Received
03 Mar 2025
New dwellings
0
Summary
Single storey rear extension extending 4.9m, maximum height 3.99m, eaves 2.78m.
Full Proposal
Erection of a single storey extension to rear extending 4.9m beyond the rear wall of the original house, maximum height 3.99m high and 2.78m to eaves
Documents
Take Action
Make your voice heard. Authorities need to hear from people who support new homes.