← Back to East Riding of Yorkshire Council

Status

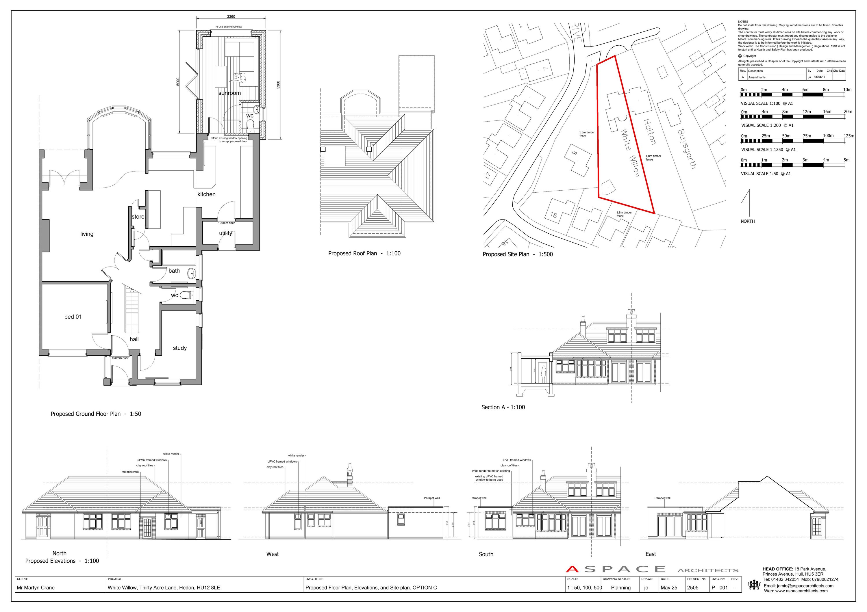
Prior Approval Not Required House extension
Received
22 Jul 2025
New dwellings
0

Summary

Single storey rear extension extending 5.3m with 3.14m max height.

Full Proposal

Erection of a single storey extension to rear extending 5.3m beyond the rear wall of the original house, maximum height 3.14m high and 2.4m to eaves

Documents

APPLICATION FORM
Application Form
Not archived · Council Link
eDecision
eDecision
Not archived · Council Link
OFFICER REPORT
Officer Report
Not archived · Council Link

Take Action

Make your voice heard. Authorities need to hear from people who support new homes.

✉️ Write Email in Support View on Council Portal