← Back to East Riding of Yorkshire Council

Status

Pending Consideration New housing
Received
Last month
New dwellings
1

Full Proposal

Erection of detached dwelling with associated works (retrospective)

Documents

APPLICATION FORM
Application Form
Not archived · Council Link
CONSTRUCTION & ACCESS METHOD STATEMENT
Supporting Documents
Not archived · Council Link
DESIGN CODE COMPLIANCE CHECK LIST
Supporting Documents
Not archived · Council Link
DESIGN, ACCESS AND HERITAGE STATEMENT
Supporting Documents
Not archived · Council Link
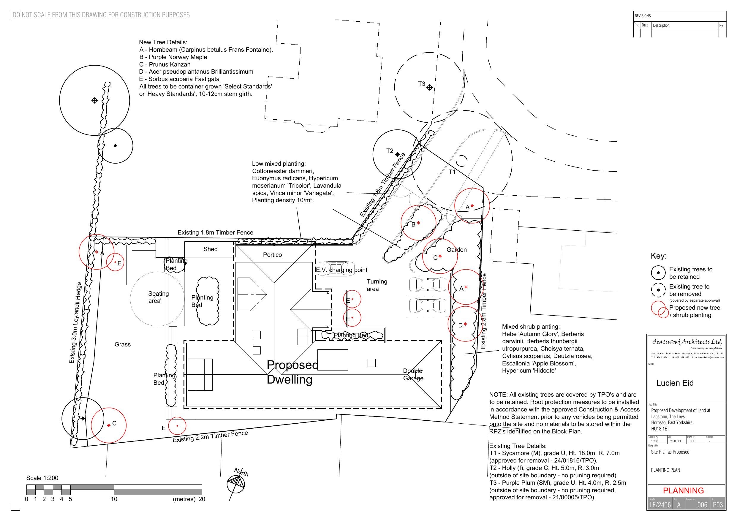
LOCATION PLAN
Plans
Not archived · Council Link
LOCATION PLAN
Plans
Not archived · Council Link
PROPOSED DRAINAGE PLAN
Plans
Not archived · Council Link
Plans
Archived · Council Link
REPORT ON AN ARCHAEOLOGICAL WATCHING BRIEF
Supporting Documents
Not archived · Council Link
TOPOGRAPHICAL SURVEY
Plans
Not archived · Council Link

Take Action

Make your voice heard. Authorities need to hear from people who support new homes.

✉️ Write Email in Support View on Council Portal