← Back to East Suffolk Council

Status

Awaiting decision New housing
Received
28 Aug 2024
New dwellings
6

Full Proposal

Hybrid application for a phased redevelopment of the former garage site including full application: demolition of all buildings, erection of 5 No. dwellings, including 1 No. self build dwelling, 2 No. market dwellings, and up to 2 No. affordable dwellings, parking spaces, site access and landscaping and outline application for 1 No. self build/custom build dwelling.

Documents

Application Form
Application Form
Not archived · Council Link
ARCHAEOLOGICAL DESK-BASED ASSESSMENT
Supporting Documents
Not archived · Council Link
BARNES - CRINNIS, FRONT STREET, ORFORD
Public Comment
Not archived · Council Link
BIODIVERSITY NET GAIN (STATUTORY METRIC) DESIGN STAGE REPORT
Biodiversity Net Gain
Not archived · Council Link
CONSULTATION REQUEST
Consultee Comment
Not archived · Council Link
CONTAMINATED LAND ASSESSMENT
Supporting Documents
Not archived · Council Link
DEMOLITION PLAN
Drawing
Not archived · Council Link
DESIGN & HERITAGE
Consultee Comment
Not archived · Council Link
DESIGN - EAST SUFFOLK DESIGN AND HERITAGE
Consultee Comment
Not archived · Council Link
DESIGN STATEMENT
Supporting Documents
Not archived · Council Link
EAST SUFFOLK HOUSING
Consultee Comment
Not archived · Council Link
ENVIRONMENTAL PROTECTION
Consultee Comment
Not archived · Council Link
ENVIRONMENTAL PROTECTION
Consultee Comment
Not archived · Council Link
ESC ECOLOGY
Consultee Comment
Not archived · Council Link
ESC LANDSCAPE TEAM
Consultee Comment
Not archived · Council Link
ESC LANDSCAPE TEAM
Consultee Comment
Not archived · Council Link
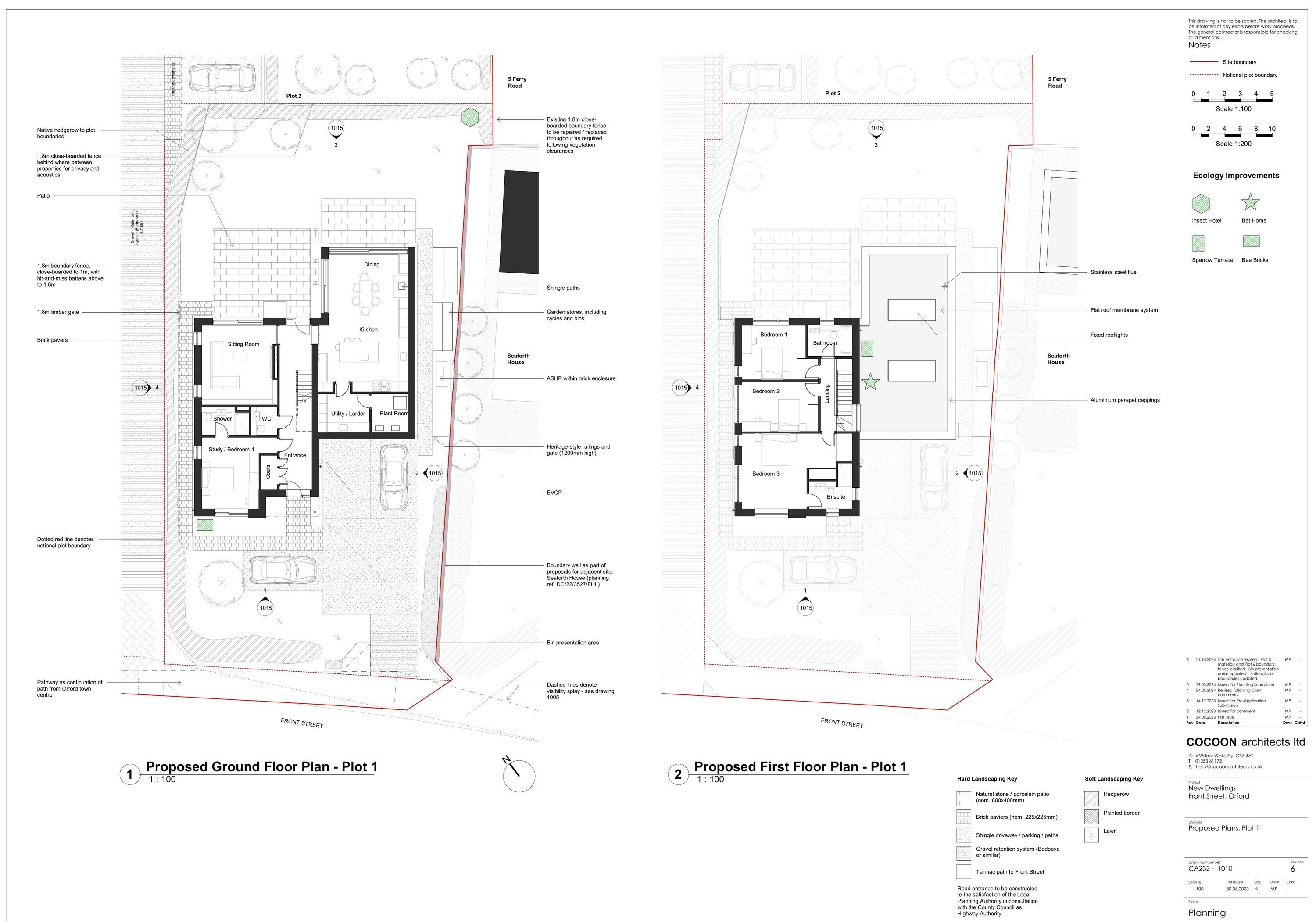
EXISTING SITE AND ROOF PLAN, LOCATION PLAN
Revised Drawing
Not archived · Council Link
FIRE TENDER VEHICLE TRACKING
Revised Drawing
Not archived · Council Link
FLOOD RISK ASSESSMENT
Supporting Documents
Not archived · Council Link
GAUNT - 3 TOLLER CLOSE
Public Comment
Not archived · Council Link
HERITAGE IMPACT ASSESSMENT
Supporting Documents
Not archived · Council Link
LANDSCAPE PROPOSALS PLAN
Revised Drawing
Not archived · Council Link
NATURAL ENGLAND
Consultee Comment
Not archived · Council Link
ORFORD PARISH COUNCIL
Consultee Comment
Not archived · Council Link
PHASING OF DEVELOPMENT (A)
Revised Drawing
Not archived · Council Link
PHASING OF DEVELOPMENT (B)
Revised Drawing
Not archived · Council Link
PLAN SHOWING PHOTO POSITIONS
Supporting Documents
Not archived · Council Link
PLANNING STATEMENT
Supporting Documents
Not archived · Council Link
PRELIMINARY ECOLOGICAL APPRAISAL REPORT
Supporting Documents
Not archived · Council Link
PRELIMINARY ECOLOGICAL APPRAISAL REPORT
Supporting Documents
Not archived · Council Link
PRIVATE CAR VEHICLE TRACKING
Revised Drawing
Not archived · Council Link
PROPOSED ELEVATIONS, PLOT 1 PROPOSED STREET ELEVATION
Revised Drawing
Not archived · Council Link
PROPOSED ELEVATIONS, PLOT 2
Revised Drawing
Not archived · Council Link
PROPOSED ELEVATIONS, PLOT 3
Revised Drawing
Not archived · Council Link
Revised Drawing
Archived · Council Link
Revised Drawing
Archived · Council Link
Revised Drawing
Archived · Council Link
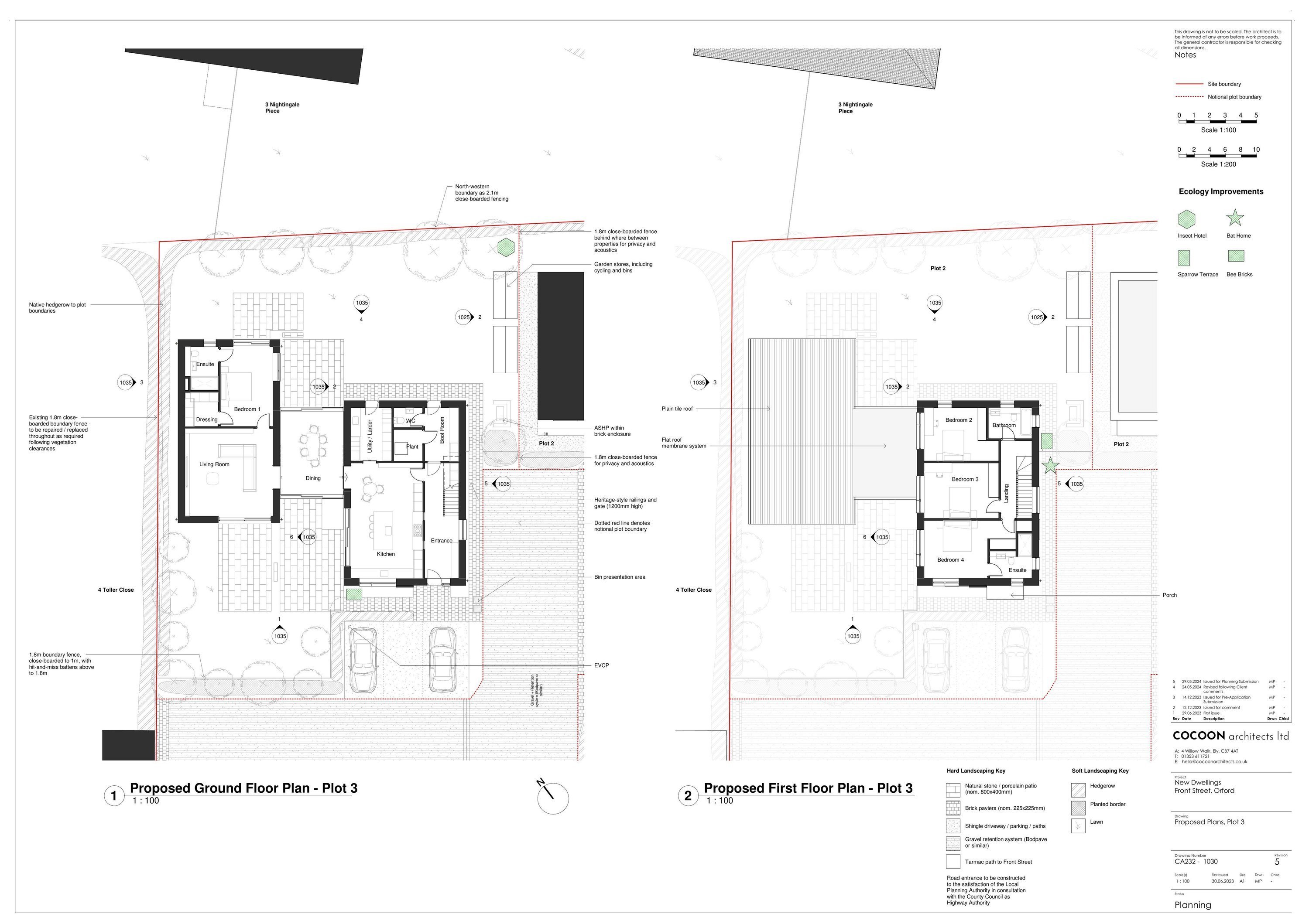
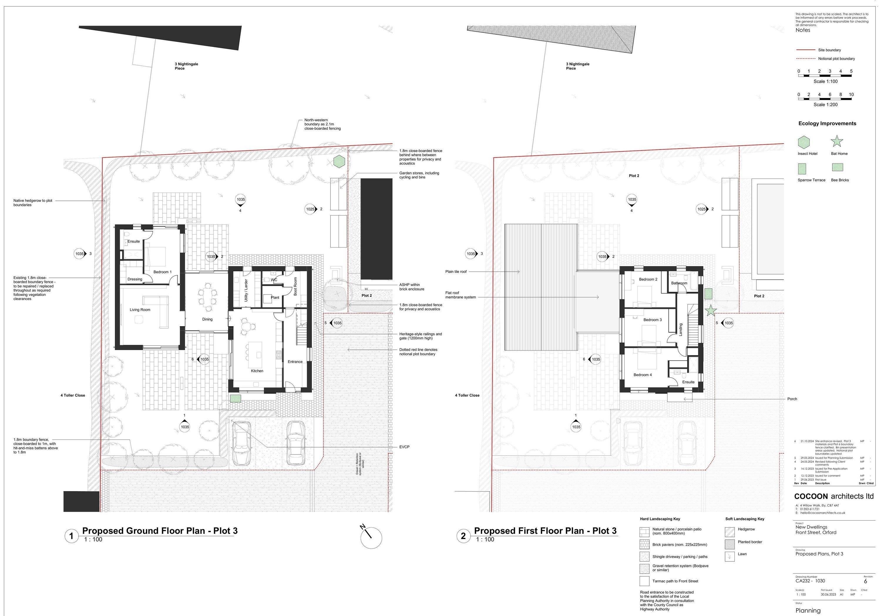
PROPOSED SITE AND ROOF PLAN
Revised Drawing
Not archived · Council Link
REFUSE VEHICLE TRACKING
Revised Drawing
Not archived · Council Link
REPORT OF A REFURBISHMENT AND DEMOLITION SURVEY FOR ASBESTOS CONTAINING MATERIAL
Supporting Documents
Not archived · Council Link
SCC ARCHAEOLOGICAL SERVICE
Consultee Comment
Not archived · Council Link
SCC HIGHWAYS
Consultee Comment
Not archived · Council Link
SCC HIGHWAYS DEPARTMENT
Consultee Comment
Not archived · Council Link
SITE PHOTO POSITION 1
Photographs
Not archived · Council Link
SITE PHOTO POSITION 1
Photographs
Not archived · Council Link
SITE PHOTO POSITION 1
Photographs
Not archived · Council Link
SITE PHOTO POSITION 10
Photographs
Not archived · Council Link
SITE PHOTO POSITION 2
Photographs
Not archived · Council Link
SITE PHOTO POSITION 3
Photographs
Not archived · Council Link
SITE PHOTO POSITION 3
Photographs
Not archived · Council Link
SITE PHOTO POSITION 4
Photographs
Not archived · Council Link
SITE PHOTO POSITION 4
Photographs
Not archived · Council Link
SITE PHOTO POSITION 5
Photographs
Not archived · Council Link
SITE PHOTO POSITION 5
Photographs
Not archived · Council Link
SITE PHOTO POSITION 5
Photographs
Not archived · Council Link
SITE PHOTO POSITION 6
Photographs
Not archived · Council Link
SITE PHOTO POSITION 7
Photographs
Not archived · Council Link
SITE PHOTO POSITION 8
Photographs
Not archived · Council Link
SITE PHOTO POSITION 9
Photographs
Not archived · Council Link
SUFFOLK FIRE & RESCUE
Consultee Comment
Not archived · Council Link
SUFFOLK FIRE & RESCUE
Consultee Comment
Not archived · Council Link
SUPERSEDED - LANDSCAPE PROPOSAL
Drawing
Not archived · Council Link
SUPERSEDED EXISTING SITE AND ROOF PLAN, LOCATION PLAN
Site Plan
Not archived · Council Link
SUPERSEDED PHASING OF DEVELOPMENT (A)
Drawing
Not archived · Council Link
SUPERSEDED PHASING OF DEVELOPMENT (B)
Drawing
Not archived · Council Link
SUPERSEDED PROPOSED ELEVATIONS, PLOT 1 PROPOSED STREET ELEVATION
Drawing
Not archived · Council Link
SUPERSEDED PROPOSED ELEVATIONS, PLOT 2
Drawing
Not archived · Council Link
SUPERSEDED PROPOSED ELEVATIONS, PLOT 3
Drawing
Not archived · Council Link
SUPERSEDED PROPOSED SITE AND ROOF PLAN
Drawing
Not archived · Council Link
THE STATUTORY BIODIVERSITY METRIC
Biodiversity Net Gain
Not archived · Council Link
TRANSPORT STATEMENT
Supporting Documents
Not archived · Council Link

Take Action

Make your voice heard. Authorities need to hear from people who support new homes.

✉️ Write Email in Support View on Council Portal