← Back to East Suffolk Council

Status

Permitted New housing
Received
17 Sep 2024
New dwellings
2

Full Proposal

Two new dwellings (Self-Build).

Documents

** SUPERSEDED - FIRST FLOOR PLAN AND ELEVATIONS
Drawing
Not archived · Council Link
** SUPERSEDED - GROUND FLOOR PLAN PROPOSED
Drawing
Not archived · Council Link
APPLICATION FORM REDACTED
Application Form
Not archived · Council Link
APPROVE - FULL APPLICATION
Decision Notice
Not archived · Council Link
BAKER - WINDERMERE SANDY LANE
Public Comment
Not archived · Council Link
BAKER - WINDERMERE SANDY LANE
Public Comment
Not archived · Council Link
BAKER - WINDERMERE, SANDY LANE
Public Comment
Not archived · Council Link
BAKER-WINDERMERE SANDY LANE
Public Comment
Not archived · Council Link
BROMESWELL PARISH COUNCIL.
Consultee Comment
Not archived · Council Link
BROWN - BROME HILL SANDY LANE
Public Comment
Not archived · Council Link
BROWN-BROME HILL SANDY LANE BROMESWELL SUFFOLK(FULL)
Public Comment
Not archived · Council Link
DEBENHAM - HIGHFIELD
Public Comment
Not archived · Council Link
ECOLGY - EAST SUFFOLK ECOLOGY
Consultee Comment
Not archived · Council Link
ENVIRONMENTAL PROTECTION
Consultee Comment
Not archived · Council Link
ENVPRO - EAST SUFFOLK ENVIRONMENTAL PROTECTION
Consultee Comment
Not archived · Council Link
ESC ECOLOGY
Consultee Comment
Not archived · Council Link
FIRE - SCC FIRE AND RESCUE SERVICE
Consultee Comment
Not archived · Council Link
GROUND FLOOR PLAN PROPOSED
Revised Drawing
Not archived · Council Link
GROUNDSURE SITE GUARD CLIMATE
Supporting Documents
Not archived · Council Link
INFO SHEET
Neighbour Notification List
Not archived · Council Link
LAND CONTAMINATION QUESTIONNAIRE
Supporting Documents
Not archived · Council Link
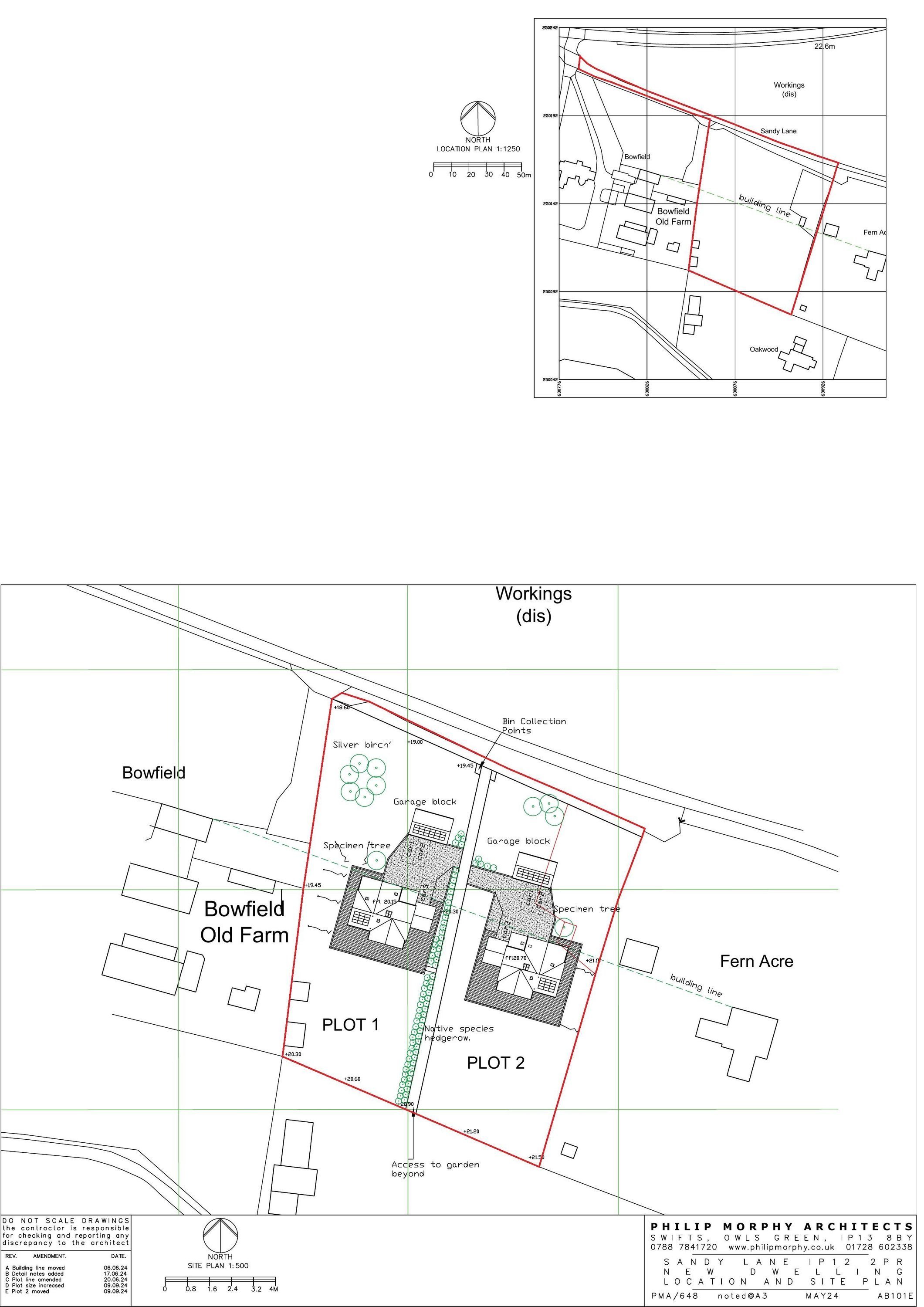
Revised Drawing
Archived · Council Link
MR SIDNEY SIEGERTSZ-CAVALIERS SANDY LANE BROMESWELL WOODBRIDGE SUFFOLK(FULL)
Public Comment
Not archived · Council Link
MRS JOAN HOLT-BOWFIELD OLD FARM SANDY LANE BROMESWELL WOODBRIDGE SUFFOLK(FULL)
Public Comment
Not archived · Council Link
MRS JOAN HOLT-BOWFIELD SANDY LANE BROMESWELL WOODBRIDGE SUFFOLK(FULL)
Public Comment
Not archived · Council Link
Officer / Committee Report
Officer / Committee Report
Not archived · Council Link
PLOT 1 - FIRST FLOOR PLAN AND ELEVATIONS
Revised Drawing
Not archived · Council Link
PLOT 2 - FIRST FLOOR PLAN AND ELEVATIONS
Revised Drawing
Not archived · Council Link
POTTER-FERN ACRE SANDY LANE BROMESWELL
Public Comment
Not archived · Council Link
POTTER-FERN ACRE SANDY LANE BROMESWELL
Public Comment
Not archived · Council Link
SCC COASTS AND HEATH PROJECT
Consultee Comment
Not archived · Council Link
SCC HIGHWAYS
Consultee Comment
Not archived · Council Link
SCCHW - SCC HIGHWAYS DEPARTMENT
Consultee Comment
Not archived · Council Link
SCCROW - SCC RIGHTS OF WAY
Consultee Comment
Not archived · Council Link
SCCROW - SCC RIGHTS OF WAY
Consultee Comment
Not archived · Council Link
SIEGERTSZ - CAVALIERS, SANDY LANE
Public Comment
Not archived · Council Link
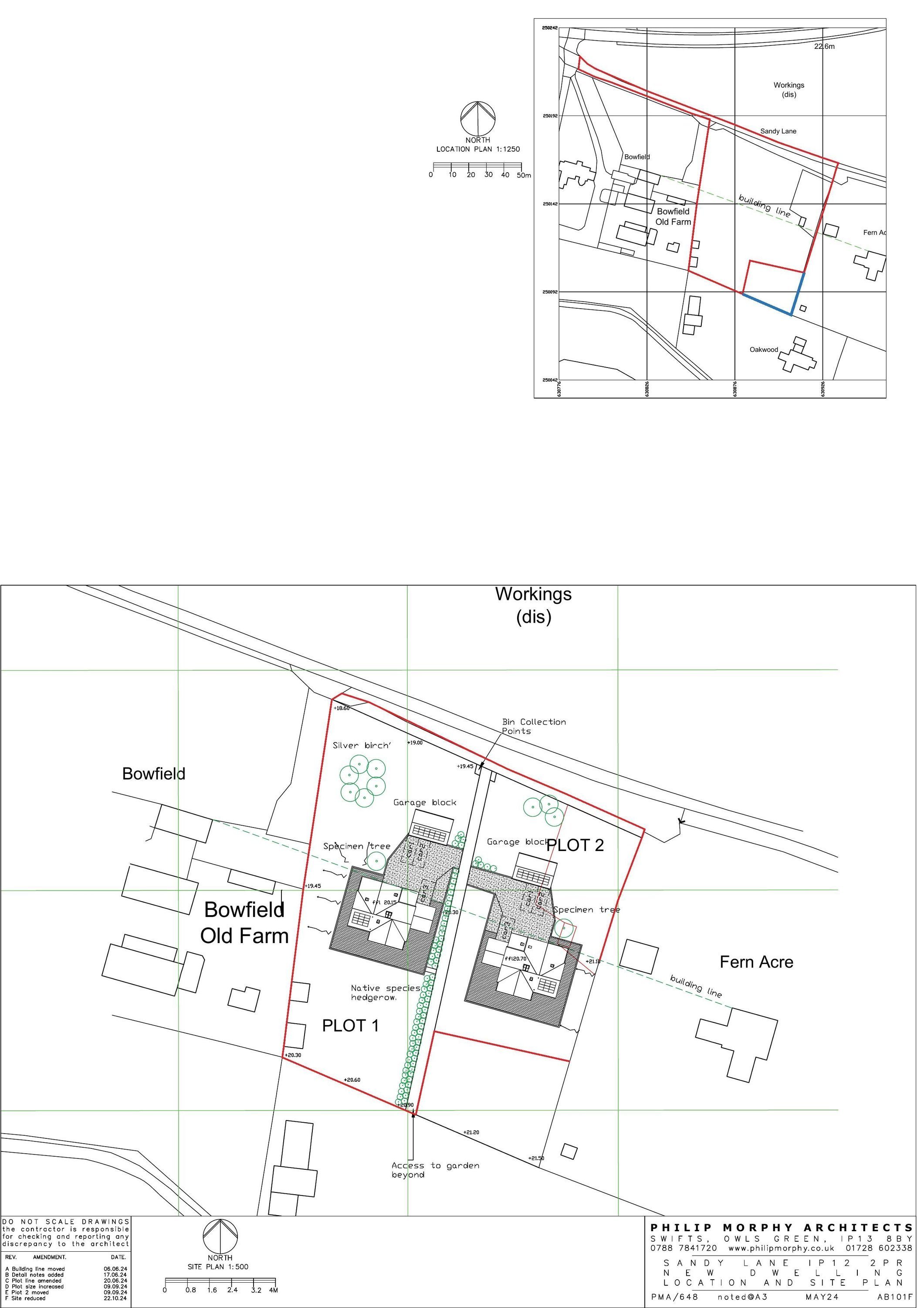
SITE & BLOCK PLAN
Revised Drawing
Not archived · Council Link
SPRINKLER LETTER.
Consultee Comment
Not archived · Council Link
SUFFOLK COASTS AND HEATHS
Consultee Comment
Not archived · Council Link
SUPERSEDED - GARAGE ELEVATIONS
Drawing
Not archived · Council Link
TREE - EAST SUFFOLK LANDSCAPE TEAM
Consultee Comment
Not archived · Council Link

Take Action

Make your voice heard. Authorities need to hear from people who support new homes.

✉️ Write Email in Support View on Council Portal