← Back to East Suffolk Council

Status

Permitted Change of use
Received
03 Oct 2024
New dwellings
1

Full Proposal

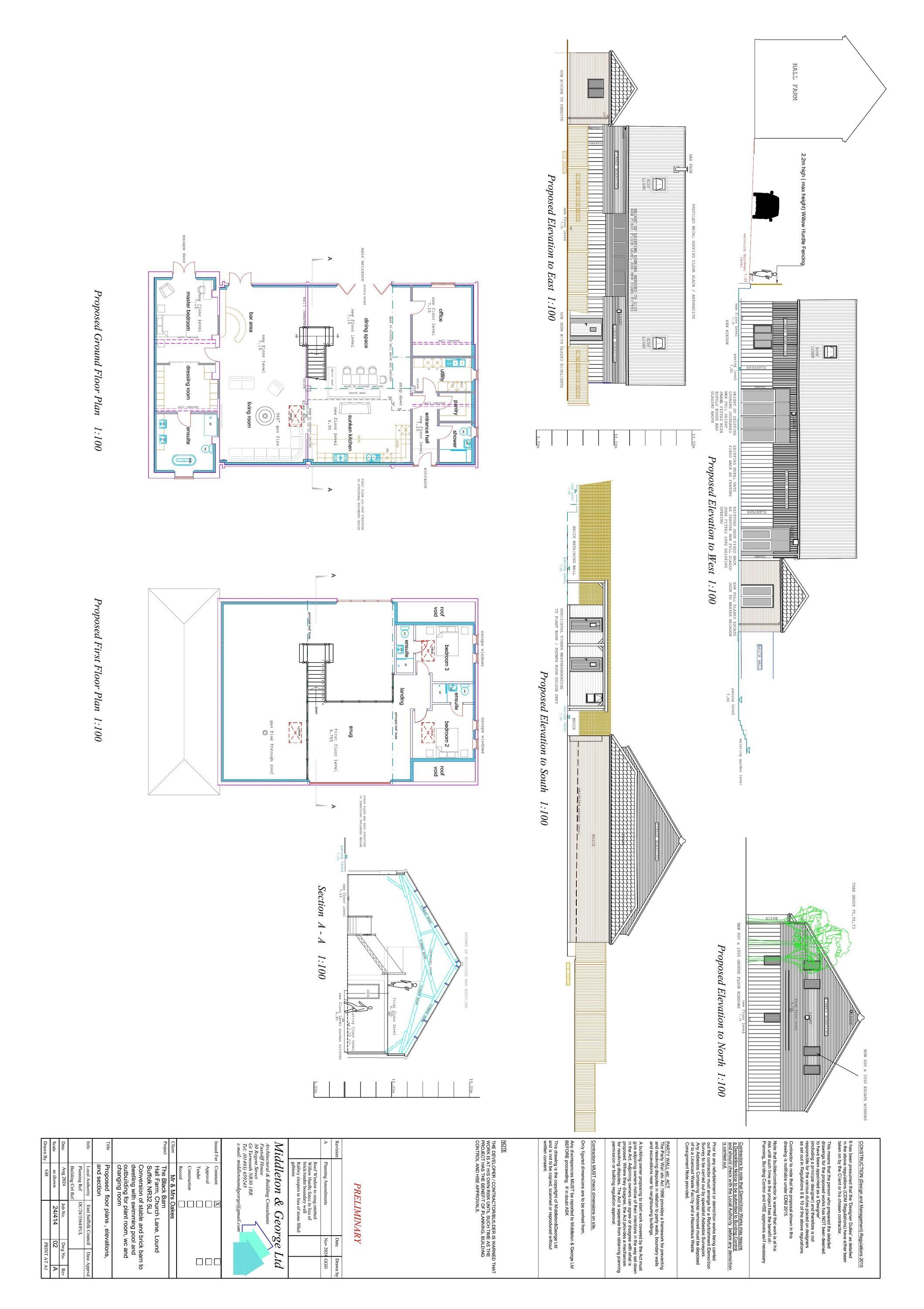
Proposed conversion of a barn to a 3 bed dwelling, construction of an outdoor swimming pool and associated works

Documents

** SUPERSEDED - TREE REPORT
Supporting Documents
Not archived · Council Link
Application Form
Application Form
Not archived · Council Link
APPROVE - FULL APPLICATION
Decision Notice
Not archived · Council Link
BIODIVERSITY GAIN PLAN
Supporting Documents
Not archived · Council Link
BNG STATUTORY BIODIVERSITY METRIC RESULTS V2
Biodiversity Net Gain
Not archived · Council Link
BROCHURE: BAUDER BIODIVERSE GREEN ROOFS
Supporting Documents
Not archived · Council Link
BROCHURE: NATURAL POOL SYSTEM
Supporting Documents
Not archived · Council Link
DELEGATED REPORT
Officer / Committee Report
Not archived · Council Link
ESC ECOLOGY
Consultee Comment
Not archived · Council Link
ESC ENVIRONMENTAL PROTECTION
Consultee Comment
Not archived · Council Link
ESC TREES AND LANDSCAPE
Consultee Comment
Not archived · Council Link
EXISTING PLANS, ELEVATIONS AND SECTIONS
Drawing
Not archived · Council Link
FINAL STRUCTURAL REPORT (22/08/24)
Supporting Documents
Not archived · Council Link
INFO SHEET
Neighbour Notification List
Not archived · Council Link
LAND CONTAMINATION QUESTIONNAIRE
Supporting Documents
Not archived · Council Link
LOUND PARISH COUNCIL
Consultee Comment
Not archived · Council Link
OUTBUILDING PLAN AND ELEVATIONS PLAN OF OUTDOOR POOL AREA
Revised Drawing
Not archived · Council Link
PHASE I CONTAMINATION ASSESSMENT - 24.09.24
Supporting Documents
Not archived · Council Link
PLANNING, DESIGN & ACCESS STATEMENT & HERITAGE STATEMENT
Supporting Documents
Not archived · Council Link
PRELIMINARY ECOLOGICAL APPRAISAL - SEPTEMBER 2024 V2
Supporting Documents
Not archived · Council Link
PROPOSED SITE AND LOCATION PLAN
Revised Drawing
Not archived · Council Link
REFURBISHMENT / DEMOLITION SURVEY OF ASBESTOS MATERIALS (10TH SEPTEMBER 2024)
Supporting Documents
Not archived · Council Link
REFUSE STORAGE AND COLLECTION / CYCLE STORAGE
Drawing
Not archived · Council Link
SCC FIRE AND RESCUE SERVICE
Consultee Comment
Not archived · Council Link
SCC LOCAL HIGHWAY AUTHORITY
Consultee Comment
Not archived · Council Link
SITE SECTIONS AS PROPOSED
Revised Drawing
Not archived · Council Link
SOFT LANDSCAPING PLAN
Drawing
Not archived · Council Link
SUPERSEDED OUTBUILDING PLAN AND ELEVATIONS, PLAN OF OUTDOOR POOL AREA
Drawing
Not archived · Council Link
SUPERSEDED SITE SECTIONS AS PROPOSED
Drawing
Not archived · Council Link
TPO PLAN (SHEET 1 OF 3)
Drawing
Not archived · Council Link
TPO PLAN (SHEET 2 OF 3)
Drawing
Not archived · Council Link
TPO PLAN (SHEET 3 OF 3)
Drawing
Not archived · Council Link
TREE REPORT - UPDATED
Supporting Documents
Not archived · Council Link

Take Action

Make your voice heard. Authorities need to hear from people who support new homes.

✉️ Write Email in Support View on Council Portal